
V Leopoldově na západním Slovensku proběhlo několik architektonických soutěží: v roce 2014 na návrh nového městského úřadu, o tři roky později na rekonstrukci kina, v roce 2019 byl na základě výsledků soutěže dokončen park s dětským hřištěm. Nová radnice je už také otevřena, loni získala prestižní ocenění CE ZA AR. Autoři projektu se rozhodli, že starou budovu úřadu zachovají a umístí do ní knihovnu, novostavbu koncipovali tak, aby společně s ní vytvořila příjemný veřejný prostor. Dominuje mu velkorysá vstupní část městského úřadu s prolomenou fasádou. A když vstoupíte dovnitř, objevíte trojici krásných zaklenutých prostor z pohledového betonu.
Díky soutěži na Městský úřad byla primátorka Leopoldova Terezie Kavuliaková a její předchůdce Milan Gavorník oceněni jako „patroni architektury za vypsání největší architektonické soutěže na veřejnou budovu od éry vzniku samostatné Slovenské republiky“. O její kvalitě svědčilo 51 přihlášených návrhů. V této silné konkurenci zvítězil prešovský ateliér zerozero.

Nádvoří a nároží s hodinami
„Oba domy se k sobě natáčí tak, že spolu komunikují, nádvoří mezi nimi se stalo místem pro setkávání, mohou se tu také odehrávat společenské a kulturní události. Přilehlé Náměstí svatého Ignáce nemá jednoznačně městský charakter, je to spíš park, takže vytvoření nové dominanty s piazzettou bylo docela důležité. Lineární dvoupodlažní hmotu jsme uložili paralelně s východní hranicí náměstí – když po něm procházíte, nejdříve si všimnete nároží nové budovy s hodinami, nádvoří a vstupy do obou domů se pak otevírají postupně. Otevření bloku navíc umožnilo průchod ze tří přilehlých ulic – místo se tak otevřelo pěšímu pohybu, introvertní a uzavřené je nahrazeno otevřeným a veřejným,“ uvádí architekt Pavel Šilla. Jeho kolega Irakli Eristavi dodává: „Díky tomu, že jsme zachovali dům z počátku minulého století, mohli jsme novou vrstvu formovat elementárním, až abstraktním způsobem. Budova veřejné správy by měla podle našeho názoru prezentovat jasný architektonický názor, chovat se důstojně a civilně. Její jednoduchý kubus formuje hlavní vstup s výraznou a čitelnou redukcí hmoty, dále také výtvarně pojaté niky pro okna.“


Nová budova
Hlavní vstup do městského úřadu autoři jasně definovali, záleželo jim i na vizuálním kontaktu s oddací místností. Prolomení fasády u velké prosklené plochy poskytlo místo pro státní znak a erb města.
Elementární hmota objektu má přehlednou vnitřní strukturu, která se v exteriéru promítá systémem pravidelných perforací. V rámci dispozic byly artikulovány tři nejvýznamnější prostory: oddací sál, velká zasedací místnost a kancelář primátora. Svatebnímu sálu dává noblesu a důstojnost valená železobetonová klenba, která tu vytvořila neobvyklou prostorovou kvalitu. Optimalizace proporcí souvisí s převýšením prostoru, vložená galerie zvětšuje kapacitu sálu.
„U velké zasedací místnosti jsme zvolili systém čtvrtobloukových půlkleneb, které nad jednacím stolem vytvořily snížený světlík. Kancelář primátora/primátorky má zase ‚největší okno‘, směřující do nástupního prostoru. Její strop ukončuje čtvrtoblouková půlklenba, u níž vznikla část s nižším pohodlným sezením. Každá z těchto prostor má vlastní charakter a věříme, že kromě identifikační funkce dává úřadu s elementární vnitřní strukturou i jistý poetický rozměr,“ dodává Irakli Eristavi.
V celkové koncepci návrhu hrály významnou roli vstupní a komunikační prostory – na velkorysý vstup navazuje hala, otevřená přes dvě podlaží. Na podlahách se uplatnily broušené betony, na stropech pohledový beton. Prakticky všechny kanceláře se otevírají vnitřními prosklenými stěnami.
Podélný nosný systém stavby umožnil rozmístit dělicí stěny v příčném směru. Vzájemné posunutí kanceláří nad sebou určilo také posuny oken v obou podlažích. Omítku na fasádách doplňují prefabrikáty a obklad ze samozhutnitelného pohledového betonu, vyztuženého skelnými vlákny.

Prostor mezi oběma budovami je nyní místem, kde se mohou odehrávat různé společenské aktivity. Staré a nové tu stojí „tváří v tvář“
Městská knihovna
V historickém objektu městského úřadu dnes sídlí knihovna s kavárnou. Autoři se rozhodli stavbu respektovat, její potenciál pro novou funkci rozvinuli – odstranili přístavby ve dvoře, vnitřní dispozice otevřeli tak, že ze vstupní haly jsou nyní přístupné jak samotná knihovna v západním křídle, tak klubovna v křídle severním. Knihovnu navrhli jako otevřený prostor s flexibilními regály.
Konstrukce a materiály
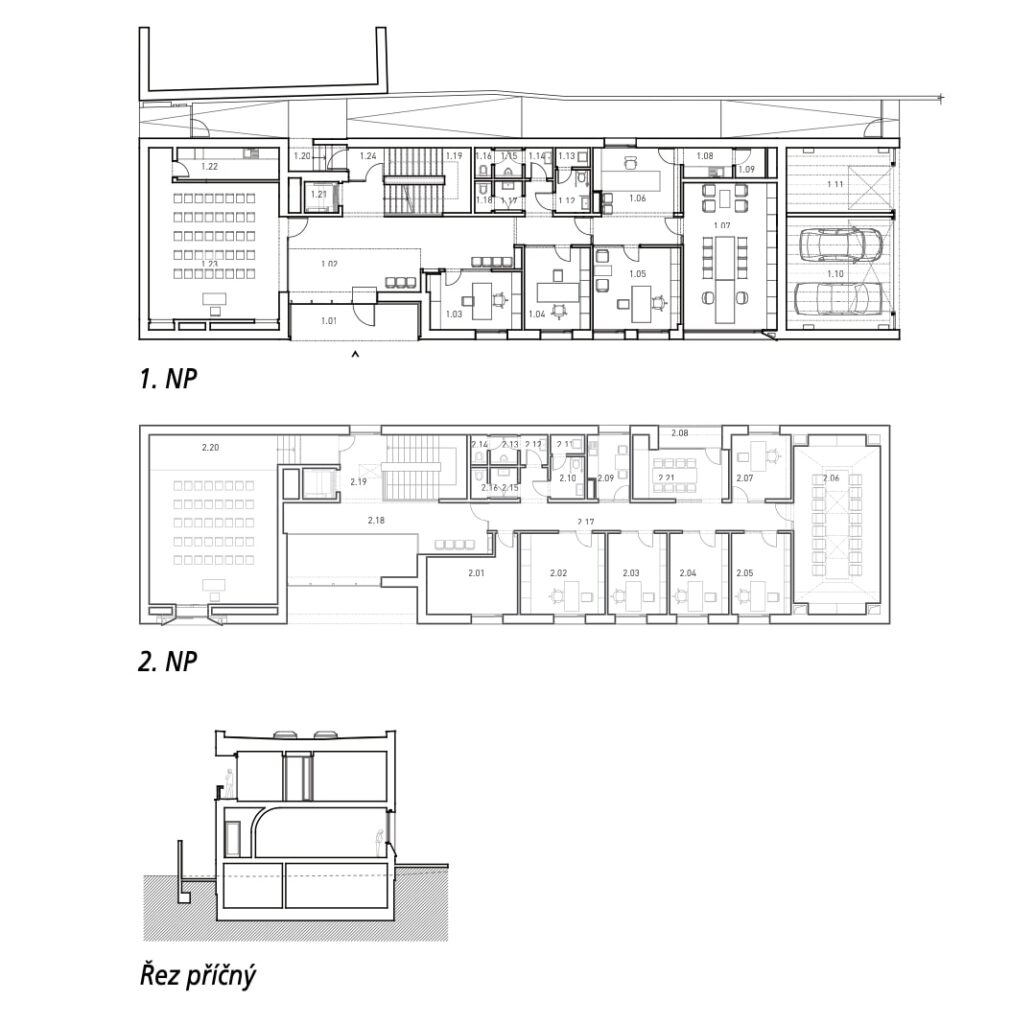
Nosný systém novostavby o půdorysu 40,275 m × 10,65 m je podélný, dvoutraktový. Umožnil tak účelné rozvržení dispozice s přehlednými komunikačními prostory. Realizace proběhla z tradičních stavebních materiálů: keramické zdivo, beton a sklo.
Podsklepená část objektu má základovou desku, nepodsklepená pasy o šířce 400–1000 mm. Hydroizolační systém suterénu je zdvojený, hlavní hydroizolační funkci má fólie s odolností proti radonu, doplňkovou železobetonová vana z vodostavebního betonu. Nosný systém suterénu doplňuje ještě střední nosná železobetonová stěna. Nosný systém nadzemní části budovy je z obvodového zdiva z keramických tvárnic tl. 500 mm a vnitřních nosných železobetonových stěn tl. 200 mm. Stropy byly zhotoveny jako železobetonové monolitické desky. Všechny nosné i nenosné betonové stěny byly realizovány ve vysoké kvalitě pohledového betonu. Povrchy zděných a některých betonových stěn mají jednovrstvou sádrovou strojní omítku.


Ve skladbě podlah 1. NP na terénu byl jako tepelná izolace použit podlahový polystyren tl. 70 mm, doplňují ho systémové desky podlahového vytápění o tloušťce tepelné izolace 30 mm. Kročejová izolace v podlahových konstrukcích byla řešena minerálními akustickými deskami, pod nimi je vrstva polystyrenu s instalačními rozvody. Pohledovou vrstvu zateplení stropu tvoří heraklitové desky vkládané do hliníkového roštu.
Okna s izolačními trojskly mají hliníkové rámy, hlavní vstup byl řešen formou strukturální fasády s hliníkovou nosnou konstrukcí.
Na ploché střeše jsou vnitřní vyhřívané vpusti; spádová vrstva je z polystyrenbetonu, tepelná izolace z minerální vaty, finální hydroizolační vrstvu tvoří mPVC fólie se štěrkovým zásypem.
Vnější povrchy stěn byly omítnuty minerální ušlechtilou omítkou (břizolit), zapuštěné části fasád, ostění a nadpraží oken silikonovou hladkou omítkou. Venkovní parapety oken a ostění hodin byly řešeny formou atypických prefabrikátů ze samozhutnitelného betonu vyztuženého skleněnými vlákny. Stejným materiálem je obložen i vstupní portál a zábradlí lodžie.



TZB
Zdrojem chladu a tepla je pro oba domy reverzibilní tepelné čerpadlo typu voda/voda o tepelném výkonu 51,1 kW. Na straně zdroje a na straně spotřeby je v čerpadle integrováno zdvojené oběhové čerpadlo. Převážnou část vytápění a chlazení tvoří akumulační systém s kotvením trubek na spodní výztuž stropní desky (systém betonového jádra oBKT). V malé zasedací místnosti a v kanceláři primátorky je navíc instalován invertorový fan coil. Ve svatební síni a jednací místnosti je nízkoteplotní podlahové vytápění. Teplo do podlahových okruhů přivádí polyetylenové trubky zalité cementovým a samonivelačním potěrem.
Chlazení prostor při venkovní teplotě +33 °C na teplotu +26 °C bylo navrženo pomocí vody čerpané ze studny přes výměník pasivního chlazení. Chladicí okruh 16/20 °C zajišťuje expanzní nádoba o objemu 50 litrů.
Dešťová voda ze střech a zpevněných ploch se odvádí do vsakovacích galerií, kde přirozeně vsakuje.


Vstupní hala – vnitřní nosné železobetonové stěny mají tloušťku 200 mm, stropy byly zhotoveny jako železobetonové monolitické / Schodiště


Svatební sál s galerií / Velká zasedací místnost
Městský úřad Leopoldov
Investor: Město Leopoldov
Autoři: zerozero – Irakli Eristavi, Pavel Šilla, Juraj Červený; spolupráce Martin Ratkoš (stavební řešení), Vladimír Durbák (statika), Viliam Hrubovčák (statika), Light Lab (světelný design), Marcel Benčík (vizuální komunikace)
Plocha pozemku: 1988,5 m2
Zastavěná plocha: 429 m2 + 306 m2 (novostavba)
Náklady: 4 miliony eur
Cena CE ZA AR 2023, kategorie Občanské a průmyslové budovy Porota ocenila nečekaně silný výraz v exteriéru, který se přenáší do dvou největších prostor interiéru. Ty působí až nadstandardně. Skvělý příklad veřejné stavby.


Vstupní portál a zábradlí
Stěny a strop portálu mají obklad z pohledového samozhutnitelného betonu tl. 60 mm vyztuženého skleněnými vlákny. Jeho upevnění bylo řešeno hliníkovým fasádním kotevním systémem s možností mechanického neviditelného uchycení obkladových desek.
Povrch obkladových prvků byl profilován vloženou matricí. Na jedné z desek je reliéfní odlitek státního znaku Slovenské republiky, městského erbu a nápisů. Venkovní zábradlí u vchodu má stejný obklad tloušťky 35 mm s vloženou matricí.
Ze stavby:




Pohledové betony
Železobetonové stěny v přízemí a patře jsou z velké části provedeny v kvalitě pohledového betonu: vstupní prostory, schodiště, chodby, stropy v oddací místnosti, kanceláři primátora a jednací místnosti. Povrchy železobetonových stěn mají díky bednění ze smrkových desek šířky 150 mm strukturu dřeva. Zakřivené stropy byly šalované deskovým řezivem.
„Když se tyto stěny realizovaly, velkou pozornosti jsme věnovali jednotné výši pracovních záběrů a také hutnění. Napojení valené betonové klenby na omítanou stěnu bylo řešeno zapuštěnou rýhou v šířce 15 mm. Povrchy betonových stěn kromě oddací místnosti pak byly ještě natřeny transparentní impregnací, klenba oddací místnosti bílým disperzním nátěrem,“ říká architekt Šilla.
Svatební místnost má velkorysou železobetonovou klenbu s perforací pro osvětlení a vyústky VZT. Nosnou část přestropení nad klenbou tvoří trapézový plech bez nadbetonávky. Uložený je na nosných stěnách a na vrcholu klenby.

Skladba střechy nad klenbou svatební místnosti:
- železobetonová klenba tloušťky 165 mm
- trapézový plech o výšce vlny 153 mm, výplňové klíny, volný prostor
- parozábrana
- tepelná izolace 200 mm + 200 mm
- spádové klíny
- separační geotextilie
- hydroizolační fólie
- separační geotextilie
- pás betonových dlaždic po obvodu u atiky
- říční kamenivo frakce 16–32 mm
- zatěžující ochranná vrstva 50–50 mm
-vis-
Foto: Matej Hakár
Publikováno v časopise Materiály pro stavbu 2/2024


Nejnovější komentáře