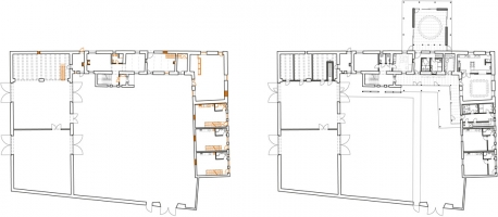
Zemědělská usedlost U Karáska je patrná už v prvním vojenském mapování z let 1764–1768. Leží na samotě mezi dvěma koryty řeky Blanice, její půdorys má tvar písmene U. Volnou stranu uzavírá zeď se vstupní bránou a brankou. Statek nyní slouží pro potřeby terapeutické komunity, takže bylo třeba změnit dispozice a některé prostory přistavět.
Plochy, které pro svůj provoz komunita potřebovala, nebylo možné umístit do původního objemu stavby, kromě toho bylo důležité, aby mezi jednotlivými provozy vznikla krytá komunikace. Autoři projektu z architektonického ateliéru Sporadical proto navrhli usedlost rozšířit o spojovací chodbu ve dvoře a komunitní místnost přistavěnou k severozápadní fasádě. Nově dostavěné části jsou jasně rozeznatelné – aby působily lehce a plnily svojí komunikační úlohu, mají prosklené fasády. Výrazným prvkem jsou přesahy střech, které umožňují komunikační propojení a otevření prosklených ploch i při nepříznivém počasí.






„Přestavby v letech 1995 a 2005 nenávratně překryly starší vrstvy a členění objektu. Dostavělo se křídlo s apartmány a byt majitele se zdobným štítem, povrchy fasád byly v kombinaci přírodního kamene, bílé omítky a cihelných prvků. To vše ale bez historických nebo provozních souvislostí,“ uvádí architekt Jakub Našinec a dodává: „Chtěli jsme, aby nejnovější etapa v historii usedlosti byla jednoduše čitelná. Dostavěné prostory jsme navrhli jako dřevostavby, mají shodné konstrukční a materiálové řešení, detaily a návaznosti jsou jednoduché a minimalistické. Pohledový trámový strop nesou ocelové a dřevěné sloupky. Společné místnosti a prostory propojuje cihelná dlažba na podlaze. To má symbolický význam, každý by měl mít pocit, že když se stal členem komunity, jsou pro něj prostory otevřené. Dlažba je přerušená jen při vstupu do komunitní místnosti a jídelny kamenným prahem. Znamená to vytržení z běžného rytmu a důraz na zvláštní význam těchto prostor.“
| Základní údaje o stavbě |
|
Investor: SANANIM z.ú. |
Architektonický návrh
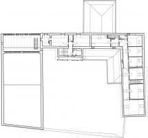
Západní křídlo usedlosti tvořila stodola, východní křídlo se třemi apartmány bylo dostavěno v 90. letech. V úzkém středním křídle měl byt majitel objektu, kromě toho tu byl dvoupodlažní apartmán. V severovýchodním rohu usedlosti se nacházela společenská místnost. Dispoziční změny respektovaly polohu nosných konstrukcí, rozmístění hlavních rozvodů vody a vnitřní kanalizace.
Kromě spojovací chodby a nové komunitní místnosti navrhli autoři projektu bydlení terapeutů i klientů, jídelnu s kuchyní, klubovnu, kancelář a ordinace, technické a provozní místnosti. Komunitní místnost má zvláštní význam, slouží pro skupinovou terapii, otevřené rozhovory mezi terapeuty a klienty. Důležitý je motiv kruhu při uspořádání židlí nebo jako osvětlení na stropě. Architekti uvažovali o tom, že ji od původního statku oddělí, ale protože se jedná o každodenní součást léčby, dohodli se s investorem, že bude součástí dispozice. Zároveň však vybíhá mimo půdorys budovy do okrasné zahrady. Jednoduchá čtvercová místnost s předsíní byla přistavěna k severozápadní fasádě středního traktu. Z předsíně je možné vystoupit na obě strany na krytý ochoz chráněný přesahem střechy. Prosklená fasáda se otevírá velkoplošnými posuvnými stěnami.
Všechny provozy komunity propojuje nová chodba tvaru L se dvěma vchody – hlavní vstup leží na ose, která vede od vstupní branky přes hlavní vchod a chodbu skrz střední křídlo usedlosti a komunitní místnost do zahrady. Tato osa je důležitá pro optické propojení vnějšího okolí s dvorem a zahradou na severní straně areálu. Vstup pro klienty je v kratším východním křídle. Chodba byla řešena jako neformální místo pro setkávání a denní provoz – je součástí dvora i komunity, má vnitřní prosklený prostor a vnější krytý ochoz. Jídelna je umístěna v rohu usedlosti, kde se zachovalo kamenné zdivo původního statku. Do jídelny se prochází starým kamenným portálkem.
V severní části stodoly bylo vložené původní dřevěné patro na masivních trámech. To je upraveno na neformální klubovnu. Je to jeden velký prostor, kde se „mimo službu“ potkávají terapeuti s klienty. Vestavba je konstruována nezávisle na krovu a zateplena z vnitřní strany kamenného zdiva.
Pro ubytování klientů slouží jednoduché podkrovní pokoje. Vzniklo přestavbou patrových apartmánů a využitím půdy. Vložená společná komunikace je na obou koncích schodišti spojena s dvorní skleněnou chodbou. Část dispozice pro klienty je tak uzavřena do dalšího symbolického kruhu.
| Dům pro komunitu |
| Komunita slouží klientům organizace SANANIM, kteří se léčí ze závislosti na drogách. V komunitě tráví přibližně jeden rok, poté odcházejí do doléčovacích programů. Terapie sestává z psychoterapie, pracovní terapie, sociální práce, sportovních aktivit a dalších složek. Probíhá v několika fázích, a postupně se zvyšuje samostatnost, odpovědnost a nároky kladené na klienta. Kapacita zařízení je 20 lůžek. Komunita v Heřmani vznikla přestěhováním terapeutické komunity v Němčicích, kde se natáčel film Pravidla lži. Film ukazuje původní prostory i způsob života v terapeutické komunitě: http://www.csfd.cz/film/223906-pravidla-lzi/prehled/. |
Konstrukční a stavební řešení
Novostavby komunitní místnosti a chodby mají dřevěné a ocelové sloupky, vodorovné nosné prvky tvoří dřevěné nosníky. Hlavní nosníky, do nichž jsou kotvené stropnice, byly uložené přes sloupy. V pohledové části jsou prvky spojované na čepy, v zakryté části byly spojované kotevními ocelovými třmeny. Nosník při stávající zdi je připevněn pomocí ocelových průvlakových kotev. Přes nosníky bylo provedeno bednění z hoblovaných hraněných prken spojovaných na pero a drážku, napuštěných olejovým nátěrem. Kotvení stropnic do zděných obvodových konstrukcí zajišťuje tuhost celé stropní desky. Nová schodiště jsou železobetonové prefabrikované deskové konstrukce se stupni podezděnými po většině délky ramene. V klubovně je nové dubové schodiště, které nesou tři schodnice.
V podkroví stodoly jsou vlašské krokve – dřevěné nosníky uložené na šikmou vaznici podepřenou konstrukcí z hranolů. Hranoly jsou u fasády kotveny do vazného trámu do průběžného profilu, upevněného k trámům podlahy. Svislé hranoly byly od štítové stěny odsazeny o tloušťku latí a kontralatí, takže tvoří větranou mezeru. Podhled je nezávislý na konstrukci krovu. Materiál viditelných nosníků podhledu je smrkové dřevo napuštěné transparentní lazurou. Záklop podhledu je z hoblovaných hraněných prken spojených na pero a drážku. Podlahu klubovny tvoří stávající dřevěný trámový strop uložený do štítové nosné zdi a na straně druhé na ocelové průvlaky.
V obvodových stěnách se bouraly otvory pro nová okna a dveře. Otvory byly před vybouráním opatřeny překlady z válcovaných ocelových profilů, uložených na betonové podkladní lože a aktivovány. Teprve pak se probouraly otvory. Překlady v příčkách jsou systémové.


![]() |
Detaily řešení 1 Střecha dostavby: chodba – celoplošně lepená hydroizolace – spádové klíny a lepidlo – parozábrana (samolepicí asfaltový pás) – penetrace – BIO desky 20 mm – dřevěné trámy 80/240, délka 625 mm 2 Stěna u komunitní místnosti – svislý prkenný obklad 25 mm – latě a kontralatě – kontaktní difuzní fólie s lepenými švy – fošny 120/40 + ORSIL uni 120 mm – OSB deska 18 mm – prkenný obklad svislý 25 mm 3 Podlaha dostavby – cihelná dlažba 30 mm – lepicí tmel 5 mm – nivelační stěrka 5 mm – betonová mazanina 60 mm – systémová deska podlahového topení 40 mm – polystyren EPS 80 mm – hydroizolace (asfaltový pás) – penetrační nátěr – podkladní betonová deska, 2x kari síť – hutněný štěrkový násyp 150 mm – hutněný násyp 175 mm 4 Soklová část – polystyren XPS – OSB deska – asfaltový pás |


Střechy dostaveb jsou ploché, jejich nosnou konstrukci tvoří rastr dřevěných vazníků v modulu 625 mm. Lepené hranoly jsou v interiéru viditelné, zaklopené smrkovými prkny na pero a drážku. V exteriéru je konstrukce střechy (hraněné řezivo) skrytá v podhledu, na záklop se použily desky OSB ve spádu. Na záklopu je nad interiérem provedena parotěsná zábrana. Stávající objekt má nad obytnými částmi betonovou skládanou krytinu, která zůstala zachována včetně většiny klempířských konstrukcí. Do střechy byla vložena střešní okna, nové prostupy VZT a odvětrání stoupacího potrubí kanalizace. Na jihozápadní polovině střechy ubytovacího křídla bylo osazeno deset solárních panelů pro ohřev vody. Ve dvorní části byly odstraněny dva vikýře, místo nich byla osazena nová střešní okna. Na střeše stodoly jsou bobrovky na korunové krytí. Krov zůstal beze změny, do nové skladby se vložila paropropustná pojistná izolace a vytvořila se větraná mezera pomocí latí a kontralatí. Do střechy je pod štítem osazeno osm větracích tašek. Nově se provedly klempířské prvky: závětrná lišta, oplechování štítové stěny.

Hana Vinšová ve spolupráci s Jakubem Našincem
foto Jan Kuděj



Nejnovější komentáře