Zajímavá stavba

Nové byty ve starém domě na Letné

Rekonstrukce sto let starého činžovního domu v Praze na Letné probíhala postupně – jako první vznikly prostory pro Café Lajka, později se obnovily suterény, vznikla střešní nástavba. Dům má opravenou fasádu, jsou tu nové výtahy pro auta i pro lidi, v horních patrech několik nových bytů. Dva z nich jsou svým řešením výjimečné.

Pro kavárnu slouží místnosti v přízemí a část suterénu. Ve sklepě se autoři rekonstrukce inspirovali klasickými dřevěnými kójemi a sociální zázemí sem umístili formou lehkých dřevěných stěn. Odkryli cihelné zdivo a betonové stropy, podlahy jsou z broušeného betonu. 

Základní údaje o stavbě

Autoři: Petr Uhlík Architekti – Ing. arch. Jan Šorm, MgA. Ing. arch. Petr Uhlík 

Statika: STTAB, Ing. Petr Haladej

Zdravotechnika: Prima, Milan Maštálka

Ústřední vytápění: Envirotech s.r.o, Ing. Miloš Krotil

Požární ochrana: Ing. Jaroslav Kutáč

Generální dodavatel: KALIŠ A KRÁTKORUKÝ, spol. s r.o.

Zámečnické výrobky: JOFO s.r.o. – Miroslav Koch; VERTIGO Services, s.r.o.

Truhlář: Jan Čermák – Truhlářství

„Majitel domu má stavby jako hobby nebo spíš vášeň. Věděl, že rekonstrukce nebude jednoduchá ani rychlá, na projekt a na přípravu jsme měli dost času. Jeho postoj je naprosto výjimečný – nemyslím, že by si spočítal, kdy se mu vrátí náklady. Chtěl prostě vrátit do života pěkný a fungující dům. Když jsme hledali řešení, vždy dal na první místo ta lepší, i když byla o něco dražší,“ říká architekt Uhlík.

Investor od začátku věděl, že by tu chtěl vybudovat byt pro rodinu svého syna. Nájemníci z velké části zůstali, jejich byty se opravovaly postupně. Rekonstrukce byla kompletní, kromě kavárny je v domě nový vjezd do podzemních garáží se čtyřmi parkovacími místy. Pro auta byl instalován technicky náročný výtah: zajedete rovně, ale když výtah sjíždí, natočí vás do směru stání. Také osobní výtah uprostřed schodiště je atypický, musel se vejít do daného prostoru, takže má tvar úzkého obdélníka. Zároveň však zachovává atmosféru původní chodby.

Pod novou střechou vznikly nové byty, jeden z nich má velkorysou terasu a dvě obytná patra

Dům na Letné působí tak jako kdysi, jeho fasáda je pečlivě opravenaProstory pro Café Lajka byly realizovány jako prvníŠachta výtahu tvoří tubus z drátěné sítě, který svým zaoblením reflektuje tvar schodiště

Mezonet s terasou
Pro velký mezonetový byt bylo třeba zvednout hřeben střechy. Architekti tedy museli památkáře přesvědčit, že se tím nenaruší zdejší střešní krajina; střechy tu naštěstí mají různé úhly a odskoky hřebene domů jsou na Letné pravidlem. Dispozice řešili tak, aby se tu dobře žilo rodině se třemi dětmi: ve spodním podlaží jsou dětské pokoje, ložnice, dvě koupelny a pracovna. Schodiště od začátku plánovali jako zavěšené, mělo několik variant řešení. Součástí bytu je i nárožní věž, kam navrhli knihovnu sestavenou z modulových plechových dílců. V horním podlaží vznikl velký obytný prostor otevřený na terasu. Ta byla samostatnou kapitolou: autoři projektu pro ni původně navrhovali cihly podobné starým půdovkám, pálená střešní krytina tak měla vizuálně navazovat v horizontální rovině. Ale ukázalo se, že by to bylo složité a drahé řešení, v detailu náročné na provedení. Nakonec se tedy rozhodli pro červené betonové prefabrikáty ve větším formátu. 

Vybavení bytu je poměrně jednoduché, velkorysým prostorům s pěknými povrchy přidávají noblesu prosklené plochy. Vestavěné skříně a obložení některých stěn jsou z březové překližky. Její jemná kresba místnosti projasňuje a dodává jim švih i eleganci, navzdory tomu, že je to vlastně docela obyčejný materiál.

Velký byt v podkroví má směrem k terase prosklené celé stěnyZavěšené schodiště

Ocelové rámy svařené z U nosníků nesou v rozích navařená ocelová táhlaV bytu–ateliéru vznikl koncept zavěšení galerií ve volném dvoupodlažním prostoru. Lehké ocelové schodiště je položeno mezi oběma kubusy.

Jeden z kubusů je proveden kompletně v překližce10-10 86692

Ateliér pro architekty
V posledních dvou podlažích pod střechou jsou ještě další čtyři nové byty, v jednom z nich dnes sídlí ateliér autorů rekonstrukce domu. Jeho půdorys není nijak zvlášť velký, proto vznikl ojedinělý koncept s vloženými objemy dvou dalších místností. Je tedy také mezonetový. Aby tu mohly být ložnice (dnes samostatná kancelář a jednací místnost), navrhli architekti nad prvním podlažím dva vykonzolované hranoly. Celkovou kompozici do značné míry ovlivňuje i šikmá střecha, souhra starých a nových oken, původních dveří a parket se současnými materiály. Bílé kubusy plují nad kuchyní a pracovními stoly, k zemi je poutá jen úzké kovové schodiště. Vytváří tak ojedinělý prostor s klidnou a vyváženou dynamikou. 

Detail osazení prosklené stěnyŘez domem

Stavební řešení
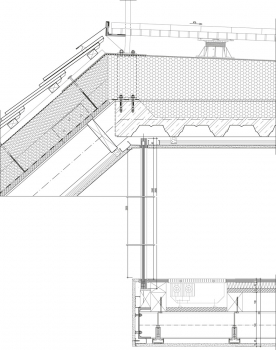
„Velký mezonetový byt navazuje na původní tvar střechy, který směrem do ulice vytvářel dojem klasické sedlové střechy s nárožní věží. Nicméně za hřebenem se směrem do dvora skrývala poměrně velká terasa, pokrytá asfaltovou lepenkou. Na terasu byl přístup malými dveřmi z vyšší sedlové střechy při jižním štítu domu. To nás inspirovalo k řešení obytného patra, které obsazuje trochu atypicky horní z obou podlaží bytu. Prostorná terasa tak propojuje obytný prostor a kuchyň s jídelnou velkou prosklenou stěnou. Oproti původnímu stavu tedy stačilo pouze přidat nástavbu i k druhému – východnímu štítu a propojené střechy u terasy svisle „oříznout“ a prosklít,“ upřesňuje Petr Uhlík a dodává: „Konstrukčně už to tak jednoduché nebylo, všechny vodorovné a šikmé nosné části střechy bylo třeba nahradit ocelovou konstrukcí, která formou jakéhosi pavouka položeného na svislých zdech domu nese celý střešní plášť a terasu. Onen „řez“ do střechy celoprosklenou stěnou jsme chtěli vést důsledně. Ze skla jsou nejen okna, z černého skla je i nadpraží oken, kryjící vrstvy střešního pláště, které zároveň schovává také předokenní rolety.“

V bytu–ateliéru architektů pomáhá ocel zase formou táhel vytvořit koncept zavěšení galerií ve volném dvoupodlažním prostoru. K nim se stoupá po lehkém ocelovém schodišti položeném mezi oběma kubusy.  Jeden z nich je provedený kompletně v překližce a slouží jako jednací místnost, druhý bílý slouží jako samostatná kancelář.  Ocelové rámy svařené z U nosníků nesou v rozích navařená ocelová táhla, která jsou zavěšena na střešních ocelových vaznících. Ocelová konstrukce je skrytá pod obložením stěn a podlahy. Otvor kubusu, který směřuje k oknům, je v jednací místnosti plně zasklen ve skrytém rámu, v kanceláři plní bezrámové sklo funkci zábradlí.

Technickou zajímavostí je autovýtah, který je zároveň točnou – během přejezdu mezi podlažími otočí auto do patřičné pozice pro nejvýhodnější zajetí na jedno ze čtyř parkovacích míst v suterénu domu. Pro dojezd výtahu bylo zapotřebí vyhloubit kruhovou jámu o výšce celého podlaží jako druhý hlubší suterén. 

„Osobní výtah jsme spolu s dodavatelem koncipovali jako maximálně lehký a transparentní objekt vložený do úzkého zrcadla schodiště. Toho jsme docílili řešením kabiny se třemi stěnami prosklenými a čtvrtou čelní pouze s dveřmi bez kapotáže, která má viditelný mechanismus ovládání dveří. Šachta výtahu tvoří dlouhý tubus z drátěné sítě, který svým zaoblením reflektuje tvar schodiště. Tubus je zavěšen přes všechna nadzemní podlaží na svislém rámu s konzolami, zakotveným do čela hlavní podesty,“ uzavírá architekt Uhlík.

vis
foto bytů Jan Kuděj
foto Cafe Lajka Tomáš Vodňanský