
Jako na každém sídlišti, i na pražském Proseku stála mezi paneláky menší, chronicky známá budova určená pro veřejnou vybavenost. Typická byla svou roštovou fasádou ze skla a hliníku. Městská část se tu před několika lety rozhodla vytvořit prostor pro rodinné a kulturní vyžití. Po rekonstrukci stavba získala zcela novou podobu – její fasády jsou zčásti z tahokovu, původní objekt zdobí expresivní malby od Michala Trona Škapy. Silným motivem je také pochozí střecha s novým schodištěm.
Autoři rekonstrukce ponechali stavbě elementární formu, její výraz ale proměnili – vytvořili výtvarnou kompozici ze dvou odlišných částí, která prostor sídliště rozehrála a oživila. Přístavbu se sály, plot kolem střechy a propojující schodiště opláštili tahokovem, druhou část fasády zdobí mural. původně dvoupodlažní stavba získala další patro díky komunitnímu prostoru Střecha Proseka, což je i název tamního bistra. Horní podlaží je transparentní, lehce se vznáší nad náměstím a láká svou přívětivou otevřeností. Na jihovýchodním průčelí autoři umístili exteriérové schodiště. U této fasády nejlépe vidíme, jak dobře mural ladí s elegantním a uměřeným tahokovem. Michal Tron Škapa je jedním z průkopníků české graffiti a mural scény, což jsou směry, které integrálně patří k současné městské a sídlištní kultuře. Realizace proseckého muralu může být navíc inspirací, jak naložit se slepými štíty fasád panelových domů v rámci sídliště. Tron byl vybrán na základě jasné představy autorského týmu o motivu doplňujícího tahokovovou kompozici drobnými fragmenty konkrétních věcí, které v odstupu tvoří abstraktní obraz, což jsou principy tvorby, které Michal Škapa ve své práci dlouhodobě rozvíjí. Dílo mohl realizovat prostřednictvím programu ‚Umění pro město‘ (jedná se o pilotní realizaci této dotační výzvy v režii Galerie hlavního města Prahy).


Střecha ožila
Zadavatelem rekonstrukce byla městská část, která kladla důraz na flexibilitu dispozičního řešení. Provoz objektu autoři konzultovali i s provozovateli centra Knoflík, které si vybudovalo širokou skupinu návštěvníků od rodičů s dětmi přes studenty až po seniory. Ukázalo se, že centrum využije prostory o různých výměrách: menší sál pro pořádání promítání, besedy a jiné akce s možností propojení s náměstím.
„Chtěli jsme, aby dispoziční řešení co nejlépe odpovídalo jejich záměrům. Aby se mohlo v průběhu času měnit, snažili jsme se o řešení, které to poměrně snadno umožní. Centrální část objektu tvoří schodišťová hala, v místě dostavby jsme navrhli dva sály. Další část interiérů jsme naopak dělili na zkušebny a učebny, aby tu mohly probíhat zájmové kroužky. V obou podlažích jsou šatny se sprchami. Z hlediska dispozičního a provozního tak bylo řešení jednoduché: osově symetrická dispozice vychází ze stávajícího schodiště ve středu objektu, dělí stavbu na čtyři objemově shodné celky. Tvoří je prostory o velikosti čtyř konstrukčních modulů, které lze dále členit na menší místnosti,“ uvádí architekt pavel Buryška a dodává: „Silným motivem byla od začátku obytná střecha s kioskem určená pro širokou škálu užití od lekcí jógy, letního kina přes doučování a jiným denním provozem. Úvahám nad využitím střechy jsme se věnovali i proto, že je na ni vidět z oken okolních domů – chtěli jsme tak nabídnout lidem při pohledu z okna určitý benefit, což může být i různorodé dějství místo pohledu na rozlehlou asfaltovou střechu.“




Násobky čtyř
Konstrukci budovy tvoří montovaný skelet s ústředním motivem otevřeného schodiště, které tu zůstalo, doplnila ho recepce s posezením a parkováním kočárků. Rozměr jednotlivých místností vychází z rozměrů skeletu, kdy nejmenší jednotku tvoří jedno pole 6 × 6 m, největší je sál o čtyřech polích. Flexibilní stavebnici se sádrokartonovými příčkami lze deinstalovat či doplnit o menší jednotku.
Budova se dvěma nadzemními podlažími měla středně těžký skelet, příčky z keramických dutinových tvarovek. „Dokumentace původního projektu se nedochovala, proto jsme všechny konstrukce ověřovali destruktivními sondami. Následovaly bourací práce – odstranili jsme povrchové úpravy svislých i vodorovných konstrukcí až na konstrukční prvky a cementovou mazaninu podlahy. Obnažily se tak stropní panely, v 1. NP podkladní betonová deska. Na ni se pokládaly nové tepelněizolační vrstvy. Hydroizolační pás po obvodě vertikálních konstrukcí jsme zachovali, využili jsme ho k napojení nové hydroizolace 1. NP. Stávající skelet jsme dozdili pórobetonovými tvárnicemi o tl. 250 mm zateplenými kontaktním systémem z polystyrenu tl. 160 mm. Sokl byl srovnán nenasákavým polystyrenem do výšky 300 mm nad terénem. Dostavba je založena na základových pasech a podkladní betonové desce. Svislé nosné konstrukce dostavby byly nakonec realizovány z cihel s minerální vatou – původně jsme v projektu měli pohledové tepelněizolační betonové tvárnice s vrstvou tepelné izolace ze styroporu,“ upřesňuje autor projektu.



Stropní konstrukce nad 1. NP a střešní konstrukce byly v místě dostavby rozšířeny, dostavba stropu byla realizována z předpjatých dutinových panelů tl. 200 mm uložených na železobetonový věnec a na stávající průvlaky. Podlaha v přízemí je zateplena izolací tl. 60 mm, u dostavby je tepelná izolace z EPS tl. 90 mm a systémové podlahové vytápění.
Podlahy v přízemí jsou těžké plovoucí s roznášecí vrstvou z betonové mazaniny. Instalační potrubí byla uložena pružně vzhledem k stavebním konstrukcím, aby se co nejvíce omezil hluk. Příčky ze sádrokartonu jsou vyplněny akustickou izolací. Vnitřní povrchy jsou opatřeny tenkovrstvou sádrovou omítkou.


Budova ze 70. let dvacátého století byla součástí veřejné vybavenosti, její konstrukci tvořila kombinace prefabrikovaného a monolitického železobetonového skeletu. Lehký obvodový plášť byl ze stavební soustavy KORD v roštovém provedení s nosnými vertikálními lištami a plnými výplňovými dílci. Charakteristickým rysem objektů s tímto pláštěm je výrazný rastr předsazených lišt, nejčastěji v kombinaci vzdáleností 1200 – 1500 – 1800 mm mezi nimi, u vnějších rohů vždy s odsazením první lišty o 400 mm od rohu fasády na obou souvisejících stranách




Budova se dvěma nadzemními podlažími měla středně těžký skelet a příčky z keramických dutinových tvarovek. Nové konstrukce jsou z pórobetonových tvárnic zateplených kontaktním systémem z polystyrenu, nové příčky jsou ze sádrokartonu a jsou vyplněny akustickou izolací
Řešení fasád
Nové obvodové vyzdívky skeletové konstrukce včetně překladů a průvlaků byly zatepleny kontaktním systémem z polystyrenu EPS tl. 160 mm. U jihovýchodní stěny z pórobetonových tvárnic byla odstraněna původní izolace a nahrazena kontaktním zateplením z minerální vlny tl. 160 mm. Obvodové stěny dostavby jsou z betonových tvárnic s vrstvou tepelné izolace ze styroporu. okna jsou plastová s přerušeným tepelným mostem a s izolačním dvojsklem. Některá okna ve 2. NP mají nižší parapet, proto je před nimi souvislá a transparentní fasáda z tahokovu. V 1. NP jsou čtyři okna s grafickým ztvárněním od čtyř výtvarníků: Michala Škapy, Jana Kalába, Matěje Olmera a Michala Dvořáka z DSK crew. Do hloubky probarvená silikonová omítka s jemnou zrnitostí sloužila jako plocha pro uměleckou malbu. Jihozápadní fasáda byla opatřena velkoformátovým polem s černým tabulovým nátěrem pro informování místních o probíhajících a plánovaných akcích.






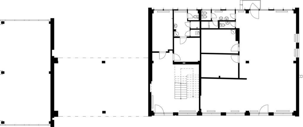
Půdorys a původní půdorys



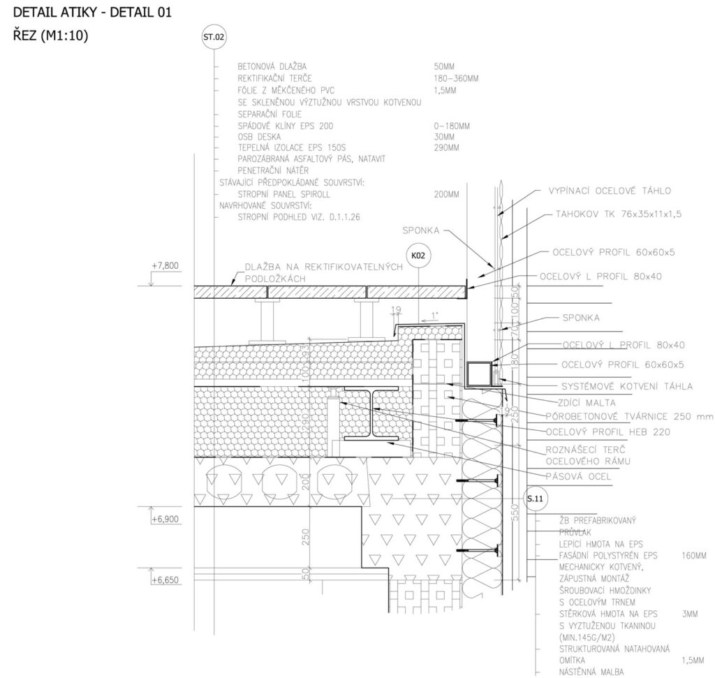
Skladba střešního pláště
● Prkna nebo betonová dlažba
● Jekl 20 × 20 mm
● Rektifikační terče 180–360 mm
● Fólie z měkčeného PVC se skleněnou výztužnou vrstvou
● Separační fólie
● Spádové klíny 0–180 mm
● OSB deska 30 mm
● Tepelná izolace EPS 150S 290 mm
● Natavený asfaltový pás jako parozábrana
● Penetrační nátěr
● Stropní panel 200 mm
● Podhled

KNOFLÍK – kulturní a rodinné centrum
Místo: Jablonecká 4, Praha – Prosek
Investor: Městská část Praha 9
Autoři: ateliér XTOPIX společně s Janem Karáskem – Pavel Buryška, Barbora Buryšková; Jan Karásek; spolupráce Lukáš Landa, Michal Štěpař, Václav Jiřík
Autor muralu: Michal „Tron“ Škapa
Generální projektant: EDIKT, a. s.
Zastavěná plocha: 418,5 m2
Obestavěný prostor: 3240 m3
Užitná plocha: 727,1 m2
Náklady: 39 mil vč. DPH
-vis-
Foto: Ondřej Tylčer
Publikováno v časopise Materiály pro stavbu 6/2023


Nejnovější komentáře