Technologie

Zvenku stroj, uvnitř pracují lidé – hala Würth

Zadáním bylo dostavět v areálu firmy další objekt skladu s vloženou administrativou a pomocnými technologickými provozy. Na první pohled běžná logistická budova. Architekt David Kraus se po dohodě s investorem pokusil vytvořit sklad jako dokonalý nástroj s duší uvnitř. Základem řešení bylo skloubení funkčních a prostorových požadavků se snahou o polidštění.

„Zeptali jsme se, zda lze takový dům postavit jinak. Jako perfektně fungující, dobře promazanou a seřízenou mašinu. WÜRTH MACHINE slovy Kraftwerku. Obchod, výroba, průmysl, racionalita, funkčnost, stejné jako produkce firmy, známé vysokou úrovní svých produktů. Připravit, odjistit, naložit, odvézt,“ vzpomíná architekt David Kraus. Dodává: „Rozměrnou hmotu jsme rozdělili ve dvou osách. U první jsme za sebe soustředili část administrativní, část pro skladování nebezpečných látek a hlavní část skladu. Celek tvoří modul 20 x 95 m, opláštěný hliníkovými šablonami ve firemních barvách. Druhá osa je růstová. Lze tu vedle sebe skládat jak celý modul, tak jeho části. Osy jsou rytmizovány po pěti metrech, nosné prvky skeletu skladu mají rozpon 20 m, nosné prvky administrativy dovolují i při zachování otevřené dispozice 10 m. Z provozně dané bedny vyjíždí příď lodi, v níž je zázemí řidičů, jídelna a na střeše terasa pro zaměstnance.“

Hala je opláštěna hliníkovými šablonami ve firemních barvách. Z provozně dané bedny vyjíždí příď lodi, v níž je zázemí řidičů, jídelna a na střeše terasa pro zaměstnance. Jednoduchým architektonickým výrazem objekt zdůrazňuje účelovostNový objekt vznikl v sousedství stávající haly, jeho druhá osa je růstová. Osy jsou rytmizovány po pěti metrech, nosné prvky skeletu skladu mají rozpon 20 m, nosné prvky administrativy dovolují i při zachování otevřené dispozice 10 mHlavní vstup do objektu je přes betonový portál, výtvarně pojednaný grafitti, které se vztahuje k příběhu Wurthu

Interiéry jsou účelné i rozehrané

Lidé nejsou stroje, nelze je programovat ani plně předvídat. Na tuto charakteristiku reaguje interiér. Je to vyvažující element, prostředí bylo navrženo spíše obytně. „Stavební, nosné a konstrukční prvky jsme ponechali viditelné, spatřujeme v nich přirozenou krásu a autentičnost, člověk uvnitř domu vidí, jak je dům staticky konstruován. Stejně nakládáme s technologiemi, lze vidět čím a jak dům topí, chladí, větrá, odvádí odpad. Orientační systém formou zábavného komiksu odkazuje na příběh Würthu, jakožto nadnárodní společnosti se svou historií,“ doplňuje architekt Kraus.

Společné kanceláře mají po celé své délce různé fitness prvky, takže je možné se při práci protáhnout, zacvičit si, odreagovat. Na volné betonové plochy byly vytvořeny graffiti odkazující na výrobky investora. Obří kresba vrtáku je základním motivem pro velkou zasedací místnost. Autoři pracovali také s vnitřní zelení, použili známé materiály jinak: koberce na stěnách, syrové betonové stěrky, absence tzv. finálních podlah. Společnou otevřenou kancelář přisvětlili továrním způsobem. Výrobky, které investor vyrábí použili v překvapivých souvislostech (brusný kotouč jako světlo) nebo jako zednické nástroje – obtisky do omítky, přeplátovávání některých spojů brusnými kotouči. Některé stavebně technologické procesy pozastavili v jejich rozpracovanosti, aby zlevnili proces a nechali vyniknout technologii samotné či si prostě pro sebe přišli na něco nového.

Objekt je členěn takto: kancelářské plochy 1500 m2 pro sto zaměstnanců (zhruba třetinu tvoří společné relaxačně komunikační plochy), sklad 5200 m2 pro 20 pracovníků, pomocné technologické provozy 1000 m2.

Interiéry kanceláří byly navrženy spíše obytně, ale s tavební, nosné a konstrukční prvky autoři ponechali viditelné. Stejně naložili s technologiemiInteriéry kanceláří byly navrženy spíše obytně, ale s tavební, nosné a konstrukční prvky autoři ponechali viditelné. Stejně naložili s technologiemi

Základní údaje

Místo: Nepřevázka
Klient: WÜRTH, spol s.r.o.
Autor: Architektura, s.r.o. – David Kraus, spolupráce Alina Fornaleva, Miroslav Styk, Pavel Nikl
Dodavatel: Metrostav, a.s., Divize 8, Ing. Michal Tvrdík, Ing. Martina Zahradníková, Ing. Jan Štoncner
Nábytek: Cre8, Michal Havrda
Orientační systém: Dominika Krausová
Podlažní plocha: 7500 m2
Náklady: 200 milionů korun

Stavebně technické řešení

Jednoduchým architektonickým výrazem objekt zdůrazňuje účelovost, stejně tak je tomu u dispozičního řešení, které sleduje volný vnitřní prostor a flexibilitu. Autoři kladli důraz na konstrukční detail, materiály a na členění fasád. Materiálové řešení se skládá převážně z ocelových prvků, sendvičových panelů pro opláštění, zámečnických detailů z žárové pozinkované konstrukce.

Skladová hala obdélníkového půdorysu má největší rozměry 60,90 x 90,90 m. V příčném směru má tři lodi s modulovým rozpětím vazníků 20 m. Vzdálenost vazníkových rámů v podélném směru činí 10 m. Vnitřní sloupy skeletu jsou rozmístěny v rastru 10 x 20 m, po obvodě objektu se mezi hlavní sloupy do každého modulu vložily mezisloupy v osových vzdálenostech 10 m. Světlá výška haly pod vazník je 10 m.

Uvnitř haly je administrativní část v úrovni prvního patra, na jižní straně jsou dva zděné přístavky. První slouží jako místnost pro nabíjení elektrických vysokozdvižných vozíků, druhý jako kancelář.

Dispoziční řešení sleduje volný vnitřní prostor a flexibilitu. Uvnitř haly je administrativní část v úrovni prvního patraSkladová hala má největší rozměry 60,90 x 90,90 m. V příčném směru má tři lodi s modulovým rozpětím vazníků 20 m. Vzdálenost vazníkových rámů v podélném směru činí 10 m. Vnitřní sloupy skeletu jsou rozmístěny v rastru 10 x 20 m, po obvodě objektu se mezi hlavní sloupy do každého modulu vložily mezisloupy v osových vzdálenostech 10 m. Světlá výška haly pod vazník je 10 m

Stavba byla založena na dvoustupňových železobetonových patkách, na spodní stupeň jsou osazeny prefa kalichy. Do kalichů patek se vetkly prefabrikované sloupy. Průmyslová podlaha v hale byla zhotovena jako drátkobetonová deska tl. 200 mm.

Hlavní nosnou konstrukci střechy tvoří železobetonové prefa sedlové vazníky „T“ průřezu na rozpon 20 m s výškou v hřebeni 1600 mm a 1240 mm v úžlabí. Sklon horní hrany je 3,6 %, spodní hrana je rovná. Ukládaly se do vidlic sloupů na pryžová ložiska. Štítové vazníky, resp. průvlaky s rozpětím 10 m jsou obdélníkového průřezu. Na horní příruby vazníků, resp. na zhlaví sloupů, jsou osazeny střešní vaznice. Obvodové vaznice byly dimenzovány jako podpora pro ocelové mezilehlé fasádní sloupy zatížené větrem. Svislou nosnou konstrukci budovy tvoří železobetonové prefabrikované sloupy o průřezu 600 x 600 mm. Hlavní sloupy, které vynášejí střešní konstrukce, jsou průběžné. V místech vestavků byly opatřeny konzolami pro uložení stropních průvlaků. Doplňkové sloupy vestavku, které nevynáší střešní konstrukci, byly ukončeny pod stropními průvlaky.

Na obvodové sloupy se kotvila konstrukce obvodového pláště.

Administrativní část

Vestavek pro administrativu je dvoupodlažní bez zastropení nad 2. NP. Jeho vodorovné nosné konstrukce nad 1. NP tvoří průvlaky s průběžným ozubem pro uložení stropních panelů. V příčném směru jsou pnuty na rozpon 10 m, uloženy byly na krátké konzoly hlavních sloupů haly a na zhlaví doplňkových sloupů. Na ozuby průvlaků se ukládaly předpjaté stropní panely. Štíty vestavku uzavírají stropní ztužidla.

Dispozice 2. NP dělí lehké příčky; výjimkou je prostor naproti hlavnímu schodišti, kde jsou dvě zděné nástavby, jejichž strop zde dotváří lokální 3. NP.

V prostoru naproti hlavnímu schodišti jsou dvě zděné nástavby, jejichž strop zde dotváří lokální 3. NPV prostoru naproti hlavnímu schodišti jsou dvě zděné nástavby, jejichž strop zde dotváří lokální 3. NP

Konstrukce střechy

Střecha objektu je sendvičová, základním nosným prvkem je trapézový plech kotvený na vaznice. Na trapézový plech byla položena parozábrana a tepelná izolace, povrch tvoří hydroizolační střešní fólie. Střešní plášť respektuje rozdělení konstrukce na dilatační úseky. Spádování střech je vytvořeno v nosné konstrukci. Trapézové plechy střešního pláště mají výšku 160 mm a jsou dimenzovány na rozpětí 5,0 m jako spojitý nosník o dvou polích.

Odvodnění střechy je řešeno podtlakovým systémem se střešními vpustěmi. U atik jsou osazeny protispádové klíny, v takto vytvořených úžlabích byly osazeny vpusti.

Obvodový plášť

Lehký montovaný plášť byl vytvořen z vertikálních sendvičových panelů s výplní minerální izolací. Pomocné konstrukce pro osazení fasádních panelů tvoří tenkostěnné ocelové profily nebo válcované nosníky. Prosklená fasáda má rámy z hliníkových profilů s přerušeným tepelným mostem. Pevné zasklení – izolační dvojsklo, Ug=1,4 W/m2K pro halu a Ug=1,1 W/m2K pro administrativní část.

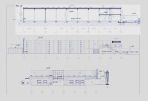
Půdorys 1. NPPůdorys 2. NPŘez budovou a pohledy

Zděné stěny

Stěny, oddělující schodiště administrativní vestavby od haly jsou zděné z tvárnic pro přesné zdění Porotherm 24 tl. 250 mm. Ze strany administrativy je stěna opatřena dvojitou sádrovou omítkou. Nadpraží otvorů vynášejí systémové nosné překlady Porotoherm, v případě většího rozpětí ocelové překlady.

Na jižní straně jsou k hale umístěny tři zděné přístavky. Střešní konstrukci „vajíčka“ tvoří žb monolitická deska s atikami. Atikový stěnový nosník, který je zde využit jako nosný průvlak, podepírají dva ocelové kruhové sloupky.

Střešní konstrukce skladu vozíků a spojovací chodby tvoří panelové stropy. Obvodové i vnitřní nosné zdivo přístavků je z cihelných tvárnic tl. 250 mm.

Použité materiály

Beton: C20/25-X0 monolitické základové pasy z prostého betonu; C30/37-XC2 monolitické základové pasy, dojezd výtahu; C40/50-XC2 monolitické základové patky/ kalichy; C30/37-XC4, XF1 monolitické nakládací můstky; C30/37-XC4, XF1 monolitické stěny (exteriér); C40/50XC4, XF1 prefa pohledové základové prahy; C40/50-XC1 prefa trámy, průvlaky, sloupy, stěny (interiér); C30/37-XC1 zálivkový beton
Prefa panely: předpjaté dutinové panely GOLDBECK SPG 320
Výztuž: B 500B
Konstrukční ocel: S 235 JO, EXC2
Trapézový plech: HACIERCO TR 160/250 a HACIERCO TR40/160 (Arcelor Mittal)
Nosné zdivo: POROTHERM tl. 240-250 pevnosti P10-P15 na maltu M2,5-5; YTONG tl. 200 mm pevnosti P4-P6 na maltu pro tenké spáry.

-vis-
Foto: Alexandra Timpau, Filip Šlap