Cílem článku je navázat na první tři díly. Závěrečná čtvrtá část seznamuje čtenáře s dalšími výsledky vývoje předpjatého dřeva.
Ve třetí části článku [1] je řešen dvouvrstvý nosník složený ze soustavy základních nosníků a příložky. Základní nosník typu I má nestejné pásnice – hmotnost dolních pásnic je stejná jako hmotnost příložky a hmotnost horních je podstatně menší (obr. 1). Toto materiálově vhodné řešení zároveň vyžaduje pro vyvolání průhybu a tím předpětí, před aktivací spojovacího lepidla zavedení předpínací síly (obr. 2). V další fázi vývoje předpjatého nosníku se ukázalo, že při jeho výrobě v obrácené poloze (obr. 3) se lze bez předpínací síly obejít a vyvolat průhyb pouze působením vlastní tíhy. Nutno však příslušně nadimenzovat horní pásnici. Z podmínky požadovaného konečného průhybu po obrácení panelu a zatížení
![]()
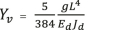
(1) plyne
(2),
kde Jd, resp. Ji je moment setrvačnosti průřezu soustavy základních nosníků, resp. celého panelu.
Každá odchylka momentu setrvačnosti příčného průřezu základních nosníků od (2) samozřejmě povede k jisté odchylce průhybu od hodnoty požadované v podmínce (1).
Před aktivací lepidla vychází normálové napětí v dolních pásnicích
(3),
v horních pásnicích
(4)
a průhyb
(5).
Po aktivaci lepidla a obrácení panelu vychází normálové napětí v dolních pásnicích
(6),
v horních pásnicích
(7),
v příložce
(8)
a průhyb
(9).
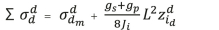
Po zatížení ve stavbě gs+gp, resp. ![]()
vychází normálové napětí v dolních pásnicích
(10),
v horních pásnicích
(11),
v příložce
(12)
a průhyb
(13)
a po dotvarování
(14).
K zajištění stability tlačených pásnic při vyvolávání deformace základních nosníků je jejich soustava opatřena tenkou překližkou, která bude při funkci ve stavbě sloužit jako podhled nebo základ pro úpravy podhledu. Při výrobě předpjatého panelu se tedy postupuje takto:
– ověření E, γ dřeva panelu,
– výroba soustavy nosníků s nestejně hmotnými horními a dolními pásnicemi, svislými stěnkami a ztužidly zajišťujícími stabilitu,
– nanesení pasivního lepidla na příložku v místech budoucích základních nosníků,
– uložení soustavy základních nosníků na podložku a vytvoření dvouvrstvého panelu,
– uložení dvouvrstvého panelu na krajní podpory,
– po aktivaci lepidla sejmutí panelu z krajních podpor,
– obrácení panelu a jeho osazení do stavby.
Způsob výroby je přihlášen k patentování [2].




Číselné příklady
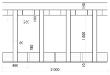
1. Střešní panel rozpětí 36 m, u kterého byly použity čtyři základní nosníky typu I s pásnicemi z lamelového dřeva spojenými stěnkami a spodní deskou z překližky a příložka ze dřeva CLT (obr. 4). Modul pružnosti dřeva pro výrobu pásnic byl zjištěn v průměru Ed = 1,4.104 MPa hmotnosti γ = 500 kg/m3. Pro výpočty bylo zavedeno Eo = 1,4.104 MPa. Panel bude zatížený v kg/m vlastní tíhou g = 240, střešním souvrstvím gs = 200, sněhem gp = 200,
= 140. Při Jd = 85,2.104 cm4, Ji = 257,5.104 cm4 vychází podle (2) Jd = 87,2.104 ∼ 85,2.104 a podle (10) normálové napětí v tahu dolních pásnic 12,3 MPa, podle (12) v tlaku příložky 14,6 MPa a konečný průhyb s přihlédnutím k dotvarování 103 mm. Kdyby nebyl panel předepnut, došlo by k průhybu 633 mm.


Jak bylo zmíněno v úvodu článku, ideálního výsledku, kdy k umělému průhybu panelu při výrobě postačí vlastní tíha, nebylo ani v číselném příkladu dosaženo. To vedlo k rozdílu průhybu panelu od ideálních hodnot. Ten je však vždy způsoben odchylkami modulu E použitého dřeva jako přírodního materiálu od hodnot zaváděných do výpočtu. Kontrolními výpočty je však ověřeno, že rozptyl skutečných hodnot Eo a Ed zaváděných do výpočtů předpětí o ± 35 % vede k odchylkám od vypočtených normálových napětí o méně než 10 %. Svědčí o tom i číselný příklad. Při úvaze, že zvolený modul v MPa Eo =1,4.104 bude při použitém dřevu příložky v mezích 1,1.104, resp. 2.104, vycházejí hodnoty napětí v příložce 13,9, resp. 15,3 MPa, napětí u dolních pásnic 12,4, resp. 12,1 MPa. Průhyb má hodnotu 121, respektive 121 mm. Stejně se liší i hodnoty nadvýšení jednotlivých panelů při jejich osazování do stavby. V číselném příkladě vycházejí podle (9) nadvýšení –159, respektive –118 mm. Tyto rozdíly lze při montáži vyrovnat způsobem popsaným již ve 2. části článku, tj. pomocí šroubových spojek ve čtvrtinách rozpětí podle obr. 5. Při rozdílu 41 mm je síla ve svorníku 2,4 kN. Lze ji dále snížit zavedením postupu kladení panelů do stavby, při kterém budou sousední panely vykazovat minimální rozdíly v nadvýšení. Po uložení střešního pláště a zatížení sněhem síly ve spojkách klesnou. V každém případě však přispějí k tomu, že rozdílné průhyby vykázané za předpokladu odděleného působení jednotlivých panelů se sblíží, neboť u sousedních panelů bylo spojkami dosaženo rovnosti průhybu.
2. Střešní panel rozpětí 36 m (obr. 6). Panel bude zatížený v kg/m vlastní tíhou g = 600, střešním souvrstvím gs = 1400 (zelená střecha), sněhem gp =200,
= 140. Ostatní údaje jsou shodné s 1. příkladem. Při Jd = 471,5.104 cm4, Ji =1476,1.104 cm4 vychází podle (2) Jd = 491,7.104 cm4 ~ 471,5.104 cm4 a podle (10) normálové napětí v tahu dolních pásnic 12,4 MPa, podle (12) v tlaku příložky 13,8 MPa a konečný průhyb s přihlédnutím k dotvarování 126 mm.
VÁCLAV ROJÍK
Prof. Ing. Václav Rojík, DrSc. (*1930)
– absolvoval Stavební fakultu ČVUT v Praze. Od šedesátých let po jmenování docentem a řádným profesorem v oboru teorie a konstrukce pozemních staveb a po studiu v zahraničí vedl na fakultě obor pozemní stavby a katedru konstrukcí pozemních staveb. Vedle vědeckovýzkumné a pedagogické činnosti spolupracuje jako expert, projektant a dodavatel konstrukcí, zejména v oblasti rekonstrukce budov.
Je soudním znalcem v oboru stavebnictví se zvláštní specializací pro teorii konstrukcí budov, autorizovaným inspektorem,
autorem několika stovek výzkumných a vývojových zpráv a publikací a desítek patentů a užitných vzorů.
Odkazy na práce autora:
[1] Velkorozměrný střešní panel z předpjatého dřeva – 3. část, Materiály pro stavbu č. 2, 2022
[2] Přihláška vynálezu PV 2022–278 Způsob výroby dvouvrstvého nosníku s omezeným průhybem
Publikováno v časopise Materiály pro stavbu č. 6/2022
https://demo.imaterialy.cz//rubriky/casopis-materialy-pro-stavbu/
Související články:
Velkorozměrný střešní panel z předpjatého dřeva
Velkorozměrný střešní panel z předpjatého dřeva – 2. část
Velkorozměrný střešní panel z předpjatého dřeva – 3. část


Nejnovější komentáře