Stavba v sobě koncentrovala všechny nástrahy, na které u rekonstrukcí rodinných domů z druhé poloviny minulého století narážíme. Kromě toho, že neměla právě přívětivé proporce, byla na pozemku špatně osazena. Dům se tedy musel obcházet přes zahradu – vstup měl z jihu, obytné místnosti byly orientovány na sever do ulice.
„Vstupní dveře jsme přesunuli na severovýchodní fasádu, původní vstupní část nahradila přístavba s novou kuchyní a jídelnou. Spolu s odstraněním jehlanové střechy jsme tak docílili příjemnější proporce domu. Terén jsme upravili, místnosti získaly přímý přístup na zahradu,“ uvádí architekt Ivan Boroš.
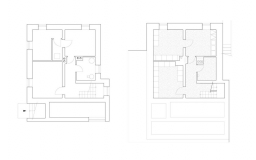
Na první pohled jednoduchá úvaha dům zcela proměnila – dům se teď otevírá do zahrady z nového obytného prostoru, nad nímž vznikla velkorysá terasa. Typická stavba ze sedmdesátých let minulého století získala sympatickou tvář, snad jen průčelí do ulice by mohlo být více přátelské. Obytný prostor se zvětšil díky přístavbě, na kterou navazuje terasa volně přecházející do zahrady. Porovnáme-li půdorysy přízemí před rekonstrukcí a po ní, jednalo se o radikální zásah – na svém místě zůstalo snad jen schodiště.
U rekonstrukce se začíná bouráním
Dům byl v 1. NP směrem do zahrady rozšířen o dva metry, v tomto podlaží se ale také nejvíce bouralo: v celé délce se odstranila nosná středová příčka, proboural se otvor pro propojení přístavby a obývacího pokoje. Rozšířeno a zvětšeno bylo hlavní okno z obývacího pokoje. Ve 2. NP se odstranily dvě příčky mezi pokoji, v 1. PP příčka dělící místnost s kotlem na tuhá paliva od skladu uhlí. Kromě toho se také bouraly nové otvory pro dveře. V obvodovém plášti byly přebourány některé otvory kvůli změně jejich proporcí a vybourány nové, například pro nový vstup. Většina změn na stávajících otvorech a dveřích byla provedena tak, aby se nemusely měnit překlady. Nad nově rozšířeným otvorem do obývacího pokoje je překlad z ocelových I profilů s vyzdívkou z plných pálených cihel. Stejným způsobem byl proveden i překlad nad novým otvorem mezi stávajícím obývacím pokojem a přístavbou.



V 1. NP je v místě původní nosné příčky průvlak z ocelových profilů, ve střední části uložený na stávající komín. Strop nad přístavbou je železobetonový s keramickými vložkami, po jeho obvodu je železobetonový věnec spojený s vodorovnou konstrukcí stávající stavby. Jako tepelná pojistka byl po obvodu věnce na vnějším líci vložen pás extrudovaného polystyrenu.
|
Dispoziční řešení: Z nového vstupu se vchází do předsíně a do hlavního obytného prostoru. Z obývacího pokoje je přístup do ložnice s vlastní koupelnou. Schodiště je směrem do 2. NP otevřené, směrem do 1. PP oddělené příčkou. Ve 2. NP se nachází chodba s přístupem na terasu, do pokojů a do koupelny. |




Stávající svislé konstrukce byly zděné, nacházely se v dobrém stavu. Obvodové zdivo přístavby je z keramických pálených tvarovek, příčky také. Ve schodišťovém prostoru je nová sádrokartonová příčka s tepelnou izolací pro oddělení 1. PP. Nad úrovní stropu nad 2. NP byla na obvodové zdi vystavěna atika.
Dále bylo třeba demontovat krov, tvar střechy se změnil ze stanové na plochou s atikou. Střecha je jednoplášťová s klasickým pořadím vrstev. Na nosnou konstrukci byla položena parozábrana a tepelná izolace z desek čedičové vlny Isover tl. 240 mm, vrstvu hydroizolace tvoří povlaková fólie Fatrafol. Střecha nad přístavbou je rovněž jednoplášťová s klasickým pořadím vrstev.
Fasáda a okna
Dům byl obložen kontaktním zateplovacím systémem (tepelná izolace Isover EPS Greywall 150). Poté se povrch sjednotil penetrací, následovala realizace štukové omítky. Fasáda soklu byla provedena obdobně. Sokl je mírně ustoupený z důvodu různých tlouštěk zateplovacího systému. Nový vstup byl opatřen ocelovým schodištěm. Dřevohliníkové rámy oken mají zasklení tepelně izolačním dvojsklem se součinitelem tepelného prostupu Uw = 1,2. Rámy jsou zapuštěné 100 mm od vnějšího líce fasády, na vnější straně mají tmavě šedou barvu. Po obvodu rámu se připojovací spára na straně interiéru utěsnila páskou s funkcí parozábrany, ze strany exteriéru páskou paropropustnou.



Řešení TZB
Dům je vybaven vzduchotechnickou jednotkou pro rekuperaci odpadního tepla a v létě pro chlazení. Je však možné větrat i okny. Vytápění zajišťuje tepelné čerpadlo, jako doplňkový zdroj vytápění slouží krbová vložka v obývacím pokoji.
Interiéry vyhřívá podlahové topení, v koupelnách doplněné topnými žebříky. V podlahách se po sejmutí nášlapných vrstev do stávající stěrky vyfrézovaly drážky, do kterých bylo uloženo potrubí pro vedení topného média. Betonová mazanina je po obvodu místností dilatačně oddělena od svislých konstrukcí mezerou vyplněnou eps polystyrenem. Na betonovou mazaninu se poté nanesla vyrovnávací samonivelační stěrka, na kterou pak byla nalepena dvouvrstvá dřevěná palubková podlaha o tl. 10 mm.
Díky komplexnímu řešení TZB mohli klienti čerpat plnou dotaci v rámci programu Zelená úsporám.
-vis-
Foto: edit! architects


Nejnovější komentáře