
Areál Slovenské národní galerie (SNG) patřil v posledních letech mezi nejsledovanější projekty, jednalo se totiž o adaptaci významných budov na nábřeží Dunaje, v bezprostřední blízkosti dvou náměstí. Historický objekt Vodních kasáren doplnil architekt Vladimír Dedeček v roce 1977 – vznikla tak odvážná ikonická stavba, která dotvořila urbanismus města. Rekonstrukcí nijak neutrpěla, invence architektů a nové technologické možnosti vytvořily z Dedečkova Přemostění ojedinělé dílo, které bylo zařazeno mezi letošní nominace na Cenu Miese van der Rohe.
Soutěž na obnovu galerie byla vyhlášena v roce 2003 a následně o dva roky později. Pro architekty se jednalo o výzvu – instituce sídlí na jedinečném místě u Dunaje, její areál tvoří složitou objemovou a prostorovou strukturu několika budov. Pro potřeby nově založené SNG se v padesátých letech minulého století přestavovaly barokní Vodní kasárny, v roce 1977 byl dokončen výrazný objekt Přemostění.

Od vyhlášení výsledků soutěže po realizační projekt tehdy uplynulo téměř deset let. Během této doby se prověřovala různě závažná rozhodnutí, některá řešení se ověřovala in situ v průběhu stavby. Několik fází vývoje měla koncepce barevnosti, u Přemostění a nádvoří se řešil také hluk z dopravy na nábřeží.
Nová Slovenská národní galerie získala v loňském roce několik ocenění, mezi nejvýznamnější patří letošní nominace na Cenu Miese van der Rohe, kde se budova umístila ve výběru dalších čtyřiceti staveb. Mimo jiné i proto, že skvěle propojila centrum Bratislavy s promenádou u Dunaje. Prostory galerie nyní navazují na Hviezdoslavovo náměstí, autoři vytvořili i možnost propojení vstupních prostor v historické ose bývalých kasáren vůči náměstí přes pasáž. A pod budovou vedení galerie vzniklo propojení od hotelu Devín po Štúrovo náměstí. Architektura objektu navíc neztratila myšlenkovou kontinuitu, nepodlehla chaosu z permanentních vnějších i vnitřních vlivů. Dlouhý čas přípravy projektu i samotné stavby autoři využili k tomu, aby vytvořili dílo, které projekt architekta Dedečka kultivuje a řadí do naší doby.
Složitě a dlouze k dobrému výsledku
Samotná obnova Přemostění byla pro autory vítězného návrhu velmi důležitá: „Při nakládání s architekturou Vlada Dedečka jsme měli několik scénářů, všechny ale zachovaly objemové a prostorové řešení, zůstala i materiálová podstata stavby a její barevnost. Výsledek vznikl na základě dlouhých úvah a diskuzí s autorem stavby. V první soutěži jsme s Přemostěním zacházeli radikálněji, podobně jako většina našich kolegů. Mýlili jsme se,“ uvádí Martin Kusý.

Z historie
Slovenská národní galerie byla zřízena roku 1948, od té doby ji vedlo 13 ředitelů a ředitelek, kteří vybudovali instituci na národní úrovni. Díky Karlu Vaculíkovi, který galerii řídil od roku 1952 úctyhodných 18 let, vznikl požadavek na dostavbu areálu Vodních kasáren na výstavní, vzdělávací a konzervační centrum slovenského umění. Svaz slovenských architektů tedy vyhlásil soutěž, kterou v roce 1963 vyhrál architekt Vladimír Dedeček. Jeho idea spočívala v levitujícím přemostění nad prolukou, která vznikla rozšířením nábřeží. Tato koncepce pak byla realizována mezi lety 1969 až 1977. Areál SNG měl tvořit městský blok mezi nábřežím, Říční ulicí a Náměstím L. Štúra, realizoval se však jen fragment v mimořádné sochařské figuře a monumentalitě, která redefinovala měřítko města a nábřeží.
Další důležitou postavou obnovy SNG je ředitelka Kateřina Bajcúrová: v důsledku havarijního stavu musela v roce 2001 přemostění SNG uzavřít, o dva roky později však vyhlásila první soutěž na hledání koncepce obnovy areálu. Nutno podotknout, že v té době nebyl osud díla Vladimíra Dedečka daleko od asanace. Část veřejnosti i kulturní obce tehdy volala po odstranění socialistických nánosů, brutalismu a pozdního modernismu. Na základě dvou architektonických soutěží se však zástupci SNG rozhodli Přemostění nebourat. Vídeňský kritik architektury a porotce první soutěže z roku 2003 Jan Tabor přišel kolem roku 2010 s iniciativou za nominaci Vladimíra Dedečka na Pritzkerovu cenu. Chtěl tím dát najevo výjimečnost tohoto autora. Exotičnost socialistického modernismu si vysloužila pozornost v kategorii soc-modern, brutalismus formy často umocněný bezútěšným technickým stavem této architektury vytvořil kulturní fenomén popkultury jako jisté trauma-estetiky. Tato architektura dodnes nedosáhla akademického uznání, a není to jen problém Slovenska.
„Na pomoc přišla spolu s Janem Taborem i fotografka Hertha Hurnaus, která zachytila naše monumenty pozdního modernismu v knize Eastmodern. Potvrzení ikoničnosti ‚ruiny‘ přemostění SNG pak pomohli mnozí architekti světové třídy, kteří Bratislavu navštívili na pozvání VŠVU, profesory Imre Vaška a Mariána Zervana. Byli mezi nimi Greg Lynn, Ben Van Berkel, Wolf Prix, Jan Neutellings, ale také NL Architects, kteří iniciovali odstranění gigantického billboardu z průčelí SNG,“ vzpomíná Martin Zaiček z ateliéru BKPŠ.


Zděné stěny barokních kasáren zdobí nádvoří. Řemeslně zvládnuté historické fragmenty původních cihlových, kamenných či pohledových betonových konstrukcí jsou nyní v kontrastu s novými prvky / Nové fasády ze skla a kovu jsou zavěšeny na původní konstrukci. Jejich historické barevnost autoři řešili s architektem Dedečkem
S Vladimírem Dedečkem se architekti z ateliéru BKPŠ seznámili, časem mezi nimi vzniklo přátelství – důležitá rozhodnutí společně konzultovali, vůči jejich záměrům pak projevil důvěru a podporu. Dozvěděli se také mnohé o původu jeho rozhodnutí, o dilematech, před kterými stál, o komplikovaných okolnostech průběhu stavby: „Setkání s Vladimírem pro nás byla zážitkem i proto, že jejich témata nebyla zdaleka jen architektonická,“ vzpomíná Pavel Paňák a dodává: „V našem portfoliu se jedná o nejkomplexnější a asi také nejsložitější projekt, když uvážíme všechny okolnosti, které ho ovlivňovaly. Jeho těžištěm bylo hledání nových vztahů a významů ve struktuře uzavřených a otevřených prostor. Mezi nejsilnější momenty patřily chvíle, kdy se začala vynořovat podoba prostorových figur. Byly to chvíle přímé konfrontace nakreslených obrazů s novou či staronovou realitou. A také chvíle silné motivace v každodenních a často vyčerpávajících bojích o dobrý výsledek.“
Vzhledem ke špatnému stavebně-technickému stavu bylo třeba u Přemostění nahradit fasády. Autoři zvažovali různé postupy, i proto, že architektura druhé poloviny minulého století je z hlediska ochrany živým tématem: „Stále hledáme pravidla, jak s ní zacházet. Povědomí o jejích hodnotách je u nás pořád ještě ve stavu formování. Míra našich vstupů do Dedečkových objektů byla diferencovaná, podmíněná více faktory. Už samotná bourání a demontáže některých konstrukcí pro nás vytvářely nová témata a korektury původních rozhodnutí. Nehledali jsme nové silné gesto, to bylo přítomno od Dedečkovy etapy. Náš podíl má více rovin – od funkčních a vztahových, objemových, materiálových až po zdánlivé maličkosti,“ říká Martin Kusý.
Větším objemem poslední etapy je nový depozitář, další objem vznikl přestropením nádvoří bývalého letního kina. Pod přemostěním vznikl nový prostor, kde se otevřela část suterénů.


Fasády ze skla a kovu
„Rekonstrukce měla zachovat prostorovou siluetu exteriéru i vnitřní haly. Autor objekt Přemostění záměrně vytvořil jako razantní formu, která vytvořila protiklad k architektuře barokních kasáren, u dunajské promenády tak vznikl ojedinělý celek. Záměrem obnovy bylo také uchovat primární gesto přemostění, tedy průhled do nádvoří kasáren od nábřeží. Novým obvodovým pláštěm jsme výraz objektu kultivovali a zároveň dosáhli potřebných stavebně-technických a stavebně-fyzikálních parametrů. Zachovali jsme tedy základní objemové rysy celého bloku, jeho povrchy však nyní tvoří metalicko-skleněný plášť, který jsme zavěsili na původní konstrukci. Na nosných pilířích byl obnoven břidlicový obklad,“ upřesňuje architekt Paňák.
Část depozitáře v suterénu autoři proměnili na výstavní sál, v jeho druhé části odstranili strop, takže se stal součástí nádvoří. Celkové prostorové řešení výstavního prostoru v hlavních rysech zachovali, na místech zaslepených konzol směrem k Dunaji vytvořili nové vyhlídkové galerie. Pro kvalitu výstavních ploch byla rozhodující nová zasklení ze severní strany.
Atrium a výstavní prostor v 1. PP mají podlahu z ručně hlazené betonové mazaniny s voskem na zvýšení matnosti, s nátěrem na snížení nasákavosti a s minerálním vsypem. Na stěnách jsou omítky a dřevěné obklady, na stropech dva druhy podhledů.




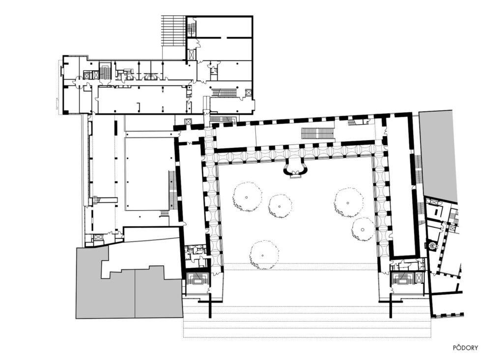
Půdorysy


Dispoziční řešení
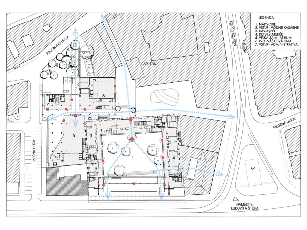
Výrazná figura Přemostění vytvořila průhled z nábřeží směrem k nádvoří Vodních kasáren na úrovni parteru. Jeho průčelí architekt Dedeček orientoval k nábřeží Dunaje, na východní straně je přistavěl k Esterházyho paláci, který také patří do souboru staveb SNG a byl nedávno rekonstruován. Na západní straně je Přemostění přimknuto k bytovému domu.
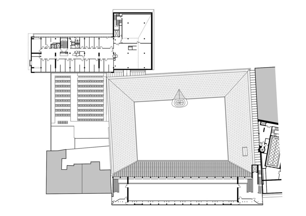
Centrální hala propojuje stejně jako dosud tři podlaží, přístupná je ze schodišť, Přemostění je také propojeno s ochozy kasáren. Na jižní fasádě je na úrovni 3. a 4. NP nový ochoz, předsazený před hlavním vazníkem příslušného podlaží. Tento vyhlídkový koridor se stal atraktivním doplňkovým prostorem výstavních síní. V suterénu Přemostění, kde byl dříve depozitář, vznikl nový výstavní sál otevřený do nádvoří.

Denní osvětlení výstavních prostor zajišťují pilové světlíky a zasklená šikmá fasádní stěna směrem do nádvoří. Proti oslnění je v 5. NP pod světlíky rozptylový roštový podhled, pod šikmou fasádní stěnou vodorovný rozptylový roštový podhled a svislý podhled ze skla.
Během obnovy zanikly interiéry od Jaroslava Němce, který na projektu pracoval s architektem Dedečkem. Sochařský výraz tu byl často výraznější díky podhledům, nábytkovým stěnám a obkladům. Ve výstavních prostorách jsou nyní dřevěné podlahy; dříve byly pouze ve vodních kasárnách. Dřevěné podlahy se původně nenacházely ani u Přemostění, které má charakter nekonečně plynoucího prostoru s chladným severním světlem. Dalším výrazným zásahem do hmoty Přemostění je dvojice oken ve východním a západním štítu. Spolu s odkrytím ocelových traverz na sloupech na úrovni nádvoří i ve druhém plánu průčelí tak byly přiznány konstrukce. „Došlo tím k poškození monumentality díla Vladimíra Dedečka – těžký objem zanikl, zůstal obnažený ocelový most, který nese lehký výstavní prostor. Postmoderní hra tak prozradila tajemství domu, zrušila napětí. Na druhé straně však díky tomu vznikly návštěvnické prostory. Pokud pomohou veřejnosti vytvořit si vztah k této úžasné architektuře, bude to jen dobře,“ uvádí Martin Zaiček z ateliéru BKPŠ. Dodává: „Při procházce areálem SNG se nemůžu ubránit pocitu, jako by se architektu Dedečkovi podařilo vytvořit jakési makety v reálném měřítku, rychlé modely myšlenky formováním prostoru a výrazu. Zpravidla je však táhla dolů kvalita tehdejší stavební praxe. Sám říkal, že často neměl prostor pro stavební dohled. Jeho díla tak brzy zestárla a chřadla.“



Slovenská národná galéria Bratislava
Autoři: Vladimír Dedeček (původní stavba); Architekti BKPŠ – Martin Kusý II., Pavel Paňák; spoluautoři Martin Kusý III., Maria Michalič Kusá, Jana Paňáková;
spolupráce H. Augustinová, R. Bakyta, P. Bolebruch, V. Bolebruchová, F. Branický, M. Čechová, J. Deraj, A. Dilhoffová, D. Húdoková, J. Jandová, R. Kereškényi, P. Kotvan, D. Kubinová, L. Labanc, J. Lutišan, R. Mašlonka, M. Pacher, B. Paňáková, J. Rell, M. Simonides, J. Vass, M. Zaiček
Hlavní dodavatelé stavby: STRABAG Pozemné a inžinierske staviteľstvo s. r. o. HORNEX, a. s.
Hliníkové fasády a střešní prosklení: FENESTRA Sk, spol. s r. o.
Terazzo podlahy: TERACO lité s. r. o.
Betonové prefabrikáty: KLOCOK Poprad, s .r. o.
Elektro, dodávka svítidel: ELIMER, a. s.; osvětlení výstavních prostor – ERCO
Zámečnické výrobky: ZÁMOČNÍCTVO Minarovič s. r. o., SILUMA, spol. s r. o.
Plocha pozemku: 8709 m2
Podlažní plocha: 27 911 m2
Návrh: 2005–2022
Realizace: 2016–2022
Investice: 65,8 milionu eur bez DPH Kompletní investiční záměr včetně všech stavebních objektů, vestavěného interiéru, mobilního interiéru, zařízení depozitárního domu, technologií, síťového vybavení, bezpečnostního projektu, zkoušek a měření, projektového servisu
Ocenění: CEZAAR 2023, kategorie Fenomény architektury; Cena Dušana Jurkoviča 2023; nominace na Cenu Mies van der Rohe 2023 a na Cenu Piranesi Award 2023


Ocelové konstrukce
Objekt Přemostění má racionálně modernistickou formu: 1. PP a 1. NP tvoří železobetonový suterén pro kotvení ocelové konstrukce horní stavby. Uprostřed 1. PP byl depozitář, po obvodu strojovny, elektrorozvodna, výtah a schodiště, ve 3.–5. NP byly stejně jako dnes výstavní prostory.
Hlavní nosnou konstrukci tedy tvoří soustava prostorových ocelových příhradových a rámových ocelových konstrukcí. Čtyři příhradové nosníky mají různé výšky (od 3,9 do 4,5 m), celková šířka ocelové konstrukce činí 22,1 m, délka 74,45 m; rozpětí nosníků mezi podpěrami 54,5 m. Délky konzolových částí před a za podpěrou hlavního pole jsou 7,5 a 10,12 m. Stropní nosníky byly k hlavním nosníkům připojeny pomocí ložisek a čepů v podélném rastru 2,0 m. Nosná část podlahy je z vyztužených žebrovaných plechů přivařených na stropní i mezilehlé nosníky. Vodorovné výztužné systémy tvoří tuhé stropní desky.
Nosný systém střechy je z rámů v modulu 4,0 m. Rám byl v původním projektu tříkloubový, ale v roce 2001 byly klouby v hřebenu střechy svařeny. Střešní roviny nemají tuhý výztužný systém. Stropy byly opatřeny zasklenými podhledy v ocelovém rámu, pod střešní konstrukcí byly stínicí prvky z plechu a matných skel (jejich systém využíval podélné prostorové zavětrovací prvky střechy). Světlíky na střeše byly zaskleny jednoduchým sklem, severní střecha orientovaná do nádvoří byla prosklená celá.
Fasádní plášť tvořil ocelový plech s barevnou povrchovou úpravou (+ tepelná izolace a parozábrana z vnitřní strany). Jednotlivá podlaží na fasádě dělily dva pásy z umělého skla.



Barokní kasárna vytvořila nádvoří
Vodní kasárna už několikrát změnila svoji funkci, což provázely i změny stavebně-konstrukční. Arkády v přízemí autoři návrhu uzavřeli, aby vznikl prostor se vstupní halou, kavárnou, prodejnou, ateliérem dětí. Dále se tu nacházejí také servisní a technické prostory (trafostanice, kanál elektro).
Nosné konstrukce barokní stavby tvoří zděné stěny na pásových základech. Ve středním křídle se odstranila část trámového stropu 1. NP tak, aby vznikly nové vstupní prostory a mohlo se osadit hlavní schodiště. Menší část stropu se bourala pro schodiště nad 2. NP. Ocelová konstrukce krovu také zůstala, odstranily se z ní jen pomocné profily pro uchycení podhledu. Podkroví je zatepleno a opatřeno novou krytinou.

V celém objektu byly odstraněny všechny povrchy kromě omítek na klenbách. Podlahové vrstvy se očistily až k nosné konstrukci (kromě násypů kleneb), v 1. NP byly odstraněny podlahy i s podkladním betonem pro nový systém vzduchotechnických kanálů. Exteriérové omítky a obklady byly odstraněny na výšku 1. NP, nahradily je omítky sanační. Na východní a západní fasádě se omítky odstranily i ve vyšších podlažích, nyní jsou tu omítky tepelněizolační. Stejně tak se odstranily omítky do výšky římsy nad přízemím a na plochách poškozených dešťovou vodou ze střechy. Místo nich jsou tu sanační omítky. V úrovni 2. a 3. NP byly omítky vyspraveny, v úrovni 4. NP je fasádní zateplená omítka (tl. 100 mm). Kamenné obklady – břidlice a tenký travertin – se po bourání použily jako plnivo do směsí pro terazzo.
Skleněné tabule arkád v 1. NP byly osazeny 5 cm za líc fasády tak, aby se dosáhlo vzhledu původního omítkového soklu. V arkádách na 2. a 3. NP jsou nedělená celoplošná okna s ocelovým rámem a izolačním dvojsklem. Odsazena jsou směrem dovnitř 300 mm od vnějšího líce. Na věži na hlavním křídle jsou repliky původních oken a zasklených stěn. Okna mají dřevěné rámy a izolační dvojskla.
Z průběhu stavby:







STŘECHY
Střecha nad 1. PP:
Střešní plášť o ploše 219,50 m2 je vyspádován do odvodňovacího žlabu u obvodové stěny.
Skladba:
● nátěr pro snížení nasákavosti betonu
● minerální vsyp, jemné broušení
● betonová mazanina C25/30 se zahlazeným povrchem s mikrovýztuží, dilatovaná po 9 m2
● ochranná geotextilie
● hydroizolační fólie
● ochranná geotextilie
● tepelná izolace z extrudovaného polystyrenu tl. 60 mm
● celková tloušťka 160–200 mm
Střechy nad 1. NP
Jedná se o střešní pásy pod ocelovou konstrukcí Přemostění, na lávkách spojujících objekt Přemostění s nádvořím Vodních kasáren a v místě nástupu na schodiště. Ve střešním plášti je osazeno zasklené zábradlí, které vymezuje střešní plášť vůči prostoru 1. PP, dále také exteriérová zasklená stěna. Z vnitřní strany střešního pláště a spojovacích lávek je umístěno zábradlí.
Střecha nad 6. NP
Střešní plášť o ploše 546,4 m2 leží na nosných prvcích v modulu po 950 mm, které jsou kotveny k příčným nosníkům ocelové konstrukce. Součástí střešního pláště je osnova ocelových sloupků z uzavřených profilů šířky 50 mm. Vrchní vrstvou je hydroizolační fólie na podkladních vrstvách včetně roznášecí (tyto plochy byly opatřeny pochůznými rohožemi). Nosná vrstva střešní konstrukce je z trapézového plechu. Střecha je přirozeným sklonem primární konstrukce vyspádovaná ke žlabu za uliční atikou.
Skladba:
● hydroizolační fólie nebo rohože
● ochranná geotextilie
● tepelná izolace z minerální vlny tl. 250 mm
● parozábrana
● penetrační nátěr
● ocelový trapézový plech, tloušťka 0,5 mm
● celková tloušťka 222,8 mm
-vis-
Foto: Matej Hakár, Ján Kekeli;
snímky z průběhu stavby: archiv autorů
Publikováno v časopise Materiály pro stavbu 1/2024





