„Pokud je strop složený z jednotlivých dílů jako vodorovné diafragma, předpokládá se stropní deska soustavy ve své rovině jako dokonale tuhá. Při tomto působení vznikají ve stycích stropních dílců smykové vodorovné síly. Jejich přenesení stykem je zaručeno, pokud povrch dílců je takový, že vznikají hmoždinky i ve vodorovném směru.“ (Horáček, str. 27, zdroje /7/).
V navrhování stropních konstrukcí podle typových podkladů byl ve stavební praxi projektových ústavů uplatňován do r. 1989 statický model stropních dílců uvažovaných jako prosté nosníky. V běžných podlažích byly užívány panely pro užitné zatížení 1,5 kN/m2, v místech betonových příček nebo instalačních panelů s otvory pak zesílené s užitným zatížením 3,0 kN/m2. Nad nejvyššími podlažími byly často jen zesílené panely, nikoliv však vždy. Bylo to zejména proto, že panel stejných rozměrů i označení mohl být podle projektových návrhů, případně při montáži do stavby, uložen např. jak u podélného obvodového pláště, tedy na okraji stropní tabule, tak uprostřed rozpětí celé hloubky sekce, v místech maximálních hodnot jednosměrného působení.
Je zřejmé, že u nejvyšší stropní konstrukce, pod střešním pláštěm se spádovými klíny vrstev pod hydroizolací působilo na panel rozdílné zatížení, v některých případech nebyla únosnost panelů dostatečně využita, v jiných také někdy docházelo k jejich mírnému přetížení. Uvážení jednosměrného působení stropních panelů bylo převážně na straně bezpečnosti, praktičtí statici navíc nedisponovali dostatečným časem při zpracování statických výpočtů (ani kvalitními výpočtovými programy dnešní doby) pro event. řešení této problematiky, aby problém přesněji vyhodnotili zvážením možnosti využití dvousměrného působení stropních desek jako celku.
Typové podklady, z nichž se vycházelo, byly zpracovávány špičkovými ústavy – včetně schvalovacích procesů – několik let. ČSN 731211, platná pro navrhování nosných konstrukcí panelových domů, ale i ČSN 731201, základní norma pro navrhování betonových konstrukcí, vyžadovaly průkazy dostatečné únosnosti smykových napětí ve spárách mezi dílci, a to jak ve směru zatížení působícího kolmo ke střednicové rovině stropní desky, tak také působícího v rovině stropní desky (ukázky úprav okrajů stropů či stěn viz obrázky 1 a 2, roznášecí účinek viz obr. 3).



Eurokód 2 (ČSN EN 1992-1-1) neuvádí ve svém základním textu vzorce pro přenos příčných či podélných smykových sil „hmoždinkovým způsobem“, připouští počítat přenos podélné smykové síly podle vzorce 6.25 této normy, pro případy rizika vzniku trhlin se má uvažovat se součinitelem „c“ v nulové hodnotě pro velmi hladké spáry, a c = 0,5 pro
zazubené spáry.
Vzorec 6.25: vRdi = c . fctd + μ . σn + ρ. fyd (μ . sin α + cos α)
VRD má při tom být menší než 50 % redukované návrhové pevnosti fcd
(součinitele c a μ vyjadřují drsnost spojovaných ploch).
Je třeba zmínit okolnost, že v ČR byla dříve tomuto problému věnována značná pozornost, ve VÚPS Praha a Stavebním ústavu ČVUT (dnes Kloknerův ústav, viz /4/) bylo realizováno mnoho experimentálních vyhodnocení zkoušených styků hmoždinkového působení zakončených průkazními výsledky. Ve zdroji /1/, str. 37–42, který rovněž vychází i z experimentálního ověřování, uvádí prof. Witzany část výsledků s tím, že ve směru rozdělovací výztuže stropních panelů, při zpřesněných výpočtech, lze dosáhnout přenosu až 22 % hodnot ohybových momentů z hlavního – nosného – směru stropních panelů. Výpočet ale není úplně jednoduchý, je zapotřebí mít také představu o přenosu ohybových momentů i ve styčných spárách, nejen průkaz únosnosti podélného a příčného smyku, dále není úplně snadné popsat výpočtový model s reálnou tuhostí stykových spár. V Eurokódu 2 je pak v čl. 10.9.3., odst. 12 uvedeno omezení, že průměrné smykové napětí ve spárách, při podélném smyku, nemá překročit hodnotu 0,1 MPa (100 kPa) u styků s velmi hladkými plochami a hodnotu 0,15 MPa (150kPa) u styků s plochami s drsným povrchem.
Význam spřahovacího účinku je zřejmý zejména u nosných stěn při působení ohybového namáhání, kdy v jejich střednicové rovině významně přispívá k výhodnějšímu působení celé stěny jako celku, vzhledem k okolnosti, že moment setrvačnosti stěny narůstá ve třetí mocnině výšky průřezu, jak je zřejmé z obrázku č. 4. Spřažení ve spárách mezi stropními panely, kdy zatížení působí zejména kolmo na střednicovou rovinu, má zpravidla menší význam u složky působící kolmo ke střednicové rovině, může být také využito (např. včetně uvážení většinou příznivého vlivu vzniklých rohových reakcí od účinku kroutících momentů v rozích desek napjatých dvousměrně).


Varianta posouzení konstrukce z podkladových materiálů získaných z archivů
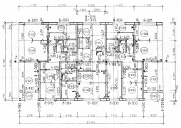
V případech, kdy lze získat nějakou archivní dokumentaci původního projektu nebo údajů z konstrukcí příslušné typové stavební soustavy, lze toho výhodně využít pro statickou analýzu únosnosti stropní konstrukce a také svislých panelů obvodového pláště. Nosné vnitřní stěny mají zpravidla větší rezervu v únosnosti, u objektů malorozponových soustav do výšek s devíti nadzemními podlažími nebývá často potřebné únosnost přepočítávat (to vždy ale uváží příslušný zpracovatel stavebně konstrukční části nového projektového řešení). Jako příklad získaných podkladů uvádím podklady čtyřpodlažního domu se suterénem z verze konstrukční soustavy P1.11 Ol. Jedná se o řadovou sekci hloubky 10,8 m. Realizovaná střecha je jednoplášťová se spádovými klíny vrstvy kačírku (štěrkopísku hrubších frakcí), provedeného pod horní hydroizolací a tepelnými izolanty, oboustranně směrovanými pozvolným spádem od obvodových panelů podélných fasád ke střední podélné ose domu (obr. 5, 6 a 7).



Katalogové listy stropních dílců udávají zpravidla statické parametry. Ze získaných podkladů vyplývá, že problematickou stránkou statického posouzení může být nadokenní překlad dílce samonosného obvodového pláště. Stěží se podaří získat výkres výztuže dílce (vyloučit to ovšem nelze), projektová dokumentace dodávaná projektovými ústavy tuto informaci nepodávala – bylo to v období uplatňování tzv. katalogového projektování – a katalogový list zhotovitele panelu statické parametry neuvádí, protože prvek nebyl klasifikován jako nosný z hlediska mechanické odolnosti a stability, zabudovaná výztuž garantovala dostatečnou únosnost prvku pro samonosný obvodový plášť. Vyztužení lze tedy získat velmi pravděpodobně jen ověřovací kontrolní sondou přímo na místě.
Jinou variantou získání podkladů pak může být, že podklady stavební soustavy uvádí možná zatížení v charakteristických hodnotách ve svých textových částech, jako např. v /6/, kde se uvažuje s hmotností vlastní tíhy stropního panelu, maximálním přitížením střešním pláštěm (2,35 kN/m2) a maximální mírou zatížení sněhem v úrovni charakteristické hodnoty 1,5 kN/m2.



Smyková únosnost styčné spáry mezi stropními panely pro zatížení působící kolmo ke střednicové rovině:
Podle norem ČSN 731201/1986 a 731211/1987:
Využito výsledků z výpočtu /3/ – obr. 8.
Srovnání podle ČSN EN 1992 – 1-1
(EUROKÓDU 2), vzorce 6.25:
Pro stykový beton C12/15 – fctk = 1100 kPa
(podle /1/, str. 109)
fctd = αct . fctk0,05/γc = 0,8 . 1100/1,5 =586,67 kPa
Únosnost spáry na délku panelu, uvažuje se
c = 0,5 (zazubená spára vlivem hmoždinek), výška spáry 0,15 m:
VRD = 0,5 . 0,15 .4,2 . 586,67 + 0 (bez kolmého normálového tlakového napětí) + 0
(bez vyztužení styku výztuží) = 184,8 kN.
Průměrné smykové napětí ve spáře:
τ = 184,8/4,2 . 0,15 = 293,33 kPa > 150 kPa (0,15MPa), lze připustit pouze
(uvažuji stejnou hodnotu pro podélný i příčný smyk) – VRD = 150 . 0,15 . 4,2 = 94,5 kN (94,5/4,2 = 22,5 kN/m).
Únosnost spáry v ohybu (za předpokladu, že ve spáře nevznikla trhlina):
σ = MED / Wy, tedy MED = σ . Wy, σmax = fctd
fctd = 586,67 kPa
Wy = 1/6 . 1,0 . 0,152 = 3,75 . 10-3 m3/m
MED = 586,67 . 0, 00375 = 2,2 kN . m/m
Právně přípustným, pokud není k dispozici přesnější analýza experimentálního ověření, je postup podle Eurokódu 2, čl. 10.9.3, odst. 5. Lze postupovat podle vzorce:
vEd = qEd . be/3,
kde be označuje šířku panelu v m, qEd označuje návrhovou velikost proměnného zatížení v kN /m2.
Například pro šíři panelu 2,4 m činí – vEd = 1,5 kN /m2. 1,5 (součinitel γq) . 2,4 / 3 = 1,8 kN/m.
To je výrazně nižší hodnota než výše uvedených 22,5 kN/m.
Konstatuji, že s variantou únosnosti spáry betonu v ohybu, kolmo na délku spáry, je lépe nepočítat (jak je obvyklé u prvků namáhaných ohybem – tedy tahem v tažené části průřezu – a z důvodu rizika vytvoření trhliny smrštěním stykového betonu ve spáře), ale soustředit se pouze na smyková napětí ve spáře, a dále počítat pouze s příznivým účinkem výztuže pro přenos dimenzačních momentů (ohybových + kroutících) při horním líci stropních panelů, pokud je při horním líci výztuž, která zajistí jejich dostatečnou únosnost (u této konstrukční soustavy tomu tak je, viz /2/ a zde obr. 11). Podélný smyk, od zatížení působícího ve střednicové rovině stropní desky, tedy vlastně vyšetřování stěny, vyvolává ve většině případů menší velikosti smykové napjatosti, obvykle vyhoví podmínkám článku 10.9.3., odst. 12 Eurokódu 2.
Při hodnocení průběhu ohybových momentů je třeba rovněž přihlédnout k dílčímu vetknutí spojité stropní desky, pokud existuje, a přiměřeně porovnat diferenci velikosti ohybových momentů v místě uvažovaného přímkového kloubu (viz obr. 10).

Varianta posouzení únosnosti bez podkladových materiálů
To je častá varianta, vlastnictví objektů je nyní v mnoha případech v rukou Sdružení vlastníků jednotek, které po provedení převodu do vlastnictví nemají žádné podkladové materiály. V těchto případech je nezbytné postupovat individuálně a o míře kontrolních sond se snažit rozhodnout podle vlastní úvahy s ohledem na přijímanou odpovědnost autorizované osoby.
JAROMÍR VRBA
Ing. Jaromír Vrba, CSc., (*1944)
– absolvoval stavební fakultu VUT Brno v r. 1969. Do roku 2005 pracoval ve Stavoprojektu Olomouc. Od konce roku 2005 má vlastní statickou kancelář. Profesně se zabývá řadu let konstrukčními systémy budov a jejich zakládáním. Je autorizovaným inženýrem pro statiku a dynamiku staveb a také pro pozemní stavby. V ČKAIT pracoval 16 let v dozorčí radě, v oborech statika stavebních konstrukcí a poruchy a rekonstrukce staveb byl 20 let soudním znalcem.
Zdroje:
/1/ Witzany, Vrba, Honzík, Otvory v panelových domech, ČKAIT. 2014
/2/ J. Vrba, Panelové soustavy Olomouckého kraje, ČKAIT, Profesis, tech. pomůcka č. T. P. 1.30.7, 2016
/3/ J. Vrba, Posouzení únosnosti stropních panelů pod rekonstruovanými bytovými jádry soustavy OP1.11 Ol a T 06B Ol, Stavoprojekt Olomouc 5/1994
/4/ E. Horáček, V. I. Lišak, D. Pume a kol., Únosnost a tuhost styků panelových konstrukcí, SNTL Praha, 1983
/5/ Honzík V., Štěpánek P., Vrba J., Zelené střechy panelových domů, Stavebnictví 10/2020
ČSN EN 1992 – 1 – 1, Navrhování betonových konstrukcí, 2006 (Eurokód 2)
ČSN 731201, Navrhování betonových konstrukcí, 1986
ČSN 731211, Navrhování betonových konstrukcí panelových budov, 1987
/6/ Katalogy dílců malorozponové konstrukční soustavy P1.11, racionalizace 1985, Pozemní stavby Olomouc, verze 1985, 1989
Projektová dokumentace sekcí P1.11 – konstrukční část, Stavoprojekt Olomouc, revize „R1984“, 1984
/7/ Regenerace nosných systémů panelových budov, 24. 10. 2001, Praha Masarykova kolej ČVUT, Česká betonářská společnost ČSSI


Nejnovější komentáře