V dubnu loňského roku představila společnost Wienerberger cihlářský průmysl nové řešení části překladu Porotherm KP Vario, do kterého se zabudovávají prvky stínicí techniky. Vylepšení se týká především materiálového řešení schránek pro umístění žaluzií či rolet. Výrobce následně přišel i s řešením umístění tohoto prvku v konstrukci rohových oken.
Společnost Wienerberger cihlářský průmysl představila řešení nadokenních překladů pro zabudování žaluzií a rolet s názvem Porotherm Vario na pražském stavebním veletrhu FOR ARCH už na podzim roku 2009. Výhodou těchto překladů je variabilita pro použití pro různé tloušťky stěn (odtud název Vario) dosažená skladebností jednotlivých prvků systému a jejich kombinacemi. Částečnou nevýhodou tohoto systému je omezený prostor pro zabudování stínicích prvků. Například balkónové dveře je možné zastínit typem žaluzie, který dodává pouze jediný výrobce.
Během jednoho roku pak výrobce zákazníkům v tomto systému nabídl i řešení tzv. rohového okna, které pak prezentoval na svých setkáních s odborníky ze stavební praxe v rámci jednoho z ročníků Wienerberger fóra.
Loňská inovace systému pak spočívá v novém řešení části překladu Porotherm KP Vario, do které se zabudovává prvek stínicí techniky, přičemž nosná část překladu byla ponechána beze změn, protože použití v praxi prokázalo mimořádnou výhodnost tohoto řešení. Polystyrenový tepelně-izolační díl byl v systému nahrazen samonosnou schránkou s univerzálním použitím jak pro rolety, tak pro žaluzie (odtud přídomek UNI). Schránka byla zkonstruována z lehkých moderních mate-riálů (desek z materiálů purenit® a puren®) tak, aby co nejlépe naplňovala požadavky na tepelnou ochranu, poskytovala dostatek vnitřního prostoru pro stínicí techniku, umožňovala i dodatečné zabudování rolet nebo žaluzií až po provedení finální fasádní úpravy a také dávala možnost volby typu vodicích lišt – zda budou přiznané, nebo zapuštěné do ostění okna či dveří. Vývoj a testování nové univerzální schránky, na kterém se podíleli také kolega ze slovenské sesterské společnosti, firma PROALU z Vestce u Prahy a hlavně pak její výrobce, firma SM produkt z Lišova u Českých Budějovic, trvaly jeden a půl roku.
Inovované překlady Porotherm KP Vario UNI si již během zbytku roku 2016 získaly velkou oblibu, když se za devět měsíců od uvedení na trh prodalo téměř pět kilometrů těchto výrobků. Že se nejedná o ledajaký výrobek, potvrzuje i fakt, že překlady získaly Zlatou medaili Stavebních veletrhů Brno 2016 a že v soutěži Innovation Award 2016 celého koncernu Wienerberger AG získaly First Prize v kategorii Výrobky a systémy.
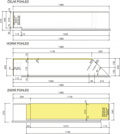
S novým řešení pro stále oblíbenější rohová okna, často používaná v budovách pro bydlení, přišla společnost Wienerberger tentokrát dříve než „do roka a do dne“. Nový systém rohových překladů Porotherm KP Vario UNI R, představený na loňském veletrhu FOR ARCH v Praze, vychází z původního konceptu překladů pro rohová okna, došlo však k několika konstrukčním úpravám. Ocelová hlavice sloupku byla uzpůsobena pro osazení a následnou fixaci levé a pravé rohové schránky Porotherm Vario UNI L a P tak, aby se již dále nemusely jinými prostředky uchycovat k monolitické části překladu. Univerzální schránky, které se v rohu napojují pod úhlem 45 °, jsou uloženy svou zadní stěnou na hlavici a k hlavici se připevňují pomocí protiplechu tvaru širokého L. Protiplech se v místě napojení schránek vloží dovnitř schránek a schránka se přes něj zespodu přišroubuje pomocí čtyř šroubů M8 se zapuštěnou hlavou (oba konce schránek se v rohu fixují dvěma šrouby) do vnější konzoly hlavice, která ponese překlady Porotherm KP 7 umístěné nad schránkami v úrovni ztužujícího věnce.





Byly navrženy dvě varianty hlavice – jedna pro tloušťky stěn 380 a 400 mm, druhá pro tloušťky 440 a 500 mm. Ocelový sloupek čtvercového průřezu byl zesílen na profil 100×100×8 mm, aby pokud možno vyhověl běžnému zatížení překladů v rodinných domech. Při zatíženích sloupku nad 60 kN a výšce nad 1,5 m je vždy nutné sloupek individuálně posoudit. Nosná část rohového překladu se tentokrát skládá výhradně z překladů Porotherm KP Vario se spřahovací výztuží. Podrobný postup montáže je uveden v technickém listu, který je umístěn na webových stránkách společnosti www.wienerberger.cz.
Překlady Porotherm KP Vario R se dodávají v délkách od 1000 mm do 3250 mm v odstupňování po 250 mm. Univerzální rohové schránky Porotherm Vario UNI se dodávají v provedení levém (Vario UNI L) a pravém (Vario UNI P) – schránky se označují L a P podle pohledu na rohové okno z exteriéru. Rozměry průřezu vnitřního prostoru schránky pro stínicí prvek jsou 175×260 mm. Součinitel tepelné vodivosti materiálu purenit® 550MD je 0,080 W/(m.K), desek tloušťky 60 mm z purenu® je 0,028 W/(m.K).





Oba materiály, ze kterých je schránka vyrobena, mají vynikající tepelněizolační vlastnosti, jsou velmi lehké, ale zároveň mají i jednu nevýhodu – jsou křehké. Přestože je každá schránka pro přepravu zabalená do bublinkové folie, řadí se tento výrobek do kategorie pro manipulaci a dopravu „křehký“. Tuto skutečnost by měli respektovat všichni pracovníci, kteří přijdou do styku se schránkami při manipulaci, dopravě i skladování.
ANTONÍN HORSKÝ
foto archiv firmy Wienerberger cihlářský průmysl, a. s.
Ing. Antonín Horský (*1956)
absolvoval SF ČVUT v Praze (1980), obor konstrukce a dopravní stavby. Poté pracoval u Vodních staveb Sezimovo Ústí a od roku 1985 u Jihočeských cihelen České Budějovice jako konstruktér keramické prefabrikace. V současnosti je produktovým technikem u a. s. Wienerberger cihlářský průmysl. Je členem Technické normalizační komise č. 37 Zdivo a zděné konstrukce, Technické normalizační komise č. 8 Akustika a předsedou Technické komise Cihlářského svazu Čech a Moravy.



