Informace výrobců, Výplně otvorů, Zajímavá stavba

Rodinný dům v německém Rheine je domovem a kanceláří zároveň

Úkolu nenásilně a zároveň co nejpraktičtěji skloubit obytný prostor pro pětičlennou rodinu s oddělenou pracovní částí se architektonická kancelář Engelshove zhostila mimořádným způsobem. Obytné a pracovní zázemí jsou vizuálně a formálně odděleny stupňovitým uspořádáním dvou stavebních objektů a využitím různých fasádních materiálů. Naopak sjednocující úlohu má velkoformátové zasklení a vchodové dveře z hliníkového systému Schüco.

Přízemí rodinného domu s obývákem a jídelnou je velkoryse otevřeno venkovní terase a zahradě díky pevnému zasklení s otvíravě sklopnými okenními dveřmi ze systému Schüco AWS 75.SI. Převis horního patra vytváří praktické zastínění terasy.Vstupní zóna rodinného domu s blokovými okny ze systému Schüco AWS 75 BS.SI a vchodovými dveřmi za systému Schüco ADS 75.SI s biometrickou čtečkou otisků prstů Schüco Fingerprint

Projekt rodinného dumu s obytným využitím na dvou podlaží a kancelářským prostorem v prvním patře hned od první chvíle vycházel z několika zásadních požadavků ze strany klienta. Mezi ty hlavní patřily transparentnost, dostatek přirozeného světla a využití přírodních materiálů. Výsledkem měl být puristický styl bydlení, zdůrazňující čistotu a eleganci. Architektonická kancelář Engelshove připravila návrh kombinující přehlednost a funkčnost s variacemi tvarů a stavebních materiálů. K oddělení obytné části v přízemí od prvního patra, které je primárně koncipováno jako pracovna, architekt využil stupňovitého uspořádání stavebních objektů a dvojího ztvárnění fasád. Přičemž horní patro, opatřené pultovou střechou s 10° sklonem, vytváří na severní a jižní straně praktický převis, který slouží jako zastřešení terasy a vstupní zóny.

Na žádost klienta byly použity přírodní stavební materiály. Výsledná kombinace sestává z kabřincových cihel, fasády z vláknocementových desek a elegantních hliníkových profilů) Rohové pevné zasklení v přízemí s izolačním trojsklem, které tepelné ztráty snižuje na minimum

Dialog mezi materiály
Striktní preference klienta vůči puristickým stavebním materiálům byly respektovány při volbě opláštění i vybavení interiéru. Architekt se u fasády rozhodl pro kontrastní dialog mezi kabřincem v živých odstínech, dominantním v prvním patře, a světlými jednobarevnými vláknocementovými deskami v přízemí. U vstupního průčelí a terasy má kabřincové obložení přesah i do přízemí, čímž vizuálně propojuje oba stavební moduly. Na podlahy v interiéru byl, vyjma dřevěných parket v ložnici, vybrán přírodní kámen Jura Jupiter. Stěny a stropy ponechal architekt čistě bílé.

Podkroví s blokovým oknem Schüco

Světlo a průhled mají prioritu
Dostatečný přísun denního světla a transparentnost měly při ztvárnění rodinného domu vysokou prioritu. Skleněné plochy v hliníkových rámech působí jako spojovací prvek dvou odlišných fasád, elegantní kovový vzhled harmonizuje jejich rozdíly v rozvržení, materiálech i barvách. Okna jsou čistě zapuštěna do fasády, jemné přerušení vzniká pouze v místě, kde se pevné zasklení potkává s otvíravými částmi. Použity byly dva hliníkové okenní systémy, velkorozměrné pevné zasklení s otvíravě sklopnými okenními dveřmi v přízemí sestává z vysoce tepelně izolovaného systému Schüco AWS 75.SI. Bezbariérové provedení zprostředkovává nerušený přechod mezi obývákem s jídelnou a terasou. Na zbývající otvíravé okenní jednotky byl zvolen systém blokových oken Schüco AWS 75 BS.SI se skrytým okenním rámem. Prosklení v hliníkových rámech vizuálně i technicky doplňují vchodové dveře ze systému Schüco ADS 75.SI. Odstín výplně odpovídá barvě okenních profilů, kování je vybaveno bezpečnostním zámkem Schüco SafeMatic a biometrickou kontrolou vstupu přes čtečku otisků prstů Schüco Fingerprint. Již při přibouchnutí automatický zámek Schüco SafeMatic bez klíče uzamyká dveře na čtyřech bodech. Dojde-li ještě k otočení klíčem, zvyšuje se počet blokovacích bodů na pět. Takto automaticky uzamčené dveře lze zevnitř bez problému otevřít jednoduchým stisknutím kliky. Zvenku je nutný správný klíč nebo biometrické údaje. Vstup do domu je pohodlný a maximálně zabezpečený.

Pevné zasklení v kombinaci s bezbariérovými otvíravě sklopnými okenními dveřmi pro pohodlný pohyb mezi interiérem a exteriéremZ jídelny orientované na jih mají obyvatelé domu krásný výhled do zahrady i přilehlého lesíku

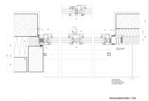
Detail napojení – kabřinec, okenní překlad (zdroj Engelshove.de)Schüco AWS 75.SI – horizontální řez (zdroj Engelshove.de)

Údaje o stavbě:
Název: Rodinný dům s kanceláří v německém městě Rheine
Architekt: Engelshove Bau-GmbH, Ing.-Büro Architektur Bauunternehmen, Neuenkirchen
Zpracování kovových materiálů: ASP GmbH & Co. KG, Preußisch Oldendorf
Obytný prostor: přízemí 118,25 m², první patro 71,25 m²
Stavební konstrukce: Dvouvrstvá zděná konstrukce/odvětrávaná fasáda z vláknocementových desek, včetně 160mm izolace
Dokončeno: únor 2012
Produkty Schüco:
– pevné zasklení a otvíravě sklopná jednotka ze systému Schüco AWS 75.SI,
– bloková okna ze systému Schüco AWS 75 BS.SI se skrytým okenním rámem,
– vchodové dveře ze systému Schüco ADS 75.SI, vybavené snímačem otisků prstů Schüco Fingerprint.

Specifika objektu:
– otvíravě sklopné okenní dveře v přízemí s bezbariérovým prahem,
– vstupní dveře s biometrickou kontrolou vstupu přes Schüco Fingerprint a 5bodovým bezpečnostním zámkem Schüco SafeMatic se samočinnou aktivací blokovacího mechanismu,
– trojité izolační zasklení s hodnotou Ug = 0,6 W/m².K,
– hliníkové profily v jednotném odstínu DB 703.

podle podkladů společnosti Schüco CZ