Nedávno skončila rekonstrukce bývalého sídla pražských Elektrických podniků, které patří mezi naše největší a nejvýznamnější památky funkcionalistické architektury. Vnější vzhled paláce teď odpovídá původnímu, ačkoliv mnoho prvků bylo nahrazeno novými – keramický plášť, většina oken a vnějších dveří, střešní souvrství, zábradlí na střechách a balkonu.
Rekonstrukce stavby z roku 1935 byla navržena ateliérem TaK architects s ohledem na její památkovou ochranu. „Budova odrážela společenskou úroveň i ambici první republiky, ve své době patřila k nejmodernějším v Evropě. Vlivem střídání vlastníků i nevhodných stavebních zásahů strádala, v posledních letech se nacházela v havarijním stavu,“ uvádí architekt Marek Tichý a dodává: „Monitorování a diagnostika obvodového pláště trvaly šest nebo sedm let. Původně jsme se domnívali, že dlaždice na fasádě byly poškozeny tím, že se z nich smývala černá barva – celá budova byla totiž za druhé světové války natřena, aby se nestala cílem leteckých útoků. Ale ukázalo se, že hlavním důvodem byla špatně zvolená skladba obvodového pláště. Keramický obklad totiž praskal, odlupoval se a opadával včetně cementového lože. Vedlo to i k poškození parapetních vyzdívek a atik a narušení jejich stability. Rekonstrukce tedy nespočívala v záchraně obkladaček, ale obvodového pláště jako celku včetně výplní otvorů. Když jsme s ní na jaře roku 2018 začali, měli jsme zdokumentováno, že až 80 % plochy fasády bylo nevratně poškozeno. Proto jsme se po zvážení možností a dlouhodobé diskusi s památkáři rozhodli pro kompletní opravu. Cennější bylo chránit architekturu budovy v jejím celistvém výrazu, nikoli jednotlivé prvky. Původní obklad ve vnitrobloku ale zůstal, podle restaurátorského záměru jsme vyměňovali jen jednotlivé kusy. Plocha pláště činí přes 6500 m2, oken a dveří je na fasádě ke třem tisícům… Náročnost oprav spočívala především v tom, že funkcionalistická architektura začala pracovat se sklem a železobetonem v úplně jiném rozsahu, než bylo do té doby možné. Sama o sobě je tedy velmi křehká. Navíc při stavbě základů se v betonových směsích používaly tzv. hlinitanové cementy. V té době byly populární, beton tuhnul a svoji pevnost zvyšoval daleko rychleji než do té doby používané konstrukční betony. Ale zhruba po dvaceti letech se ukázalo, že pevnost rychle ztrácí a v 60. letech minulého století byl dokonce jako stavební materiál zakázán. Základové patky jsme tedy museli sanovat mikropilotami.“



Konstrukce a plášť budovy
Nosnou konstrukci tvoří železobetonový skelet s průvlaky a křížem vyztuženými deskami, obvodové výplně byly vyzděny z dutinových cihel. Sloupy jsou rozmístěny v pravoúhlém rastru v typické vzdálenosti 5,2 m. Konstrukce nejvyššího podlaží tvoří ocelové válcované nosníky se šroubovými spoji, aby mohly být v případě potřeby demontovány – počítalo se s možností přistavět další dvě podlaží, na které byla nosná konstrukce dimenzována.


Jako tepelná izolace měl být podle původní projektové dokumentace použit kamenokorek tl. 30 mm. Tam, kde bylo nutno použít izolaci menší tloušťky, celotex tl. 6–11. Jak se ale při průzkumech ukázalo, tepelná izolace na domě zcela chyběla.
Fasáda byla obložena keramickým obkladem Rakodur (výrobce Rako Rakovník), stěny dvorů v úrovni 6. a 7. NP byly pro lepší prosvětlení sklobetonové střechy obloženy jasně bílým obkladem Tunelia. Stejný obklad byl použit také u obvodové šachty před suterénními okny lázní. Plochy fasády více chráněné před klimatickými vlivy byly obloženy umělým kamenem (například o vnitřní stěny atik střech v úrovni 6. NP).
Poškozený keramický obklad fasády nahradil nový na kontaktním zateplovacím systému. Některé jeho části, zejména ve vnitřních dvorech, ale zůstaly zachovány, podařilo se je restaurátorsky opravit. Sklobetonové střechy nad hlavní vstupní halou a oběma bočními halami byly zakryty novou konstrukcí s tepelněizolačním zasklením, které převzalo funkci zastřešení při zachování jeho průsvitnosti. Vyměnila se většina oken. Zdvojená okna od 1. do 6. NP a pásová ocelová okna ve 2. a 7. NP nahradily kopie. Schodišťové stěny byly repasovány.


Monitoring fasády
Fasádu s osmdesát let starým keramickým obkladem diagnostikovali odborníci z Kloknerova ústavu ČVUT v Praze. Zjistili, že až 80 % plochy vykazuje neopravitelná poškození a životnost obkladu je téměř vyčerpána. Životnost zatím vizuálně nepoškozeného obkladu odhadli na 10–15 let. Zhruba do deseti let lze očekávali jeho plošné odpadávání i s vrstvou malty z fasády.


Ve skladbě fasády navíc nebyla zjištěna tepelná izolace a docházelo v ní ke kondenzaci.
V souhrnu tedy uvedli, že proces degradace fasády je trvalý a nevratný, přibližně tři čtvrtiny obkladu vykazují neopravitelná poškození, zbytek by tohoto stavu dosáhl v dohledné době. Dle jejich soudu nebylo ani možné ochránit zatím vizuálně nepoškozený obklad před degradací a postupnou separací od konstrukce. Jako jednu příčin degradačního procesu označili vědci z Kloknerova ústavu narušení povrchů, nevhodnou skladbu pláště s mrazovým rozhraním a kondenzačním pásmem mezi maltovinou obkladu a vyzdívkami, procesy vyvolané vysokými rozdíly teplot. Příčinou separace malty s obkladem od konstrukce tak bylo kromě teplotních dilatací také zamrzání kondenzátu ve vrstvě malty v zimním období.
Navrhli proto dvě varianty řešení: Částečnou náhradu poškozeného obkladu replikou a ochranu nepoškozeného obkladu impregnací s nezaručeným výsledkem a účinností. Další variantou byla kompletní celoplošná náhrada obkladu.
U první varianty upozornili na to, že v ploše fasády je obtížné nalézt větší souvislou plochu, například parapetní pás, kde by obkladačky byly bez poškození. Prakticky v každé takové velké ucelené ploše našli místa s lokálním poškozením obkladu. A protože nemohli spolehlivě stanovit plošný rozsah oblastí, kde je malta s obkladem separována od konstrukce, hrozilo by, že se poruší celistvost obkladu (s maltou separovanou od konstrukce), která je zatím zajištěna velkou tloušťkou obkladu s maltou (cca 50 mm) a vysokou pevností malty. S největší pravděpodobní by tak došlo k tzv. dominovému efektu, kdy odpadnou velké plochy i vizuálně nepoškozeného obkladu s maltou z fasády.
Důležité bylo i to, že sejmuté obkladačky nebylo možné použít znovu. Většinu z nich by se totiž nepodařilo očistit od zbytků malty, aniž by se poškodily. A kromě toho, při této variantě není možné provést tepelné izolace v celé ploše fasády. Navíc hrozilo, že zhruba po deseti letech bude muset vlastník budovy vyměnit další části původního obkladu.
Výhodou kompletní náhrady obkladu byla mimo jiné možnost realizace tepelných izolací v celé ploše fasády. Důležité také bylo, že na fasádě nebude obklad s rozdílnou dobou životnosti.
| Rekonstrukce budovy bývalých Elektrických podniků hl. m. Prahy, Bubenská 1, Praha 7, nemovitá kulturní památka |
|
Investor: CPI Property Group |
Obnova fasád ve dvorech
Laboratorní zkoušky prokázaly vysokou přídržnost keramického obkladu a malty, a naopak separaci malty obkladu od podhozu keramických vyzdívek nebo skeletových částí stavby. Kondenzační zóna, která spadá do oblasti vnější dutinové cihly a cementové malty, resp. cyklické zamrzání kondenzátu v zimním období, způsobily degradaci materiálů kondenzátem nasycených právě v místě rozhraní podhozu a malty.
Bylo proto rozhodnuto o ponechání tvarovek, pokud byly spolehlivě zapojeny v navazující sestavě obkladu. Vyměňovaly se jen mechanicky poškozené kusy (například průvrty nebo kotvením osvětlení a elektroinstalace).
Plochy se očistily tlakovou vodou v kombinaci s čištěním systémem horké páry, nanotechnologickými čističi a vysokotlakým čističem. Mechanicky poškozené tvarovky se vyměňovaly ručním vyklepáním cementové výplně spáry a vyjmutím. Nahradily se obkladem vyrobeným na zakázku, který byl připevněn lepidlem na původní podklad opatřený penetrací a adhezním můstkem. Spárování se opravovalo pouze lokálně tak, aby se neporušila integrita soudržných míst a jejich propojení s částmi, kde byly spáry výrazně poškozeny.


Prosklená stěna u hlavního schodiště
Konstrukce prosklené zdvojené stěny se skládá z ocelových pásovin a T, L profilů, které jsou k sobě nýtovány a šroubovány. Směrem do exteriéru měla tmavě modrou barvu, v interiéru bílo-béžovou. Zasklení vnější i vnitřní strany měla průsvitná skla s rastrem jemných nitek. Dochovala se jen malá část původních skel.

U ocelových konstrukcí byla odstraněna zasklení, sklenářské tmely a nátěry, poté se doplňovaly poškozené části, degradované korozí. V průběhu náhrady poškozených profilů bylo postupně provedeno překotvení ocelových kotev po obvodu i poškozených kotev v čelních částech podest. Nově osazené kotvy se do obvodového pláště zabetonovaly chemickou kotvou.
Ocelová konstrukce pak byla opatřena vrchním nátěrem, následovaly finální úpravy.
V rámci repase byly odstraněny vnější ventilační mříže, nahradilo je zasklení. Nové ventilační mříže splňují požadované procento sání (60 % z celkové plochy).
Na vnější straně prosklené stěny je klasické sklo float o síle 6 mm. Vnitřní konstrukce byla zasklena sklem s vybraným vzorem pod názvem Baťa tloušťky 6 mm. Tam, kde jsou skleněné tabule v kontaktu s podestou, byla skla kalena. Sklo se nejprve přilepilo sklenářským silikonem, následně kytovalo tmelem s cílem v co největší míře obnovit autentický charakter historické konstrukce.
Výkladce
Po odstranění mosazných lišt se z konstrukcí odstranilo sklo. Demontovaly se také vložené příčky rozdělující kdysi impozantní rozměry skleněných výplní na více částí. Snahou přitom bylo navrátit skla původních rozměrů, obnovit velkorysé rastrování budovy a současně zlepšit tepelnou ochranu stavby náhradou jednoduchých skel skly izolačními. Konstrukci výkladců tvořily ocelové svařence z vnější strany opatřené obklady z mosazného plechu, mosazné byly i některé komponenty výstrčí, kování a další prvky. Z výkladců bylo proto třeba sejmout všechny zachované mosazné prvky, provést repasi ocelových konstrukcí a jejich zpevnění nově vloženým rámem, který zvýšil jejich nosnost. Poté proběhlo zasklení, navrácení a v chybějících partiích doplnění mosazných prvků.
Očištěny byly také nůžkové mříže, 17 kusů bylo repasováno. Nové dveře a dveřní rámy jsou rozměrové shodné s původními, také mosazná madla byla vyrobena jako repliky. Dveře jsou stejně jako původní pivotové, k zamykání slouží válečkový zámek bez nutnosti použít kliku.


Obnova dřevěných oken
Zdvojená okna byla vyrobena z borovicového dřeva, osazena byla na ocelových válcových závěsech. Směrem do exteriéru měla modrou barvu, do interiéru šedou. Skla o tloušťce 6 mm byla zalištována dřevěnými lištami.
V průběhu 80. let byly rámy překryty druhotnými nátěry, které popraskaly. Na některých místech mechanické poškození zasáhlo až do hmoty dřeva. Vlivem sesýchání byla okna zkřížena, křídla vůči rámu netěsnila. Uzamykací mechanismus byl nepohyblivý, dřevěné zasklívací lišty popraskané a zkroucené.
Repase byla zahájena odstraněním druhotných nátěrů, chybějící části se nahradily ve stejném materiálu a profilaci. Nesoudržné spoje byly vyčištěny od degradovaného lepidla a lepeny. Netěsnosti mezi křídlem a rámem doplnila silnější špána, poté se dřevo napustilo základními barvami. Pro tmelení defektů se používaly tmely na bázi plavené křídy, pilin a fermeže. Poté se okenní rámy natřely. Souběžně s repasí oken proběhla výroba zasklívacích lišt. Zámky byly demontovány, očištěny a navráceny. Okna byla zasklena izolačním dvojsklem – u vnějšího i vnitřního okna je čiré sklo float, pouze zasklení vnitřního okna ve spodní části budovy má skla conex 3+3+2.


| Z historie |
|
Palác Elektrických podniků byl vybudován podle návrhu architektů Adolfa Benše a Josefa Kříže, se stavbou se začalo v roce 1930. Má dvě podzemní a sedm nadzemních podlaží, výškově i půdorysně je členitý, avšak symetrický. Půdorys má tvar obdélníka o rozměrech 110 x 80 m, maximální výška centrální části je 31 m. Členěním hmoty vznikly dvory a atria. Ústřední částí budovy je monumentální, padesátimetrová hlavní loď obklopená galeriemi šesti podlaží. Severní křídlo s tzv. drážní dvoranou sloužilo dopravní divizi Elektrických podniků, jižní křídlo energetické divizi. Suterén: V suterénu se nacházely přednáškové sály a kinosál, lázně pro zaměstnance a také audiovizuální studio. Dále tu byl manipulační prostor garáží provozních aut, která byla spouštěna výtahem. Přízemí: Velká vstupní hala jako komunikační střed celé budovy. Postranní a zadní vchody byly určeny pro zaměstnance. 1. patro: Velké sály, rozdělené nízkými příčkami, sloužily jako účtárny. Byla zde též telefonní ústředna. V prvním patře v zadní části se nacházely elektrotechnické dílny a úřadovny magistrátu. 2. až 4. patro: Další kanceláře s galeriemi okolo vstupní haly s hlavním schodištěm a výtahy. Celou budovou procházejí čtyři šachty, soustřeďující větrání, elektrické kabely, potrubní poštu a odpady. 5. a 6. patro: Páté patro bylo vytvořeno jako rezerva pro další kanceláře, terasa nad čtvrtým patrem měla sloužit jako oddychový prostor. V pátém patře vyúsťovala vzduchotechnika. V šestém patře se nacházela místnost s kuchyní. Palác byl ojedinělý v řešení TZB |
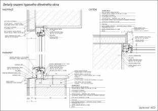
Připojovací spáry oken
Okna byla osazena do železobetonového skeletu. Osazovací ozub na ostění a nadpraží se vyboural. Parapetní vyzdívku nyní tvoří cihelné bloky plněné minerální vlnou tl. 300 mm, ukončena je železobetonovým věncem. Vnější hrana oken byla osazena s vnější hranou železobetonového skeletu. Dřevěné rámy se stavební hloubkou 78 mm mají připojovací spáru vyplněnou polyuretanovou pěnou. Kontaktní tepelná izolace železobetonového skeletu a parapetní vyzdívky byly přes rám okna přetaženy 25 mm. Mezi vnější hranu okna a vnitřní hranu tepelné izolace kontaktního zateplení se u parapetu vložil přířez z extrudovaného polystyrenu. Izolaci kontaktního zateplení v oblasti parapetu ukončilo seříznutí v úhlu spádu vnějšího parapetu. Vnitřní parapet okna je z tvarovaného litého betonu.
Rám okna byl ve výpočtovém modelu podrobně modelován, detaily se posuzovaly z hlediska nejnižší vnitřní povrchové teploty.



Sklobetony
Do exponovaných částí interiérů autoři původního návrhu komponovali sklobetonové panely. Liší se žebrováním i variantami skleněných tvarovek. Často se nacházejí v konstrukcích střech, v mnoha případech jako kombinace prefabrikovaných panelů a monolitických partií. Jejich expozice na pomezí vytápěného a nevytápěného prostoru, subtilnost a hmotnost konstrukce způsobily jejich výraznou degradaci. V rámci projektu se dokonce uvažovalo o jejich snesení. Jako jediná možnost jejich záchrany se ukázalo vybudování samostatné nezávislé konstrukce zastřešení nad sklobetonovým stropem. Sklobetony pak byly obnoveny jako celek, do jejich konstrukce se zasahovalo co nejméně. Vyměňovaly se mechanicky výrazně poškozené části, zejména skleněné.
Betonové části byly nejprve očištěny, aby bylo možno rozpoznat defekty. Většinou se jednalo o drobné praskliny, místy odpadla část betonového krytu výztuže. Pro opravu byl vybrán materiál Monocrete Monomix XP. Skleněné tvárnice na mnoha místech překryla barva nebo stěrka. Poškozené nebo vytlučené tvárnice se v minulosti nahrazovaly nevhodnými alternativami. Pro rekonstrukci se vyráběly nové s využitím formy odlité z původní tvarovky. Formu i výrobu zajistila sklárna Preciosa Ornela. Vyjmutí poškozených kusů se provádělo ručně, aby se nepoškodily navazující partie ani konstrukce. Vyspravený povrch betonových částí konstrukce byl penetrován a natřen.
POŠKOZENÍ OBKLADU
Obklad fasády byl proveden z obkladaček 370 x 190 mm s obchodním označením RAKODUR; ve dvoře D byly použity zářivě bílé obkladačky TUNELIA formátu 110 x 110 mm, vyvinuté pro metro v New Yorku. Na některých nárožích byly použity tvarovky příčného průřezu L. Ostění oken jsou řešena na sraz. Na sloupy byly použity obkladačky jiných rozměrů, často malé části obkladu, řezané na míru. Průměrná tloušťka typických obkladaček je 18,5 mm; na některá ostění oken byly použity obkladačky tl. 11 mm.
Pro zvýšení přídržnosti obkladu je na rubové straně obkladačky 10 prolisů hlubokých 5 mm a systém vodorovných drážek hl. 0,5 mm. V typické obkladačce je 35 drážek. Na hranách obkladačky jsou dvě drážky hl. 0,8–1 mm.
Povrchové vrstvy spárování byly původně provedeny čistým cementem, který na povrchu spárování na většině plochy fasády již chyběl. Jeho zbytky byly nalezeny jen ojediněle.
Na základě vizuální prohlídky bylo poškození obkladaček rozděleno takto:
A: Soustava vlasových trhlin šířek 0,1 mm
B: Soustava trhlin šířek 0,1–1,5 mm
C: Odprýskávání povrchových vrstev
D: Trhliny vyvolané objemovými změnami nosné konstrukce
E: Separace nebo odpadnutí obkladu od podkladu
F: Mechanické poškození
Některé typy poškození se vyskytovaly v kombinaci, zpravidla A, B a C. Největší míru poškození vykazovaly západní fasády a obklad říms atrií E a F u odtokových žlabů. Nejméně byly poškozeny východní fasáda a fasády ve dvorech.
Diagnostika skladby fasády
Byly provedeny destruktivní sondy a jádrové vývrty až na nosnou konstrukci či výplňové zdivo. V žádném z deseti diagnostikových míst nebyla nalezena tepelná izolace.
Obkladačky byly ke konstrukci připevněny cementovou maltou, která vykazovala vysokou pevnost v tlaku. Mezi maltou a konstrukcí byl zpravidla cementový podhoz, ve dvou případech beton. Výplňové zdivo je vyzděno ze dvou řad čtyřkomorových dutinových cihel.
Tepelně technické posouzení
Cílem bylo stanovit polohu kondenzační zóny ve skladbě fasády, a to s ohledem na místy zjištěnou separaci malty s obkladem od konstrukce. Pro posouzení byla zvolena nejvíce se vyskytující skladba fasády, tj. obklad připevněný cementovou maltou na výplňové zdivo tl. 300 mm. Posouzení skladby fasády bylo provedeno pro různé tloušťky cementové malty pod obkladem, a to pro min. zjištěnou tl. 16 mm, průměrnou tl. 26 mm a max. tl. 36 mm. Výsledky se pro různé tloušťky malty pod obkladem výrazněji neliší. Kondenzační zóna ve skladbě fasády s výplňovým zdivem ze čtyřkomorových dutinových cihel spadá do oblasti vnější dutinové cihly a cementové malty pod obkladem, tj. malty, kterou je obklad připevněn.
Skladba nevyhovovala požadavkům ČSN 73 0540 kladené na součinitel prostupu tepla a šíření vlhkosti konstrukcí. Celoroční bilance kondenzace vodní páry je tedy pasivní.
Kondenzát v zimních měsících v fasádě cyklicky zamrzá, což způsobuje degradaci kondenzátem nasycených materiálů. Tato skutečnost je příčinou místy zjištěné separace malty s obkladem od konstrukce.
Přídržnost
Byla zjišťována přídržnost obkladu k cementové maltě i cementové malty ke konstrukci, tj. železobetonu nebo zdivu z dutinových cihel. Zkoušky se provedly na vizuálně nepoškozeném obkladu a na obkladu s poškozením typu A v 16 místech. Hodnoty přídržnosti obkladu k cementové maltě byly poměrně vysoké. Jednotlivé hodnoty přídržnosti se pohybují v rozmezí 0,66–2,55 MPa.
Při odběru vzorků obkladu se na několika místech ukázalo, že dochází k separaci obkladu od malty. V maltě byly trhliny ve směru kolmo na obklad.
Přídržnost cementové malty ke konstrukci byla zjišťována v 18 zkušebních místech. Jednotlivé hodnoty přídržnosti se pohybují v rozmezí 0,00–2,24 MPa. Ve 4 zkušebních místech z 18 byla malta od konstrukce separována. V těchto místech se přídržnost malty ke konstrukci rovnala nule. Ukázalo se, že poškození dlaždic typu A nemá vliv na hodnoty přídržnosti obkladu k maltě a malty ke konstrukci.
Pevnost v tahu a modul pružnosti
Zkouškám bylo podrobeno 10 vzorků, z toho 6 bez vizuálně patrného poškození a 4 s poškozením typu A. Zjištěné hodnoty pevností v tahu a modulu pružnosti nepoškozeného obkladu a obkladu s poškozením typu A jsou přibližně shodné. Hodnota modulu pružnosti E = cca 50 GPa je pro keramický obklad tohoto typu obvyklá.
Pevnost v tahu za ohybu
Zkouškám bylo podrobeno 12 vzorků, z toho 6 bez vizuálně patrného poškození (referenční vzorky ke zkoušce mrazuvzdornosti) a 6 po zkoušce mrazuvzdornosti, které byly před zkouškou mrazuvzdornosti bez vizuálně patrného poškození a po zkoušce mrazuvzdornosti byla u dvou vzorků zjištěna trhlina.
Průměrné hodnoty pevností v tahu za ohybu obkladu bez vizuálně patrného poškození a obkladu po zkoušce mrazuvzdornosti (75 zmrazovacích cyklů) jsou přibližně shodné, není zde patrný výraznější negativní vliv na mechanickou pevnost.
Nasákavost
Zkouškám bylo podrobeno osm vzorků, z toho čtyři bez vizuálně patrného poškození a pět s poškozením typu A. Průměrné hodnoty nasákavosti obkladu bez vizuálně patrného poškození jsou nižší než průměrné hodnoty nasákavosti poškozeného obkladu. Z toho lze odvodit, že poškození má negativní vliv na nasákavost obkladu.
Pórovitost
Zkouškám bylo podrobeno devět vzorků: čtyři bez patrného poškození a pět s poškozením typu A, B a C. Mikroskopické analýze byly podrobeny čtyři vzorky, z toho dva vzorky střepu a dva vzorky glazury. Průměrné hodnoty objemové (otevřené) pórovitosti obkladu bez vizuálně patrného poškození jsou nižší než průměrné hodnoty pórovitosti poškozeného obkladu, což koresponduje se zjištěnou nasákavostí obkladu. Z toho lze usuzovat, že v důsledku poškození došlo k propojení některých pórů v pórovém systému poškozeného obkladu. Pórový systém je pak schopen pojmout více vody, což dokumentuje vyšší zjištěná nasákavost poškozeného obkladu.
Průměrné hodnoty plošné pórovitosti střepu obkladu bez vizuálně patrného poškození stanovené mikroskopickou analýzou jsou přibližně stejné jako průměrné hodnoty pórovitosti poškozeného obkladu. Z toho lze usuzovat, že poškození nemá podstatný vliv na plochu pórů na povrchu střepu.
Mikroskopická analýza
V rámci analýzy byla stanovena opticky plošná pórovitost obkladu, a to jak glazury, tak střepu. Dále byl zjišťován charakter poškození obkladu soustavou vlasových trhlin se zaměřením na hloubku, do které zasahují. Tedy zda jsou trhliny pouze v glazuře nebo zasahují i do střepu. V rámci analýz byla změřena i tloušťka glazury.
Ukázalo se, že většina vlasových trhlin vizuálně patrných na povrchu obkladu zasahuje i do střepu. Póry v glazuře jsou zpravidla v rámci glazury, tj. otevřené na povrchu, ale mezi nimi a střepem je glazura. V řezu glazury je méně pórů než ve střepu. Póry v glazuře jsou však větší oproti pórům střepu. Orientačně změřená průměrná tloušťka glazury je 0,18 mm.
Mrazuvzdornost
Zkušební vzorky byly podrobeny 75 zmrazovacím cyklům. Změny jejich struktury byly po 25 cyklech sledovány dynamickou zkouškou ultrazvukovým impulzem. Zkoušce bylo podrobeno 14 vzorků, z toho 6 bez vizuálně patrného poškození, 6 s poškozením typu A a 2 s poškozením typu C.
Na základě výsledků zkoušek mrazuvzdornosti, měření relativního modulu pružnosti a vizuálního hodnocení obkladu lze konstatovat:
U obkladu bez vizuálně patrného poškození jsou změny struktury velmi malé, prakticky v rozsahu nejistoty měření. Vizuálně byl u dvou vzorků zjištěn vznik trhliny na povrchu vzorku.
Obklad s poškozením typu A a C
vykazoval určité změny ve struktuře, tj. degradaci střepu. Vizuálně u vzorků s poškozením typu A a C nedošlo ke vzniku nových trhlin, nicméně trhliny po zkoušce byly výraznější, zejména u vzorků s poškozením C.
Teplotní a vlhkostní roztažnost
Zkoušce bylo podrobeno šest vzorků, z toho tři bez vizuálně patrného poškození a tři s poškozením typu A. Ze vzorků byla odříznuta glazura. Průměrná zjištěná hodnota součinitele teplotní délkové roztažnosti střepu α je pro keramický střep tohoto typu obvyklá. Průměrná vlhkostní roztažnost, která proběhla za celou dobu existence obkladu, byla stanovena hodnotou 0,06 mm/m, což je hodnota na hranici opakovatelnosti měření v dilatometru, kterou lze odhadovat na ± 0,065 mm/m. Nelze tedy prokázat, že střep podléhá fenoménu nevratné vlhkostní expanze.
Odolnost proti náhlým teplotním změnám
Ustanovení ČSN EN ISO 10545-9 předepisuje zahřátí na vzduchu na teplotu 145 °C a náhlé ochlazení vodou na 15 °C. Teplota 145 °C je v běžných podmínkách nedosažitelná, proto se zkoušky prováděly při reálné teplotě osluněného povrchu obkladu, tj. 70 °C.
Zkoušce bylo podrobeno 7 vzorků bez vizuálně patrného poškození, z toho čtyři při rozdílu teplot Δt = 130 °C dle a tři při rozdílu teplot Δt = 55 °C. U všech vzorků došlo v průběhu zkoušek k poškození vlasovými trhlinami.
Proces degradace obkladu
Příčinou rozsáhlého poškození obkladu je kombinace několika dlouhodobě působících nepříznivých vlivů. Jedním z nich je náhlá změna teploty, která iniciuje vznik vlasových trhlin. Tyto trhliny nejprve zasahují glazuru a následně pokračují do střepu. Náhlé teplotní změny nastávají v teplých ročních obdobích, kdy na rozpálený obklad dopadá chladný intenzivní déšť. Trhliny pak vytvářejí transportní cesty pro vodu, byla prokázána vyšší nasákavost a pórovitost střepu poškozeného obkladu. Nasákavost nepoškozeného obkladu je rovněž vyšší, než se běžně udává pro hutný střep. K dalšímu sycení obkladu vodou docházelo v oblasti atik a říms, a to zatékáním poškozenou hydroizolací střech. Důsledkem vyšší nasákavosti a pórovitosti poškozeného obkladu je snížení jeho mrazuvzdornosti. Vlivem teplotních cyklů přecházejících přes bod mrazu v zimním období dochází k postupné a nevratné degradaci obkladu.
Dle výsledků informativního tepelně technického posouzení skladby fasády spadá kondenzační zóna do oblasti vnější dutinové cihly a cementové malty pod obkladem, tj. malty, kterou je obklad připevněn. Kondenzát v zimních měsících ve skladbě fasády cyklicky zamrzá, což způsobuje degradaci kondenzátem nasycených materiálů. Tato skutečnost je příčinou separace malty s obkladem od konstrukce.
S ohledem na křehký charakter keramického střepu je důležité si uvědomit, že proces degradace obkladu je trvalý a nevratný. Vezmeme-li v úvahu výše uvedené procesy, jejich kombinací dochází k postupnému a nevratnému poškozování střepu, ztrátě soudržnosti zejména mezi maltou s obkladem a konstrukcí, a tím k vyčerpání životnosti obkladu a ztrátě jeho funkce jako celku.
-vis-
Foto: Vladimír KIVA Novotný a archiv autorů




