Dřevěné montované konstrukce, Zajímavá stavba

Smuteční síň v Broumově

Stavba nové síně v Broumově nahradila smuteční síň u hřbitova, kde stojí dřevěný kostelík Panny Marie, významná památka. Nachází se v části města, která si uchovala charakter původní zástavby, a síň se snaží ho svým architektonickým řešením ještě posílit. Dřevěnou konstrukci ateliér INS, spol. s r. o., a architekt Pavel Rydlo zvolili právě z tohoto důvodu, dalšími důvody byly statické výpočty a ekonomičnost samotné realizace. Interiér otevřený do krovu osvětluje okno ve střeše a velké okno vedle lavic, orientované ke skupině stromů.

Svou polohou i přístupovou cestou smuteční síň obnovuje osové uspořádání bývalého evangelického hřbitova, které stále připomíná hlavní vstup uprostřed stromořadí podél silnice. „Pozemek je rozdělen na dvě poloviny: první má formu zahrady, v druhé je umístěna obřadní síň. Přístupová cesta, shromažďovací prostor a samotná budova tvoří v zahradě kříž. Shromažďovací prostor je mezníkem mezi zahradou a provozní částí – pro podporu tohoto vjemu a jako symbolika přechodu přes řeku Styx tvoří jeho část deska z přírodního betonu s broušeným kartáčovaným povrchem,“ uvádí architekt Rydlo.

Shromažďovací prostor symbolizuje přechod přes řeku Styx. Jeho část tvoří deska z přírodního betonu s broušeným kartáčovaným povrchem.Pro smuteční síň autoři projektu zvolili tradiční formu s vysokou sedlovou střechou

Hlavou půdorysného kříže je budova síně. Prostor v jejím bezprostředním okolí, tedy od vstupu směrem k severní hranici, je provozní. Tato plocha je částečně dlážděná žulovými bloky, umožňujícími pojezd vozidel. Svah v severní části byl osázen keři hortenzií, které celý prostor uzavírají a tvoří kontrast s tmavou síní. Skupinka smrků a bříz západně od budovy zůstala zachována. Prostor síně od okolí oddělují stromy a znovuvystavěné zděné ploty. V ulici by měl být v další etapě upraven chodník přiléhající k zahradě, jeho povrch je navržen z žulových kostek. Stejné kostky jsou u vstupu do hřbitova a na cestě k síni, takže obě místa budou vizuálně propojena. Cesta dělí zahradu na dvě travnatá pole s okrasnými třešněmi, která jsou zároveň i lapidáriem starých náhrobků z okolních hřbitovů. Tři náhrobky u západní zdi zůstaly zachovány a budou doplněny dalšími pěti, v ploše trávníku budou umístěny obruby z pěti dalších starých hrobů. Zapustí se do úrovně terénu a v trávníku vytvoří rám. Kolem západní části travnaté plochy vede okružní cesta doplněná o lavičky.

U obřadu, kdy rakev zajíždí do zázemí, jsou lavice sraženy k sobě na osu. Když pozůstalí rakev vynášejí, rozdělí se po stranách. Na balkoně nad vstupem je místo pro hudebníky.Provozní část má plochou střechu, fasádou navazuje na hlavní objektInteriér síně je obložený modřínovým dřevem, otevřený do krovu. Prosvětlují ho dvě velká okna.

Provozní řešení
Síň má dvě části, prostor pro obřady a zázemí. Hlavní vstup je krytý z prostoru pod balkonem, druhou polovinu prostoru pod balkonem tvoří zákoutí s lavicí pro příbuzné v čase před obřadem. Typický tvar sedlové střechy se v hlavním prostoru otevírá do krovu, v čele je dřevěná stěna, před kterou stojí katafalk. Uprostřed síně jsou dřevěné lavice. U obřadu, kdy rakev zajíždí do zázemí, jsou sraženy k sobě na osu. Když pozůstalí rakev vynášejí, jsou lavice rozdělené po stranách. Na balkoně nad vstupem je místo pro hudebníky.
Zázemí se obsluhuje z průjezdu. Přístup a příjezd k síni je tedy z obou stran, ze soukromého i z veřejného pozemku. Část zázemí mezi síní a průjezdem slouží pro přípravu obřadů. Krytý hlavní vstup do síně a průjezd se uzavírají posuvnými dveřmi.

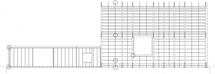
Fasáda a střecha jsou opláštěné falcovaným plechem z hliníku černé antracitové barvy, spojeným úhlovou drážkouNejvětší okno má rozměry 3000 x 3000 mm, je pevně zaskleno do rámu skrytého ve vnějším opláštěníZ průběhu stavby – dřevěná rámová konstrukceZ průběhu stavby – dřevěná rámová konstrukce

Dřevěné konstrukce a interiéry
Stavba byla realizována na železobetonové základové desce a základových pasech po obvodu, nosná konstrukce je ze smrkového dřeva. Obřadní síň má rámovou konstrukci z lepených nosníků, zázemí sloupkovou z hranolů. Konstrukci panelů tvoří dřevěné rámy z profilu KVH s opláštěním z OSB desek. Dřevěné prvky byly ošetřeny, aby se zamezilo vzniku plísní a napadení dřevokaznými houbami a hmyzem. Vnitřní příčky jsou ze sádrokartonu. Stavba byla opatřena tepelnou izolací v rámci konstrukčního systému mezi svislými a vodorovnými dřevěnými prvky.
Stěny, strop a balkon interiéru jsou obloženy palubkami z modřínu, z modřínu je také nábytek. Na podlaze je šedá epoxidová stěrka. Schodiště je celodřevěné, schodnice má z fošen z modřínu, zábradlí z nerez oceli. Kotveno je do nosné dřevěné konstrukce, ze spodní části bylo opláštěno sádrokartonovou protipožární deskou. Okna jsou dřevohliníková, z vnější strany má hliník antracitovou barvu, z vnitřní strany je modřínové dřevo. Největší okno má rozměry 3000×3000 mm. Je pevně zaskleno izolačním trojsklem do rámu skrytého ve vnějším opláštění. V horní části okna jsou elektrické screenovací rolety (z vnější strany černá, z vnitřní bílá). Střešní okna jsou celodřevěná, zasklená izolačním trojsklem, z vnější strany oplechovaná.
V zázemí jsou stěny a strop ze sádrokartonu světle šedé barvy, podlaha z polyuretanové stěrky. Okna a dveře jsou ze dřeva, barva světle šedá. Vnitřní dveře byly zvoleny převážně z vysokotlakého lamina ve světlé šedé barvě. Výjimkou jsou vstupní dveře, které byly vyrobeny z modřínového masivu, a dveře, z nichž vyjíždí rakev. Ty jsou z dřevěné spárovky mořené na černo. Vnější posuvná vrata z vnitřní strany tvoří palubky, z vnější strany mají opláštění z plechu.

Podélný pohled na rámovou konstrukciPohled na štít rámové konstrukce

Dvě střechy
Nad obřadní síní je sedlová střecha. Skladba z vnitřní strany: palubky na pero a drážku, dřevěný rošt, parozábrana s hliníkovou vložkou, OSB desky, tepelná izolace vložená do dřevěných paždíků, difuzně otevřená fólie, kontralatě, bednění, pojistná hydroizolace a plechové opláštění.
Nad zbylou částí objektu je plochá střecha. Její skladba z vnitřní strany: sádrokartonová deska s nosnými prvky, parozábrana s hliníkovou vložkou, dřevěný trámový strop s vloženou tepelnou izolací, OSB deska, tuhá deska z kamenné vlny, hydroizolační fólie s UV stabilizací a kačírek.

Betonový práh
Před smuteční síní tvoří část shromažďovací plochy pohledový beton o rozměrech 21×3 m a v tloušťce 150 mm. Uložen je na štěrkovém polštáři, jako pojivo byl do betonu použit bílý cement pro dosažení světlého odstínu. Betonový práh je vyztužen kari sítí, vrchní pohledové hrany byly zhotoveny pod úhlem 45 ° o délce 1,5 mm. Od smuteční síně je dilatován extrudovaným polystyrenem v tl. 20 mm.

Z průběhu stavby
Stěnové panely se ukládaly na patní, tlakově impregnované fošny. Jednotlivé panely jsou vzájemně a s patní fošnou propojeny vruty. Dále jsou mezi sebou propojeny případným přesahem opláštění dřevěného rámu. Sloupky panelů byly kotveny k základové desce pozinkovaným úhelníkem.
Na stěnové rámy byly osazeny věncové fošny. Stropy jsou z dřevěných stropnic, uložených na nosných stěnách spodního podlaží. Nosný střešní plášť byl realizován z celoplošného bednění z desek OSB. Pro spojení jednotlivých prvků byly použity tesařské spoje, doplněné ocelovými spojovacími prvky.
Hana Vinšová