Při návrhu jednopodlažní dřevostavby autoři pracovali s konceptem stužky, kterou ztvárnili bílou omítkou, vnitřní vrstva fasády má dřevěný obklad. Architektonický koncept doplňují posuvné stínicí okenice.
Dům se nachází na mírném severním svahu na kraji obce. Přichází se k němu po rampě, která navazuje na pavlač u severní fasády a také na západní a jižní terasu. „Při návrhu jsme pracovali s konceptem stužky, kterou jsme ztvárnili bílou omítkou, a vnitřní vrstvy s dřevěným obkladem. Dynamická stužka tvoří hmotu rampy, pavlače a obou teras. Stejný princip se opakuje i u parkovacího místa se skladem. Hmotu domu jsme vylehčili ustoupeným soklem, který kryje konstrukci základů. Architektura stavby je doplněna posuvnými stínicími lamelovými prvky. V létě zvyšují efektvitu odstranění slunečních zisků, zároveň vytvořily soukromí na západní terase,“ říká Rostislav Kubíček z ateliéru Vize.

Dům má dvoutraktovou dispozici – ze zádveří se vchází do hlavního obytného prostoru s kuchyní, jídelnou a obývacím pokojem. Má půdorysný tvar písmene L, takže kuchyň není od vstupu do místnosti přímo viditelná. Orientovaná je na sever a západ, má úzká okna mezi pracovní deskou a horními skřínkami. Obytný prostor se na západní a jižní terasu otevírá velkými okny.
V návaznosti na hlavní vstup se nacházejí dveře do soukromé části: z chodby je přístupná technická místnost (dostatečně velká i na domácí práce a sklad), koupelna, ložnice s šatnou a dva pokoje.





Konstrukce a materiály
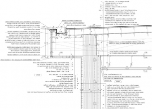
Masivní dřevěná panelová konstrukce domu je zateplená kontaktním izolačním systémem a provětrávanou fasádou. Základy jsou řešeny formou crowl space, výhodnou z hlediska výškového rozdílu mezi úrovní příjezdu a prvního nadzemního podlaží.
Pultová střecha má konstrukci z dřevěných vazníků. Přecházejí i do konstrukce jižního stínění (dimenzované bylo tak, aby odstínilo letní slunce a v zimě ho vpustilo do interiéru) a překrytí západní terasy. Pro maximalizaci pasivních solárních zisků je nejvíce prosklených ploch orientováno na jih. Ochrana před přehříváním domu je zajištěna přesahem střechy a exteriérovými posuvnými stínicími lamelovými prvky.
Okna jsou dřevohliníkova s vnější světle šedou barevnou úpravou. Základová konstrukce byla pohledově uzavřena soklem z cementotřískových obkladových desek.


Energeticky pasivní standard
Pro dosažení energeticky pasivního standardu bylo třeba pečlivě provést projekční práce, dodržet požadavky na navržené konstrukce, materiály, detaily a vzduchotěsnost. Objekt je zateplen s eliminací tepelných mostů (součinitel prostupu tepla konstrukcí je do 0,1 W / m2K), byl řešen vzduchotěsně s kvalitními okny s izolačními trojskly a s rekuperační jednotkou napojenou na systém řízení větrání.
|
Reálné spotřeby za rok 2021 |
VIZE Ateliér s.r.o.


