

Soběstačný dům – Green Power je stavba, která nepotřebuje ke svému provozu jiné energetické zdroje než ty vytvořené samotným domem. Použitá technická řešení samozřejmě počítají s obnovitelnými zdroji energie, integrovanými do konstrukce domu (fotovoltaické články, sluneční kolektory, tepelná čerpadla), která budou schopna téměř zcela pokrýt energetické požadavky na vytápění a obývání budovy. Na rozdíl od pasivních domů nebudou u tohoto objektu nijak využity vnější zdroje energie typu elektrická energie ze sítě nebo zařízení poháněná plynem, dřevem či topným olejem. Díky dokonalému odizolování, absenci tepelných mostů, získávání tepla rekuperací a maximálnímu využití získané tepelné energie se energetická potřeba Soběstačného domu pohybuje na velmi nízké úrovni. Soběstačný dům tak nepotřebuje doplňovat další energii z konvenčních zdrojů – a to ani pro ohřev, osvětlení nebo pro napájení domácí techniky.


Použité technologie
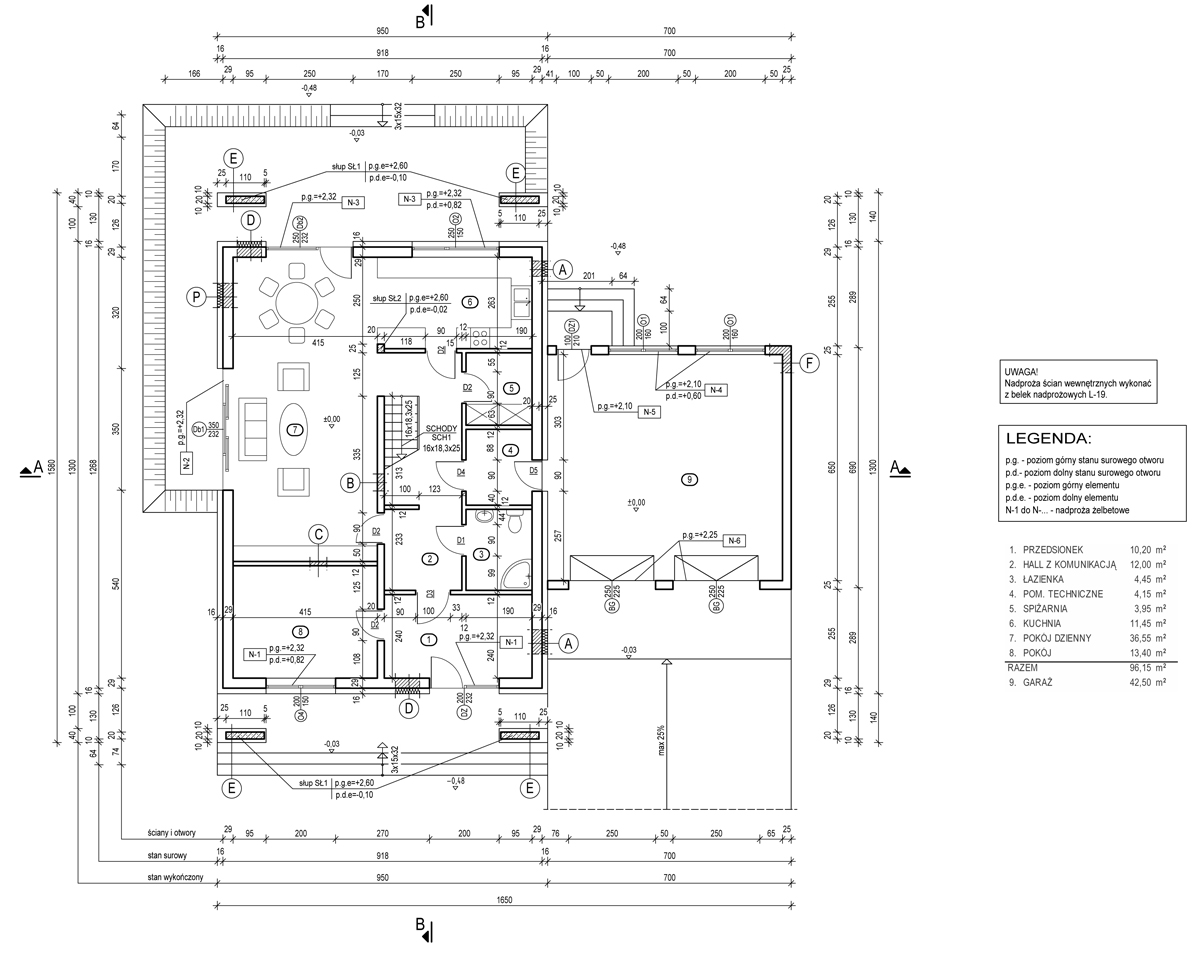
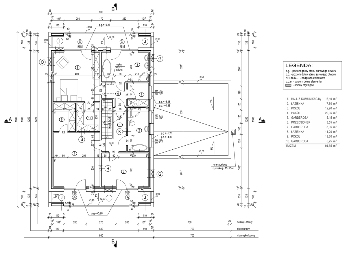
Při stavbě Soběstačného domu budou využita nejmodernější řešení, dostupná na polském trhu. Konstrukce domu bude zhotovená technologií lehké ocelové konstrukce Lindab Construline, která nabídne rychlou montáž, velmi dobré termické parametry budovy, vysoký komfort bydlení a také nižší náklady stavby a provozu domu. Jako vnější a vnitřní obklady stěn budou použity sádrovláknité desky FERMACELL a také cementové desky FERMACELL PowerPanel. Konstrukce desek zajišťuje jejich vysokou odolnost proti mechanickému zatížení a mimořádnou stabilitu. Díky tomu mohou systémy suché výstavby FERMACELL uspokojit vysoké nároky a vzdorovat i obtížným klimatickým podmínkám. Jako tepelná izolace pro Soběstačný dům byla vybrána minerální vlna Rockwool. Kromě uvedených firem se tohoto polského „zeleného“ projektu zúčastní firmy Rehau, DuPont, Samsung a další renomované značky – celkem více než 30 subjektů.
Další informace o projektu, použitých technologiích a všech účastnících akce jsou dostupné na internetových stránkách www.budynekzeroenergetyczny.com.pl a také www.domzeroenergetyczny.org.pl.
podle podkladů společnosti Fermacell




