Články, Stavitel, Zajímavá stavba

Rodinný dům LF

Hlavním cílem bylo vytvořit rodinný dům, který bude v souladu se zásadami nadčasovosti a dlouhodobé udržitelnosti a který do nově zastavované lokality vnese ducha jednadvacátého století. Nutno přiznat, že tento cíl se podařilo bezezbytku splnit.

Výstavba rodinných domů je specifickým segmentem stavebnictví především z pohledu architektonické tvorby. V této oblasti se výrazně projevuje vliv investora. Ten se obvykle podílí nejen na architektonickém řešení objektu, často se také vyjadřuje i k otázkám konstrukčním a technologickým. Svým způsobem je to logické: Za své peníze chce (ze svého pohledu) to nejlepší a je věcí ostatních účastníků výstavby, zda jsou schopni ho přesvědčit o správnosti svých názorů a stanovisek. Pokud se ale sejde „osvícený“ a poučený  investor s architektem, který dokáže flexibilně reagovat na jeho požadavky, a celý tým pak navíc doplní dodavatel stavby, jenž pracuje s vysokou erudicí, profesionalitou a zkušeností, musí se vliv těchto mimořádně příznivých faktorů na výsledném díle projevit. A ještě víc to platí v případě, kdy se takový téměř ideální pracovní tým nesetkává při návrhu a realizaci budovy poprvé. To vše se týká rodinného domu v pražských Nebušicích. 

ZÁKLADNÍ ÚDAJE O STAVBĚ

Název stavby: Rodinný dům „LF“
Místo: Praha 6-Nebušice, ulice K Hlásku
Autor projektu: Ing. arch. Stanislav Fiala
Architektonický atelier: Fiala + Nemec, s.r.o., Praha
Projektant: Fiala + Nemec, s.r.o., Praha, vedoucí projektant – Ing. Jiří Václavů
Dodavatel stavby: Hinton, a.s., Praha
Stavbyvedoucí: Ing. Martin Jirout
Zastavěná plocha: 178 m²
Obestavěný prostor: 1583 m³
Realizace: 03/2012 – 09/2013
Náklady: 20 milionů korun 

Dům v pražských Nebušicích je úsporný, má téměř minimalizovaný půdorys ve tvaru zkoseného obdélníku, směrem od ulice se zužujeFasádu tvoří předzvětraný titanzinkový plech se svislou vlnou

Konstrukce a otvorové výplně
Stavba se dvěma nadzemními a jedním podzemním podlažím je založena na železobetonových základových pásech, nosné stěny suterénu i veškeré stropní konstrukce jsou ze železobetonu, provedeného ve formě pohledového betonu. Ve stropech jsou zabudovány trubkové systémy, které slouží ke chlazení a vytápění objektu. Nosné stěnové konstrukce nadzemní části budovy jsou vyzděny z cihelných bloků Porotherm. Příčky v nadzemních podlažích jsou vyzděny z keramických tvarovek Porotherm, v suterénním podlaží jsou použity betonové tvárnice Betong. Vnitřní dělicí konstrukce v obytných částech jsou omítnuté a opatřené bílou výmalbou, eventuálně obkladem z bílého mramoru, zdivo z tvárnic Betong v suterénu chrání pouze bezprašný nátěr, stejně jako pohledové betony stropů a stěn. Podlahové konstrukce jsou vesměs charakteru těžkých plovoucích podlah se zabudovaným otopným systémem, nášlapnými vrstvami jsou bílý mramor, dřevěné masivní lamely nebo brazilská štípaná břidlice. 

Schodiště tvoří jednoramenné přímé železobetonové prefabrikované prvky, zábradlí v nadzemních podlažích je nahrazeno asymetricky kotvenou nerezovou sítí. Dveře v technickém zázemí jsou ocelové, v obytných podlažích byla použita čepová dřevěná nebo skleněná dveřní křídla. Skleněné dělicí konstrukce s grafickými fóliemi jsou užity i v koupelnách a skleněná příčka odděluje také kuchyni od obývacího pokoje.

Okna s izolačními trojskly mají černě eloxované hliníkové profily s přerušeným tepelným mostemSchodiště má v nadzemních podlažích místo zábradlí asymetricky kotvenou nerezovou síťKombinace materiálů: sklo, dubové dřevo, mramor a pohledový beton

V hlavním obytném prostoru je podlaha z bílého mramoru, stěny a stropy z pohledového betonu

Obvodové stěny domu jsou opatřeny vnější kontaktní tepelněizolační vrstvou z vláknitých izolačních desek, následuje provětrávaná vzduchová vrstva a předzvětraný titanzinkový plech se svislou vlnou, ukotvený na pozinkovaném nosném roštu. 

Jižní fasádu tvoří fotovoltaické panely, doplněné skleněnými deskami stejného odstínu. V suterénní části východní fasády je použita monolitická železobetonová předstěna, jejíž profilace, získaná vložením vlnitého plechu do bednění, plynule navazuje na profilaci opěrné železobetonové stěny terasy prvního nadzemního podlaží. 

Otvorové výplně jsou z černě eloxovaných hliníkových profilů s přerušeným tepelným mostem, zasklívací jednotku tvoří izolační trojsklo. Střešní plášť budovy je realizován jako klasická jednoplášťová skladba s tepelněizolační vrstvou ze stabilizovaného expandovaného polystyrenu a hydroizolační vrstvou ze dvou modifikovaných asfaltových pásů.

Venkovní bazén s osvětlením a plovoucí krycí hladinovou fólií (uloženou na dně bazénu) je z nerezového plechu, dvě jeho hrany jsou výškově slícovány s úrovní venkovní terasy, zhotovené z prken Accoya. Zbývající dvě hrany bazénu tvoří přelivný kanálek. Část terasy je kryta ocelovým přístřeškem, který je zastřešen fotovoltaickými panely. 

Pozemek je oplocen železobetonovými opěrnými stěnami z pohledového betonu. Doplněné jsou buď nerezovou sítí, nebo svislými dřevěnými prkny, kotvenými do ocelových rámů. Obdobnou konstrukci mají i elektricky ovládaná samonosná posuvná vrata a vchodová branka.

Minimalismus k pohodlnému užívání

Rodinných domů se u nás staví hodně. Tedy spíš domků a domečků, anebo naopak honosných vil. Přehlídka to z hlediska architektury nebývá vždy optimistická, jako by se někam vytratila radost z bydlení a touha mít svůj dům opravdu podle svých přání a potřeb. Jako bychom podlehli nějakému divnému pocitu, že dům musí být nějak uniformní, kdo zná jeden, zná jich většinu, všichni svou inspiraci okatě hledají ve špatně chápaném dědictví funkcionalismu, dnes hojně dotvořeném šikmou střechou… S rodinnými domy je v současné architektuře trochu potíž. Vynikajících staveb je prostě málo.

V soutěži o titul Stavba roku nebývá rodinný dům moc častý, ale většinou, když už se do ní přihlásí a postoupí do druhého kola, to stojí za to. I když – jsou určité oblasti, kde by člověk zajímavý, skutečně kvalitní architektonický kousek určený pro individuální bydlení nečekal. Ovšem výjimky potvrzují pravidlo, ostatně zrovna v Nebušicích už jednu stavbu porota před lety ocenila.

Dům LF je domem, který se svému okolí vymyká. Přitom docela ostentativně. Vytváří si své prostředí, od okolí, naplněného charakteristickými stavbami, jimž se obecně říká „podnikatelské baroko“, si udržuje odstup. Leží stranou od hlavních ulic, má podlouhlou parcelu, kolem které ještě zbývá pár volných, v dohledu je les. Což ovšem neznamená žádný odraz ve stavbě samé. Ona se vlastně k lesu obrací zády – nejen proto, že je na severu, ale i proto, že mezi tím jsou ještě nějaká stavení.

Dům je velmi úsporný, má téměř minimalizovaný půdorys ve tvaru zkoseného obdélníku, směrem od ulice se zužuje, aby pokud možno nejvíc místa nechal terase a zahradě. Plot, jenž ho odděluje od ulice, je neprůhlednou kombinací betonu a dřeva. Jako by evokoval ono proslulé „můj dům, můj hrad“. Tvoří zajímavou soudobou palisádu a jasně chrání soukromí toho, co je za tím. Tam se otevírá pergolou krytý a dostatečně velký parkovací prostor. Teprve z něj se skutečně vchází dovnitř. Vstup je dvojí – do částečně do země zasunutého prvního podlaží, kde je vše technické a skladové, co dům potřebuje, nebo na jednoramenné schodiště do další úrovně, jež přes terasu přiléhá k zahradě. Tady jsou společenské prostory, které působí spíš jako jeden prostor, z nějž se jen něco málo vyděluje. Ale tam, kde to jde, vydělení tvoří skleněná stěna, aby dojem rozlehlého prostoru zůstal. Sklo má na sobě bělostný rostlinný ornament a vytváří tak dojem prvku sice dělicího, a přece dovolujícího vnímat jeden prostor (se stejným efektem pracuje v koupelnách). 

Pohled z uliceSklo s bílým rostlinným ornamentem má funkci dělicího prvku, přesto dovoluje vnímat jeden prostor

Okna – okna nejsou, je plné prosklení od podlahy po strop a sklo přestupuje i přes nároží, byť tam přiznává spoj, ne však nějakou podpůrnou konstrukci. Obývací prostor sahá na celou šířku stavby, jeho stěny jsou z pohledového betonu a ze skla, podlaha je kamenná, nábytku je minimum, a přesto vše působí přívětivým obytným dojmem. Jedna ze stěn se částečně odsouvá a dovoluje vyjít na terasu či spíše na dřevěnou palubu, do níž je zapuštěn bazén a nad jejíž plochou je vztyčen baldachýn. Vše lemuje zeleň, od níž se očekává, že vytvoří příjemnou clonu nežádoucím pohledům (oběma směry, neboť okolí nenabízí příliš dobrý vkus).

A další schody vedou do posledního podlaží, jež je uzavřenější, soukromější. Dává to najevo i tím, že na podlaze místo chladně elegantního kamene je teplé dřevo. Hala se schodištěm se pozvolna zužuje, místnosti se z ní postupně dveřmi oddělují do svého hájemství. Jsou to dveře plné, bez prahů a s minimálním nadpražím, dveře jaksi přísné a skoro odrazující – sem nechoď, kdo nejsi pozván. Jednou z těchto místností je velká koupelna, i ona má plně prosklenou čelní stěnu, tak jako všechny ostatní, a z vany se dá hledět do nebe… Za schodištěm je jako by samostatně oddělená ložnice se šatnou a svou koupelnou, uzavřený svět. 

Ten dům je vlastně docela malý, on prostě větší být nepotřebuje. Neboť je to dům dokonale sebevědomý, dům pro sebevědomého obyvatele, který rád užívá pohodlí vlastního prostředí, aniž by ho zahlcoval – navenek i uvnitř – zbytečným balastem. Je to dům vlastně minimalistický a zároveň dávající velkolepé možnosti užívání. Je to dům naprosto ojedinělý. Dům jako dokonalé architektonické dílo.

Doc. Ing. arch. Radomíra Sedláková, CSc.

Dispoziční řešení
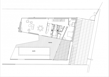
Vzhledem k tomu, že je dům ve svahu, nachází se hlavní vstup na úrovni suterénu, kde je situována vstupní hala, garáž, strojovna domovních technologií a rozsáhlé skladové prostory, které mohou být v případě potřeby přebudovány pro jakékoliv jiné účely. Podstatnou část prvního nadzemního podlaží zabírá hlavní obytný prostor, propojený s kuchyní, za níž je ještě hospodářská místnost. V tomto podlaží je i pokoj pro hosta se sociálním zázemím. Prostor prvního nadzemního podlaží je vizuálně propojen s okolním prostředím proskleným severozápadním rohem, který umožňuje výhledy do volné zeleně, a především jižně orientovanými okny na celou výšku podlaží, navazujícího na hlavní část zahrady s venkovním bazénem. 

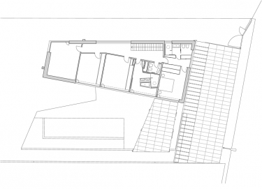
Ve druhém nadzemním podlaží jsou dvě ložnice s vlastními šatnami, bohatě dimenzovaným sociálním zázemím a dvě pracovny. Zatímco v prvním podlaží je charakteristickým prvkem zářivě bílá mramorová podlaha, tady je podlaha dubová. Doplňují ji dubové dveře a vestavěný nábytek, kontrastující s pohledovým betonem nosných konstrukcí.  Bílý mramor se v tomto podlaží vyskytuje v koupelnách, kde je užit v kombinaci s potištěným sklem. 

Půdorys 1. NPPůdorys 2. NP

Řez budovou

Technologické zázemí
Vytápění domu, příprava teplé vody, sezónní ohřev vody bazénu a pasivní chlazení prostřednictvím stropních konstrukcí je napojeno na tepelné čerpadlo, spojené se dvěma hloubkovými vrty a vestavěným elektrokotlem. V domě je instalován systém inteligentního řízení KNX, ovládaný z centrálního dotykového tabla, na který jsou napojeny světelné a zásuvkové obvody, žaluzie, stínicí roleta, bazénová technologie, EZS a domácí telefon.  

Fotovoltaické panely na jižní fasádě budovy a nad ocelovými přístřešky vytvářejí energetický zdroj, rozdělený na tři části: fasádní panely dodávají (s podporou zeleného bonusu) elektřinu do sítě,  druhá část zajišťuje energii pro technologie budovy a část třetí, propojená s tepelným akumulátorem, zařazeným za tepelné čerpadlo, přispívá k přípravě teplé vody a výrobě tepla.

Závlaha pozemku je realizována dešťovou vodou ze sběrné jímky,  případně vodou z vrtané studny, zřízené v blízkosti budovy.

FRANTIŠEK KULHÁNEK

Stavba rodinného domu „LF“ v Praze-Nebušicích získala za vytvoření ojedinělé stavby pro soudobé rodinné bydlení se zřetelem k výběru materiálů titul Stavba roku 2014.