Panelové domy, které u nás vznikaly od 50. do 80. let, tvoří podstatnou část bytového fondu. V poměrně široké míře dochází k jejich rekonstrukcím a revitalizacím, což je dáno nejen končící životností původních konstrukcí, ale zejména diametrálně odlišnými nároky na komfort a kvalitu bydlení a na parametry budov v současnosti. U některých úprav, zejména u těch, které provádějí jednotliví majitelé bytů, jsou podceňovány souvislosti týkající se konstrukce celé budovy. Na některá rizika upozorňuje tento článek.
První panelové soustavy typu G si kladly za cíl rychle pomoci vyřešit otázku bytové výstavby v poválečném období a o jejich životnosti se příliš nehovořilo – předpokládala se přibližně třicet let. V šedesátých letech byl rozvinut zejména systém T06B s osovou vzdáleností příčných stěn 3,6 m, ale také systém T08B s osovou vzdáleností stěn 6,0 m, užívaný zejména v Praze, středních a severních Čechách. V sedmdesátých letech byl celostátně rozvinut systém P1.11 s moduly 2,4, 3,0 a 4,2 m, soustavu T08B pak nahradila soustava VVÚ ETA se stejnými modulovými rozpony 6 m. Tehdy se již více hovořilo o životnosti panelových domů, v navrhování bylo uvažováno s životností sto let, za předpokladu provádění pravidelných údržbových prací podle druhu a významu jednotlivých konstrukčních částí.




Celostátně používané soustavy měly zpravidla obvodové pláště podle materiálových možností jednotlivých krajů – nebyly jednotné. Kromě celostátně používaných typových soustav byly vyvinuty také různé soustavy s krajskou platností; byly jich desítky. Charakteristickou záležitostí vývoje soustav byly pravidelné „racionalizace“ vynucované politickými tlaky, jednotlivé podniky pozemního stavitelství se předstihovaly v úsporách oceli, a tak došlo k tomu, že někde jsou stěnové dílce vyztuženy více, v jiných případech se ale již vlastně jedná o konstrukční prvky z prostého betonu, opatřené pouze transportní výztuží, která byla nutná pro jejich zvedání z forem v panelárnách a osazování do stavby jeřábovou technikou.
Po roce 1989 se v bytové výstavbě významně změnila situace. Docházelo k větší migraci obyvatel a k výměnám bytů. Ve větší míře se začaly objevovat požadavky na jejich úpravy, případně spojení dvou bytů do jednoho většího celku. To vedlo často k potřebám zásahů do nosných stěn, kdy bylo zapotřebí budovat dodatečné otvory. Současně byla na odborných školách omezena výuka navrhování panelových konstrukcí vzhledem k okolnosti, že výstavba se začala ubírat jinými směry s využíváním jiných stavebních technologií. Ve výuce na školách bylo do osnov zařazeno navrhování metodikou eurokódů, které má vyšší požadavky na vyztužování konstrukcí, neboť jsou nastavena konzervativnější pravidla zejména z hledisek zatížení.
ČKAIT pořádala v průběhu let 2012–2013 celkem 27 školicích seminářů s cílem obnovit zkušenosti s navrhováním stěnových soustav a byla vydána publikace [1] určená autorizovaným osobám, ale i stavebním úřadům a také bytovým družstvům. Publikace se zabývala zejména stěnovými systémy nosných prvků, v tomto příspěvku jsou uvedeny také doplňující poznatky i z oblasti stropů, obvodových plášťů i vlivy na nosné konstrukce od nenosných betonových příček.
Tuhost panelových stěnových systémů a zásahy do nosných stěn
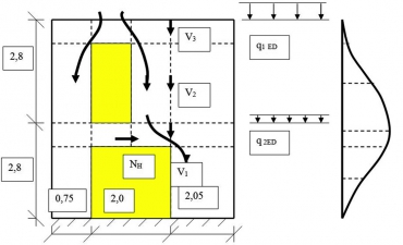
Panelové objekty jsou sestaveny ze stropních a stěnových panelů. Vytvořený kvádr musí mít dostatečnou tuhost ve směrech X, Y a Z, aby byla zajištěna mechanická odolnost a stabilita. V horizontální rovině stropních tabulí to znamenalo zajistit jejich spojitou tuhost v intenzitě 15 kN/m (ČSN 731211, zrušená k 31. 3. 2010) např. účinným svařením stropních desek v obou hlavních půdorysných směrech (X,Y). Podle Eurokódu 2 se vyžaduje dle kapitoly 9.10.2.3 ztužení minimálně 10 kN/m u krajních polí a 20 kN/m u polí vnitřních. Ztužení se může dělit na obvodové a vnitřní, část ztužení mohou zajišťovat obvodové věnce. Pokud není možné zajistit spojité ztužení stropních desek, lze využít soustředěných ztužení, obvykle v místech příčně nosných stěn. Síla přenášená do první vnitřní stěny pak bude F1 = (15 + 20)/2 · Lkrajní, síla přenášená do vnitřních stěn pak bude F2 = 20 · Lvnitřní. Tato ztužení vytvoří „náhradní příhradovinu“, která zajistí přenos zatížení vertikálním směrem dolů cestami naznačenými v obr. 1 tlustými šipkami. Ve svislém směru (Z) se pak vyžaduje svislé ztužení u domů s více než pěti podlažími, aby bylo omezeno riziko zřícení stropů.
Rizika budování otvorů v nosných stěnách
Stěny v bytových domech měly v původním návrhu otvory v pravidelných polohách po celé výšce objektu. Nekoordinované zásahy stěn mohou vytvářet řadu rizik znevýhodňujících jejich napjatost, může docházet k velmi komplikovanému toku zatížení a ztrátám mechanické odolnosti či stability celé stěny či její části. Velmi úzké pilíře u okrajů stěn mohou vytvářet rizika nedostatečně masivního kotvení obvodových stěn při mimořádných zatíženích, jako jsou např. výbuchy plynu, podemletí nároží vodním proudem, náraz těžkého vozidla do domu v blízkosti komunikace. Pozvaný statik zpravidla řeší pouze jeden otvor v jednom podlaží, jiný statik řeší jinou záležitost v jiném podlaží a vzájemně o sobě nevědí. Pasportizace nových otvorů ve stěně, případně v celém domu často není vůbec vedena.
Vyztužení stěn
Vyztužování panelů procházelo určitým vývojem a souviselo s vyvíjejícími se názory na statický model stěnových systémů, ale také souviselo s technologickými možnostmi jednotlivých montážních podniků a paneláren. Některé podniky unifikovaly vyztužení alespoň pro škálu výstavby čtyř a osmi podlaží, což byla nejčastější výšková úroveň sídlištních celků. V průběhu výstavby se prováděly v určitých obdobích tzv. racionalizace systémů, cílené zejména na snižování množství výztuže.

Rozdílnost stupně vyztužení jednotlivých částí stěn v obr. 5 vede k úvaze, jaký problém může dodatečné rozšíření otvoru vyvolat. U panelu z prostého betonu, který nemá v okolí téměř žádnou výztuž, nemusí jít o složitý problém, u panelu se silně vyztuženými pilířky a nadpražím může neuvážený zásah vyvolat úplné vyřazení výztuže z funkce. Proto při sekání drážek, např. pro nové elektrorozvody, je vhodné drážky orientovat vertikálně do masivních částí stěn, nikoliv do úzkých, silně vyztužených pilířků.
Zřízení nového otvoru, zejména většího než v ostatních podlažích, vyvolá výraznou změnu napjatosti zejména v dutých koutech pravoúhlých otvorů, viz obr. 6.




Praktické zřizování nebo rozšiřování otvorů přináší vzhledem k tenkým stěnám (140–200 mm) svízele s montážním podepřením. Metody obvyklé u zděných staveb nejsou vhodné k aplikaci u panelových budov, viz obr. 7.
Zabudovaný překlad svou relativně malou tuhostí nemůže být významně namáhán ohybem, protože tuhá panelová stěna nepřipustí větší svislou deformaci bez vzniku trhlin. Překlad má tedy spíše funkci táhla, ale nemá na okrajích dostatečnou kotevní délku.
Obr. 6 dokumentuje vhodnou úpravu ve vyšších podlažích s malým svislým zatížením u otvorů do šíře 1 m. Do předem připravených drážek se vloží helikální výztuž, překryje se vhodnou sanační hmotou a po jejím zatvrdnutí se vyřeže otvor, výztuž je již připravena k aktivaci.
Zásahy do stropních panelů
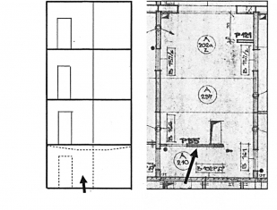
Panely jsou řešeny jako prosté nosníky, nosná výztuž je umístěna při spodním líci, zpravidla s krytím pouze 10 mm (pomocná kolmá rozdělovací výztuž dokonce jen 5 mm), zde je nutno být velmi opatrný při zřizování drážek pro novou elektroinstalaci. Výztuž nesmí být přerušována, doporučuje se elektrorozvody vkládat do spár mezi panely. Stropní panely jsou zatěžovány nově zřizovanými vyzdívanými bytovými jádry. Přitom se mnohdy mění i podlahy a často nekvalifikovaní pracovníci opomíjejí otázky zvukových izolací a kročejového útlumu. Stavební úřady s tím mívají potíže, protože k rekonstrukcím bytových jader zpravidla nebývá předkládána žádná dokumentace. Značným problémem přitížení stropních panelů může být bourání betonových příček v blízkém okolí bytových jader (viz obr. 9). Bytové jádro bylo rekonstruováno v nejnižším podlaží. Příčka P55 byla vybourána, došlo k přenosu zatížení příček vyšších podlaží a stropní panel vykázal zvýšený průhyb, jehož následkem byly poruchy v nejblíže vyšším podlaží. Příčka se nemohla svojí tuhostí „vyvěsit“ do obou příčně nosných stěn, neprobíhala přes celou místnost. Po zvýšení průhybu došlo k redistribuci napětí do příčných stěn a situace se zklidnila. V nejblíže vyšším podlaží ale bylo nutné přestavět bytové jádro. Pokud by příčka probíhala přes celou místnost, „vyvěsila“ by se do příčně nosných stěn, ale problém by úplně nevymizel.
Významnou okolností je otázka vyplnění vodorovné spáry pod spodním lícem stropu, pokud je tvořena betonovou jemnozrnnou směsí. Tíha příček se spojitě přenáší postupně dolů až na nejnižší stropní panel nebo nejnižší příčku. Pokud je vyplněna pružnou hmotou, s vysokou pravděpodobností se zatížení příčkami přenáší v každém podlaží do stěn. Z uvedeného je zřejmé, že je téměř nemožné v právním předpise beze zbytku popsat vztah nosných a nenosných konstrukcí v panelovém domě slovním výkladem.
Zásahy do obvodových panelů
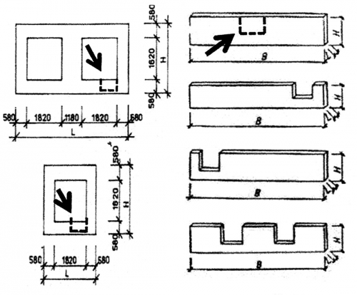
Obvodové panely bývají nosné, samonosné nebo nenosné. Nosné jsou většinou u štítových stěn, u průčelních stěn bývají panely samonosné nebo nenosné. V posledních přibližně patnácti letech se hojně u malorozponových, ale zčásti i středněrozponových soustav zřizují představené lodžie a bývá zapotřebí na ně zřídit vstupy z vnitřních prostor domů. U celostěnových obvodových panelů to v parapetech, kde se otvory zřizují, nevytváří komplikace, když se ponechá alespoň 100–150 mm vysoký nosník u paty panelu, kde bývá umístěna lemovací výztuž. U parapetních panelů, které vynášejí okenní vložky a okna, tedy u skládaných konstrukcí po výšce podlaží, mívá panel nosnou funkci jako prostý nosník a vytvoření otvoru může být značný problém. Tyto panely mívaly vstupy již v rámci výrobku z Prefy v definovaných polohách, viz obr. 10.

Obvodové pláště také může z hlediska statiky a degradace spár negativně ovlivňovat vegetace, jinak vítaná. Na obr. 11–14 je ukázka štítové stěny panelového domu T06B, porostlá do poloviny výšky břečťanem popínavým. Jeho šlahouny agresivně vyplňují stěny a zejména zaplňují spáry mezi panely. To pak může být příčinou snížení mechanické odolnosti spár, ale také vnikání vlhkosti do vnitřních prostor bytů přes degradované vodorovné spáry.





Panelové objekty jsou a v blízké budoucnosti určitě zůstanou významnou součástí bytového fondu. Při jejich úpravách je třeba pečlivě zvažovat, jaký vliv tyto úpravy budou mít na statiku objektu. I při lokálních zásazích je nutné posuzovat objekt jako celek, aby nedošlo k nežádoucímu poškození jiných částí domu, nebo dokonce k ohrožení jeho statiky.
JAROMÍR VRBA
foto archiv autora
Literatura:
1) WITZANY J., J. Vrba, V. Honzík. Otvory v panelových domech. ČKAIT, 2014.
Ing. Jaromír Vrba, CSc., (*1944)
absolvoval stavební fakultu VUT Brno v r. 1969. Do roku 2005 pracoval ve Stavoprojektu Olomouc. Od konce roku 2005 má vlastní statickou kancelář. Profesně se zabývá řadu let konstrukčními systémy budov a jejich zakládáním. Je autorizovaným inženýrem pro statiku a dynamiku staveb a také pro pozemní stavby. V ČKAIT pracoval 16 let v dozorčí radě, v oborech statika stavebních konstrukcí a poruchy a rekonstrukce staveb je soudním znalcem.


Nejnovější komentáře