V Heršpicích nedaleko Brna se dokončuje novostavba rodinného domu v pasivním standardu, základem jeho nosné konstrukce jsou pórobetonové tvárnice Ytong. Dům je založen na termicky aktivované betonové desce. Stavba díky svým parametrům získala maximální možnou dotaci v programu Nová Zelená úsporám, aniž by její konstrukční řešení bylo zbytečně komplikované a přehnaně náročné na technologické a řemeslné zpracování.
Popis objektu
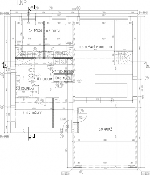
Dům má půdorysné rozměry 13,75×16,4 m (vč. vystupující garáže) a dispozici 5 + kk. Jde o jednu bytovou jednotku pro čtyřčlennou rodinu, jíž by měl poskytnout nadstandardní komfort a zbude i místo pro hosty. Dům má dvě podlaží, to druhé je podkrovní prostor. U „mezonetových“ dětských pokojů jde o klidovou zónu pro spaní a odpočinek, vestavěné patro v otevřeném prostoru jídelny s kuchyní vytváří prostor pro pracovnu, případně domácí fitness. Rozměry a objemy stavby jsou v tabulce.

Při plánování stavby se braly v potaz nejen investiční náklady, ale i náklady provozní. Předpokládaná potřeba energie podle projektu vychází na 12 kW/m² a rok, očekávané finanční náklady na energie ročně jsou 25 tis. Kč.
Investor na rozdíl od většiny současných stavebníků zvažoval i kvalitu vnitřního prostředí, vysokého obsahu CO2 v utěsněných prostorách, problémy s vlhkostí a s tím spojené nebezpečí bujení plísní a rozhodl se pro řízené větrání s rekuperací a filtrací, centrální vysavač a povrchy ploch nenáročné na údržbu.




Těmto požadavkům odpovídal výběr architekta a projektanta a následně i materiálu pro hrubou stavbu. Autory projektu byli Ing. arch. Vilém Čech a Ing. Petr Mareček. Výsledkem spolupráce je optimálně navržený dům, který dosáhl v rámci programu Nová Zelená úsporám na státní dotaci v celkové výši 485 000 Kč.
Při volbě materiálu se přihlíželo i k tomu, že investor chtěl část stavby provádět svépomocí s přáteli a příbuznými. V praxi se ukázalo, že jeho „svépomocní“ stavebníci jsou řemeslně zruční, jsou schopni naslouchat projektantovi a hlavně jsou pečliví.
Tabulka: Rozměry budovy
|
Půdorysné rozměry |
13,75×16,4 m (vč. vystupující garáže) |
|
Užitná plocha |
183,22 m², garáž 39,06 m² |
|
Zastavěná plocha |
194,32 m² |
|
Obestavěný prostor |
895,6 m3 |
|
Budova bez garáže |
718,00 m3 |
Založení a nosné konstrukce
Budova je založena na vrstvě pěnového skla o mocnosti 500 mm. Na ní je navržena železobetonová deska tloušťky 250 mm, jejíž jádro je termicky aktivováno. Před betonáží bylo nutno uložit veškeré rozvody vody, odpadů, elektro, sání a vyústění VZT, vedení kolektoru tepelného čerpadla a trubní vedení otopného systému. Deska je vyztužena armovací sítí 100x100x8 mm při obou površích. Rozvody podlahového vytápění jsou umístěny u dolního líce desky, což zajišťuje rovnoměrnější teplotu horního povrchu.






Díky termické aktivaci je základová deska zároveň vrstvou pod finální podlahovou krytinu v interiéru. Ušetří se tak materiály dalších vrstev. Zpracování desky s rozvody je sice o poznání pracnější a je třeba pečlivější plánování stavby a umístění všech prostupů a také je nutné pohlídat kvalitu horního líce desky, vzhledem k tomu, že jde o finální vrstvu, ale v praxi to nebyl zásadní problém. Výsledkem je maximálně jednoduchá a tedy spolehlivá konstrukce.
Hotová základová deska má leštěný povrch s velmi nízkou odchylkou od roviny. Pokládka finální krytiny se provádí po drobných lokálních opravách přímo na tento povrch. Klasická konstrukce podlahy je tedy v 1. NP vynechána, přímo na leštěném povrchu základové desky je položena dřevovláknitá kročejová izolace a vinylová podlaha. Ve 2. NP je položen parket z lamina s integrovanou kročejovou izolací.
Založení zdiva se provádí s vyložením 200 mm za svislou hranu základové desky tak, aby bylo možno později kvalitně tepelně izolovat svislou hranu okraje desky. Aby byl dodržen předpis výrobce o přípustné délce vyložení 125 mm, byl do okraje desky před betonáží vložen ocelový válcovaný profil L 80x80x4 mm. Tento detail se ověřoval tepelnětechnickými výpočty při projektu.
Obvodové nosné zdivo je navrženo z materiálu Ytong Theta 1,8 – 300 v tl. 0,500 m jako jednovrstvé zdivo bez zateplení, tedy opět maximálně jednoduchá konstrukce. Štítová stěna má hodnotu U = 0,16 W/m²K, veškeré prvky (nadokenní překlady) jsou voleny tak, aby jejich hodnota U byla minimálně stejná.
Vnitřní nosné zdivo je z materiálů Ytong P2 – 500 tloušťky 250 mm, příčky pak z materiálu Ytong P4 – 500 tl. 100 mm a Silka S 20 – 2000 tloušťky 100 mm. Použití prvků Silka bylo dáno akustickými požadavky.
Konstrukci stropu nad 1. NP tvoří systémový strop Ytong Ekonom tl. 250 mm. Do tohoto stropu – do míst nosných trámků a do prostoru nad sníženými stropními vložkami – byly zabudovány rozvody vzduchotechniky, elektro a cenrálního vysavače. Ty nikde nevyčnívají nad úroveň horního líce stropu a není nutná žádná nadbetonávka. Toto elegantní řešení sice opět vyžaduje pečlivější plánování a přípravu, ale výsledkem je úspora materiálu a jednoduchost konstrukce.
Vnitřní omítky jsou sádrové tenkovrstvé. Výplně otvorů jsou navrženy dřevohliníkové s trojitým zasklením. Vnější tepelná omítka je navržena v tl. 30 mm.
Konstrukce střechy
Konstrukci střechy tvoří střešní systém Ytong Komfort tl. 0,20 m, zateplený grafitovou EPS deskou tl. 300 mm. Montáž vložkové střechy se provádí ručně, zpravidla ji zvládnou dva pracovníci. Nejdelší trámce váží 95 kg. Jednotlivá vložka „unese“ 720 kg, a je tedy bez problémů pochozí.
Hlavní část střechy se betonovala v prvním kroku. Střecha nad garáží je v části navazující na dům sedlová a zčásti je vodorovná. Termicky je od hmoty domu zcela oddělena. Je opatřena nižší vrstvou izolace, což vyžaduje jinou výškovou úroveň. Na závitové tyče, vložené do železobetonových žeber stropu s přesnou distancí 1000 mm se „na sucho“ položily desky tepelné izolace. Následovala pojistná hydroizolace, která se později připevila předvrtanými kontralatěmi 60×60 mm.
Střešní krytina je zvolena tvrdá, betonová – Tegalit.
TZB
Vytápění řeší zmíněný systém termické aktivace betonové základové desky, zdrojem je tepelné čerpadlo země–voda o výkonu 3 kW, doplněné tepelnou spirálou pro nárazové spotřeby. Větrání je řízené rovnotlaké s protiproudovou rekuperací v hvězdicovém systému.
Výstavba domu začala v květnu 2015 a dokončení se předpokládá v brzké době. Investiční náklady stavby s garáží se pohybují kolem 4,5 mil. Kč, což po rozpočítání na plochu vychází na 22 100 Kč/m² (bez graráže). Dům získal dotaci 485 000 Kč a po jejím započtení se dostaneme na částku 19 650 Kč/m² (bez graráže).
Cest, jak se dobrat k pasivnímu domu, je v dnešní době spousta. Tento projekt názorně ukazuje, že požadovaných parametrů lze díky současným stavebním materiálům dosáhnout i při využití jednoduchého jednovrstvého zdiva a nikterak sofistikovaných technologií.
PETR MAREČEK, ONDŘEJ MIKA
foto Petr Mareček
Ing. Petr Mareček (*1957)
působí jako technický poradce společnosti Xella CZ. Věnuje se i vlastní projekční praxi se zaměřením na nízkoenergetické a pasivní objekty.
Ondřej Mika (*1975)
e redaktorem Materiál pro stavbu.




