V roce 2014 byla provedena rekonstrukce kapacitně nedostačujícího areálu základní školy v Zelenči. Rekonstrukce spočívala v rozšíření o novou budovu pro žáky 2. stupně, ve které se nachází devět učeben, a o novou tělocvičnu, na jejíž střešní konstrukci se tento příspěvek zaměřuje. Celou stavební zakázku vedla firma VW Wachal, a. s.
Objekt nové tělocvičny je částečně zapuštěný v upraveném okolním terénu a je zastřešen válcovou střechou. Svislou konstrukci tělocvičny tvoří železobetonové sloupy o rozměrech 400×600 mm, Z hlediska konstrukce jsou svislé části mezi sloupy doplněny o železobetonovou stěnu do výšky upraveného terénu a následně cihelnou vyzdívku z keramických tvárnic do úrovně střechy. Tělocvična má obdélníkový půdorys o rozměrech 33,85×21,98 m.
Popis konstrukce
Nosnou konstrukci střechy tvoří obloukové vazníky z lepeného lamelového dřeva Gl28h na rozpon cca 21,5 m se vzepětím 2,30 m v osových vzdálenostech 3,806 mm. Poloměr spodní strany vazníku je 25,819 m. V nosné konstrukci jsou obloukové vazníky zastoupeny dvěma dimenzemi, a to v poli (bez vnitřních podpor) 160/560 mm a ve štítu 160/400 mm (s vnitřními podporami). Obloukové vazníky jsou uloženy na svislých betonových monolitických sloupech. Vazníky jsou ke sloupům kotveny pomocí ocelových plechů tvaru L spojených se sloupy chemickými kotvami. Plechy byly instalovány až na stojící sloupy.

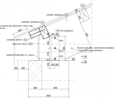
Součástí vazníků jsou vodorovné prvky táhel, doplněných o svislé závěsy, které nemají statickou funkci, ale jen eliminují průhyb vodorovných táhel (obr. 1).
Kolmo na obloukové vazníky jsou uloženy vaznice z řeziva C22 o dimenzích 100/180 mm na rozpon 3,4, resp. 4,0 m, dle osových vzdáleností obloukových vazníků. Vaznice jsou rozmístěny po délce vazníku v osových vzdálenostech 1,25 m. Výškově jsou o 20 mm výše než je horní hrana obloukového vazníku. U štítu jsou vaznice uloženy na obloukovém vazníku a lícují s vnější stranou stěny. Nosná konstrukce střechy je doplněna celoplošným záklopem z OSB desek tloušťky 22 mm.
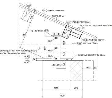
Ve třech polích je konstrukce vyztužena prvky zavětrování. Jako zavětrování je použito táhlo o průměru 25 mm z oceli S355. Konstrukce táhla je doplněna o svislé závěsy průměru 16 mm z oceli S235.
Schematické řezy v krajním poli s pilíři a ve standardním řezu v poli bez vnitřních podpor jsou zobrazeny na obrázku 1.
Dřevěná konstrukce byla navržena pro třídu provozu 1 dle ČSN EN 1995-1-1. Třída provozu 1, resp. 2, je charakterizována vlhkostí materiálu odpovídající teplotě 20 °C a relativní vlhkosti okolního vzduchu přesahující 65 %, resp. 80 % pouze po několik týdnů v roce, a vlhkost dřeva většiny jehličnatých dřevin nepřesahuje v tomto prostředí 12, resp. 20 %. Základní konstrukce vazníku byla ošetřena kombinací impregnace a lazury v barevném odstínu dle výběru architekta a investora s ohledem na finální vzhled přiznané konstrukce. Z interiéru neviditelné (zakryté) prvky vaznic byly ošetřeny klasickým nátěrem proti biotickým škůdcům. Návrh konstrukce plně respektoval Eurokód 5 (Navrhování dřevěných konstrukcí), celou normovou řadu a Eurokód 1 (Zatížení stavebních konstrukcí).





Postup realizace
Lepené vazníkové prvky byly vyrobeny v Rakousku a na stavbu byly dopraveny jako nadměrný náklad. Vaznice i ocelové prvky a spojovací materiál vyrobili čeští dodavatelé.
Před počátkem montáže bylo provedeno přesné zaměření budoucí polohy vazníkových konstrukcí. Mezitím byla na montážní ploše vedle objektu tělocvičny smontována sestava dřevěného vazníku a vodorovných ocelových táhel. Detail táhel je na obr. 5.
Nejdříve byly smontovány prvky u zavětrovacího pole. K úložným plochám vazníku byly montážně vrutem uchyceny dubové podložky tloušťky 30 mm. Detail uložení vazníkové konstrukce je na obr. 4.






Zavětrování konstrukce bylo provedeno pomocí ocelových táhel, která byla po délce konstrukce pravidelně rozmístěna, tak aby byla výrobně co možná nejjednodušší a jednotná. Detail charakteristického pole je na obr. 3. Jednotlivé prvky vazníku byly montovány s pomocí mobilního jeřábu v kombinaci s halovou montážní plošinou v prostoru tělocvičny.
Montáž střešní konstrukce proběhla na přelomu listopadu a prosince roku 2013. Zahrnovala montáž plnostěnných vazníků včetně zavětrování a celoplošný záklop z OSB desek tl. 22 mm a trvala necelé tři týdny. Tělocvična byla předána do užívání spolu s dostavbou celé školy a navazujících objektů, na začátku roku 2014.
MARTIN WÜNSCHE
foto archiv autora
Ing. Martin Wünsche (*1984)
vystudoval Vysokou školu báňskou – Technickou univerzitu v Ostravě, Fakultu stavební. V současné době pracuje jako projektant pozemních staveb v projekční kanceláři Karlínblok, s. r. o.


