V máji 2014 prebehli v Bratislave v rámci programu Woodbox & Wodddays 2014 viaceré podujatia, na ktorých sa organizátori snažili poukázať na výhody dreva ako stavebného materiálu v nosných i nenosných konštrukciách. Slovensko ako krajina s nespornou výhodou dostatku domácej dorastajúcej suroviny sa týmito podujatiami zapojilo do stále rastúcich európskych a svetových trendov efektívnejšieho využívania obnoviteľných surovín.
Výhody dreva ako stavebného materiálu všeobecne a tiež ako stavebného materiálu nosných konštrukcií stavieb sú nesporné a boli prezentované v Materiáloch pro stavbu vo viacerých príspevkoch aj mnohými inými autormi.
Na Slovensku je síce pomer stavieb s drevenou nosnou konštrukciu nižší než v Českej republike, avšak percento stavieb pomaly narastá. Je potešiteľné, že sa nejedná už iba o rodinné domy. Pribudli krásne športové areály, obchodné objekty, reštaurácie a priemyselné stavby.
V lete tohto roku pribudla prvá škola, postavená z dreva. Prístavba 1. Súkromného gymnázia na Bajkalskej ulici v Bratislave je prvou stavbou na Slovensku, ktorá má celú nosnú konštrukciu z masívneho dreva. Dvojpodlažný objekt s úžitkovou plochou 520 m² je jedinečný nielen z hľadiska použitého materiálu a účelu, ale najmä z pohľadu rýchlosti výstavby. Od vykopania základov po kolaudáciu stavby uplynulo iba 70 dní…
Architektúra
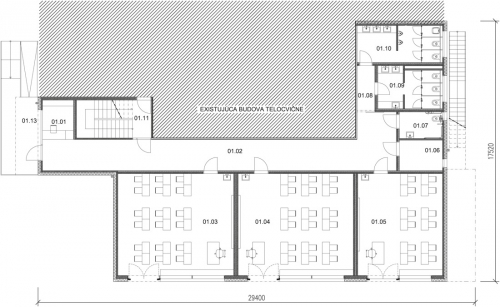
Projekt architektúry bol vypracovaný ateliérom Raum3, s. r. o., pod vedením architekta Ing. arch. Marcela Dzurillu. Areál školy tvorí dnes hlavný objekt z Bajkalskej ulice, jedáleň a dom školníka orientovaný pozdĺž ulice Priekopy a objekt telocvične. Objekt je umiestnený na spevnenej ploche školského dvora. Prístavba má jednoduchý tvar s plochou strechou. Fasáda je navrhnutá s použitím minerálnej vlny a tenkovrstvovej omietky. Objekt má slúžiť hlavne na poobedné aktivity pre prvý stupeň základnej školy. Do objektu sa vstupuje priamo zo školského dvora alebo z chodby vedúcej z telocvične. Pri tomto uzle je navrhnuté vertikálne komunikačné jadro – schodisko. Na prvom podlaží sú navrhnuté tri triedy, technické a hygienické zázemie pre toto podlažie. Na druhom podlaží sa nachádzajú ďalšie tri triedy, kabinet a hygienické zázemie pre toto podlažie. Triedy majú rovnaké rozmery 7×7,8 m s výnimkou jednej na prízemí, ktorá je o 2 m menšia z dôvodu požiarnej únikovej cesty. Všetky triedy sú orientované na juhozápad, čím sú zaistené tepelné zisky zo slnka v zimnom období. Prehrievaniu v jarnom a letnom období budú brániť vonkajšie žalúzie na fasáde.


Nosná konštrukcia
Autori článku boli projektantmi nosnej konštrukcie objektu a najmä v začiatkoch montáže pravidelne konzultovali na stavbe. Potvrdila sa tak výhoda autorského dozoru a montážne práce boli plynulé.
Objekt má stenový nosný systém pozostávajúci z panelov z krížom lepeného dreva. Hlavnou myšlienkou pri tvorbe nosného systému bolo vyhnúť sa priťaženiu základov existujúcej telocvične. Bol zvolený pozdĺžny stenový nosný systém, pri ktorom sa stropné konštrukcie opierajú do stien, ktoré nie sú v bezprostrednej blízkosti existujúceho objektu. Stropná konštrukcia je vykonzolovaná k budove telocvične.


Objekt je založený na základových pásoch.
Nosná konštrukcia bola v prvom kroku navrhovaná z muriva. Krátko pred začatím stavby sa zmenila koncepcia na drevenú konštrukciu z prefabrikovaných prvkov z krížom lepeného dreva a lepeného lamelového dreva. Dôvodom bol čas výstavby. Projekčné práce na nosnej konštrukcii začali v máji 2015 a objekt bolo potrebné odovzdať do prevádzky v septembri toho istého roku.
Prístavba školy sa realizovala v priestoroch školského dvora, kde bol zložitý prístup pre nákladné vozidlá zabezpečujúce transport prefabrikátov z výrobne a žeriav pre manipuláciu. Vzhľadom na požadovanú svetlú výšku tried mali byť stenové prvky vysoké 3,36 m na prízemí a 3,2 m na poschodí. Z dôvodu dopravných možností museli byť panely rozdelené na menšie časti s maximálnymi rozmermi 2,4×3,6 m.
Navrhnuté boli 5-vrstvové panely s hrúbkou 100 mm. Pozdĺžny panel, ktorý podopiera stropnú konštrukciu zo 6 m zaťažovacej šírky, má hrúbku 120 mm. Steny, ktoré oddeľujú jednotlivé triedy, boli z dôvodu akustických požiadaviek zdvojené.




Väčšina panelov bola navrhnutá s pohľadovou kvalitou. Priznané panely sú v triedach a komunikačných priestoroch. Rozmery priznaných drevených nosných prvkov boli navrhnuté na požiarne zaťaženie s trvaním 30 minút.
Čelná stena a stena pri hlavnom vchode majú rámovú konštrukciu zo stĺpov a priečlí z lepeného lamelového dreva s hrúbkou 200 mm, ktoré podopiera stropnú konštrukciu s rozpätím 7 m. Nachádza sa tu šesť veľkých okien so šírkou 6 m. Pre elimináciu veľkých priehybov bolo potrebné zakomponovať podpery nadokenných prekladov do polí okien. Stĺpy sú úzke, aby nebránili otváraniu okien, sú preto navrhnuté z oceľových rúrok s obdĺžnikovým prierezom. Oceľové stĺpy boli opatrené protipožiarnym náterom.




Stropná konštrukcia s rozpätím 7 m je navrhnutá z lepeného lamelového dreva. Prefabrikáty majú výšku 260 mm a šírku 625 mm. Najdlhší stropný element má dĺžku 10 m. Hrúbka stropu súvisí s požiadavkami medzného stavu používateľnosti, hlavne kmitania stropnej konštrukcie.
Strešná konštrukcia nebude vystavená dynamickým účinkom, preto mohla byť jej hrúbka o 60 mm menšia, teda 200 mm. Stropné a strešné prefabrikované prvky boli orientované priečne. Elementy sa navzájom spájajú na pero a drážku.
Vykonzolovaná časť poschodia pri únikovom schodisku je podopretá lepenými lamelovými prievlakmi a šikmými stĺpmi v tvare písmena V. Stĺpy sa opierajú do oceľovej papuče, ktorá je pripojená na základovú pätku pomocou mechanických kotiev. Horizontálne sily od šikmých stĺpov sú prenášané do priečle pomocou kovových prípravkov zapustených do priečle. V tejto časti boli stropné prvky orientované v pozdĺžnom smere, teda v smere vyloženia poschodia.
Prípoje
Vzhľadom na nutnosť rozdelenia stien na menšie časti bolo potrebné navrhnúť vzájomné prepojenie panelov tak, aby spojovacie prostriedky zostali z pohľadových strán neviditeľné. Prípoj v tvare písmena Z bol realizovaný použitím skrutiek do dreva z nepohľadovej strany panelov.
Stenové panely treba vo všeobecnosti kotviť na účinky šmykových aj ťahových síl, ktoré sú spôsobené excentrickým pôsobením horizontálnych síl. V prípade jedného tuhého stenového panela sa kotvy namáhané na ťah umiestňujú k okrajom a kotvy preberajúce šmyk do poľa. Kotvenie na účinky ťahových síl je zabezpečené troma typmi uholníkov, pričom o použití konkrétneho typu rozhodovala veľkosť namáhania.


K panelom sú uholníky kotvené klincami. Ťahové kotvy sú do betónu vlepené dvojzložkovým lepidlom. Každý element musí mať minimálne jedno ťahové kotvenie na obidvoch okrajoch. Krajné a krátke steny majú aj kombinácie uvedených uholníkov.
Šmykové kotvenie je zabezpečené uholníkmi, ktoré sú k panelom pripojené skrutkami, určenými na pripojenie kovových plechov k drevu. Do betónu sú kotvené mechanickými rozpernými kotvami. Vzájomná vzdialenosť šmykových kotiev sa pohybuje okolo 400–500 mm.
V prípade stien poschodia je ťahové kotvenie zabezpečené skupinou celozávitových skrutiek do dreva pri okraji každého elementu. V mieste, kde aplikácia skrutiek nebola možná (pri existujúcej stavbe), je ťahové kotvenie zabezpečené uholníkmi, pričom k panelu sa pripájajú pomocou klincov a k stropnej doske s použitím skrutiek do dreva. Šmykové kotvenie je zabezpečené rovnako uholníkmi s použitím klincov.
Steny prízemia a poschodia sú prepojené oceľovými pásovinami pripojenými pomocou klincov k vonkajšiemu povrchu panelov.
Schodiská
Objekt školy má dve schodiská, jedno hlavné interiérové a jedno vonkajšie únikové. Vnútorné schodisko je tvorené dvoma schodiskovými ramenami a jednou medzipodestou. Medzipodesta je podopieraná dvoma lepenými lamelovými prvkami s rozmermi prierezov 160×300 mm. Na podestové nosníky je položená podestová doska hrúbky 100 mm. Nosnú konštrukciu schodiskových ramien tvoria schodnice z lepeného lamelového dreva s prierezom 140×200 mm. Tie sú pripájané k podestovému nosníku a k stropnému prvku prostredníctvom hliníkových T-profilov, skrutkovaných na podestový a stropný nosník a ku schodnici pripojený pomocou samorezných kolíkov.
Vonkajšie únikové schodisko je oceľové, priame, s jednou medzipodestou. Schodisko sa nachádza v takej časti objektu, kde nebol prístup zdvíhacej techniky. Konštrukciu schodiska bolo potrebné navrhnúť tak, aby ju bolo možné montovať bez použitia žeriavu.
Stavebné práce sa rozbehli koncom júna 2015. Základové konštrukcie a betónová podkladová doska bola dokončená v priebehu jedného mesiaca. Montáž drevenej konštrukcie bola zahájená na začiatku júla 2015. Prefabrikáty boli dopravené priebežne piatimi kamiónmi. Na celú stavbu bolo použitých asi 224 m³ dreva (80 m³ krížom lepeného dreva, 130 m³ fošňových stropných prvkov typu Profideck a 14 m³ lepeného lamelového dreva). Nosná konštrukcia bola hotová za 4 týždne a mohli nastúpiť profesie technických zariadení, tepelných izolácií, hydroizolácií a dokončovacích prác. Kolaudácia stavby prebehla 27. augusta a zahájenie nového školského roka mohlo prebiehať v nových priestoroch.
Údaje o stavbe:
Hlavný projektant: Ing. arch. Marcel Dzurilla, Bratislava
Statika a výrobná dokumentácia: StructureSS, s. r. o., Stupava
Dodávateľ dreva: Mayr-Melnhof Holz Holding AG, Geishorn
Spojovací materiál: Rotho Blaas GmbH Italia, Bova Březnice
Montáž: Tectum Novum, a. s., Zemné
Drevo v mestách
Použitie dreva v stavbách vo veľkých mestách zatiaľ nie je štandardom ani v Západnej Európe. Spolkové krajiny Nemecka a Rakúska majú vlastné predpisy, ktoré drevu neboli donedávna naklonené. Situácia sa však mení naozaj rýchlo – napríklad projekt bytového domu v pasívnom štandarde v Mníchove v mestskej časti Schwabing bol v roku 2014 najskôr odmietnutý. Je to pridrahé a veľmi náročné – to boli protiargumenty. Projektant vypracoval porovnanie dvoch stavebných systémov – masívnej stavby z minerálnych materiálov a stavby z dreva. A začal vysvetľovať a presviedčať: rozhodujúcou sa stala rýchlosť výstavby – prefabrikované drevené elementy umožňovali extrémne skrátenie výstavby, takže obyvatelia susedných objektov boli zaťažovaní stavebným ruchom výrazne kratšie, ako by to bolo pri inom spôsobe výstavby. Nedostatok priestoru v okolí stavby bol ďalším dôvodom, prečo bola výstavba z drevených prefabrikátov zhotovených vo výrobni výhodnejšia. Prefabrikáty boli dovážané a hneď montované – podobne, ako tomu bolo pri predstavenom projekte školy.
Mesto Mníchov vyhlásilo nedávno súťaž na stavbu niekoľkých škôl. Jednou z podmienok súťaže je, že budú postavené z dreva. Z ekologického materiálu, ktorého má aj Slovensko dostatok a ktorý je obnoviteľnou surovinou…
Záver
Prístavba školy je jedinečným príkladom výhod stavania z dreva. Výstavba je rýchla, drevo je okamžite nosné, takže nevznikajú „prestoje“ ako pri niektorých iných materiáloch. V neposlednom rade musíme vyzdvihnúť celkový estetický dojem priznaných plôch z prírodného materiálu – dreva.
Vďaka príkladnej spolupráci a nadšeniu všetkých zúčastnených (vedenie školy, projektant, zhotoviteľ stavby a stavebný úrad) sa počas trvania letných prázdnin podarilo postaviť objekt, ktorý, dúfame, bude inšpiratívny nielen pre študentov školy.
KRISTIÁN SÓGEL, JAROSLAV SANDANUS
foto archív autorov
Ing. Kristián Sógel, PhD., (*1979)
je absolventem Stavební fakulty Slovenské technické univerzity v Bratislavě (SvF STU), kde v současné době působí jako odborný asistent na katedře kovových a dřevěných konstrukcí. Zabývá se pedagogickou a vědecko-výzkumnou činností, rovněž spolupracuje s praxí v oboru dřevěných a ocelových konstrukcí.
Doc. Ing. Jaroslav Sandanus, PhD., (*1965)
je absolventem Stavební fakulty Slovenské technické univerzity v Bratislavě (SvF STU), kde v současné době působí jako docent na katedře kovových a dřevěných konstrukcí. Zabývá se pedagogickou a vědecko-výzkumnou činností, rovněž spolupracuje s praxí v oboru dřevěných a ocelových konstrukcí. Je autorizovaným stavebním inženýrem a také soudním znalcem pro statiku stavebních konstrukcí.


