Dům, jehož pozemek měří v nejužším místě čtyři metry a jehož vysoké stěny kopírují krajinu a reflektují skály Prokopského údolí. Dům, v jehož srdci jste vytrženi z kontextu okolního světa. To je Dům v úžině! Jeho vnitřní prostor si pohrává s momenty překvapení, světlo se sem dostává přes velké prosklené plochy.
Úzký pás země sevřený pohořím, úzký pás moře mezi dvěma břehy. Pohybujete se v horách, skály se zdvihají, cesta v proláklině mezi kopci. Nedá se jít jiným směrem, nevíte, co vás čeká. Skály se rozestupují, zarůstají do země, otevírá se krajina. Prošli jsme úžinou! Do jiného světa.

Efektivní a udržitelná stavba? Stavba v souladu s přírodou? O čem tyto věty vypovídají? Dům v úžině využil „nezastavitelného“ pozemku, přírodních zdrojů, přírodních zákonů. Touží ukázat směr přístupu ke krajině, k místu a k životu.






Podstatné bylo udržet měřítko
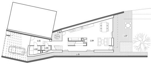
Dům vychází z tradiční řadové zástavby a zaplňuje celou šíři proluky. Propojení ulice se zahradou je přes průjezd, zde spíše průchod. Vnější výraz domu dávají obvodové stěny, které zrcadlí lámané tvary parcely a promítají je do třetího rozměru.
Ale pojďme udělat pár kroků zpět. K výběru pozemku: zbytková parcela v Praze. Stavební úřad ji označuje za nezastavitelnou. Stísněnost, členitost. Jižním směrem se otevírá do vnitrobloku zahrad a ke kostelu svatého Vavřince.
|
Dům v úžině |
|
Místo: Praha-Jinonice Investor: Michal Procházka Architekt: ATELIER SAEM – Michal Procházka, Lukáš Bezecný, Pavel Cihelka, Jiří Deyl Design skla: Anna Chmelová Konstrukční systém: NOVATOP Okna: JANOŠÍK OKNA-DVEŘE Ocenění: GRAND PRIX ARCHITEKTŮ, Národní cena za architekturu 2015 – čestné uznání v kategorii rodinný dům; BEFFA 14 – Building Efficiency Awards 2014 – 1. místo v kategorii rodinné domy, 2. místo v kategorii dřevostavby; Dřevěná stavba roku 2014 – vítěz hodnocení odborné poroty v kategorii realizované moderní domy. |
Dřevostavba mezi betonovými stěnami
Difuzně otevřená dřevostavba z pohledových masivních panelů je vestavěná do úžiny betonových stěn, kopírujících pozemek. Stěny, kromě architektonického výrazu a přenášení tvaru pozemku do 3D, vytvářejí opěrky terénních rozdílů a chrání stavbu před západními větry i před ruchem ze sousedního pozemku školy. Otevřená dispozice umožňuje provětrávání stavby ve vazbě na roční období a orientaci.
Dům využívá materiálů lokálních, obnovitelných, s minimální produkcí CO2 v průběhu životního cyklu – nosné panely a dřevěná okna české výroby, dřevovláknitá izolace, fasáda z „palubových“ prken evropského původu.
Tvary a členitost, vnitřní dvůr, stísněný průchod. Konstrukce doplňují velké skleněné plochy, i takové, které málokdy zachytí slunce. Odlesky slunce přesto dopadají do míst, kde je nečekáte.
Venkovní prostory chrání před povětrností a horkými dny masivní stěny. Jako součást interiéru tvoří plíce domu. Ve dvoře roste a vláhu udržuje druhohorní Ginkgo Biloba. Reguluje vnitřní teplotu bez nutnosti instalace náročných a nákladných zařízení! Otevřená dispozice, umožňuje provětrávání stavby ve vazbě na roční období a orientaci. Dům je propojen s přírodou, má zelenou střechu. Rostliny využívá k zajišťování klimatu, regulaci teploty a vlhkosti, akumulaci a filtraci srážkových vod. Ty jsou pak z retenční nádrže vraceny zpět k využití. Váží si vodních zdrojů a zadržuje vodu v krajině.


|
Velké skleněné plochy jsou i tam, kde byste je nečekali |
|
Okna pro tuto stavbu utváří velké skleněné plochy. Úzký a „dlouhý“ dům vyžadoval, aby byla situována i do středu dispozice. „K tomu nám posloužil vnitřní dvůr i průchod. Světlo a slunce tak proniká hlouběji do míst, kde je nečekáme, tedy až do místností se severní orientací. S ohledem na design jsme volili dřevěná okna BLOCK od společnosti Jánošík okna – dveře. Rám křídla lícuje s osazovacím rámem, profily mají radiusy 1,5 mm a skryté kování. Výstupy na terasu jsme vyřešili posuvnými HS portály. Díky elegantnímu vzhledu oken a kosým úhlům stěn a stropů od počátku pracujeme s přiznanými rámy,“ říká Michal Procházka. Odolnost a barevnost oken určily tvrdé dřeviny (bílá lazura na tvrdém dřevu má výraznější kresbu a svým odstínem se blíží k barvě dlažby). S ohledem na velikost skel autoři projektu kladli důraz na bezpečnost – použitá trojskla jsou z vnější i vnitřní strany s bezpečnostní fólií Connex. Důležitým bodem návrhu bylo zajištění kluzného kotvení oken tak, aby se případné pohyby dřevostavby nepřenášely do skel. Stínění jižních oken v přízemí zajišťuje přesah hmoty domu, v patře pak roleta Screen. |
Větrání a vytápění
Není tu žádná rekuperace – mohlo by se říci, že je to zcela proti zásadám nízkoenergetického domu. Autoři projektu se však domnívají, že je toto řešení v souladu s otevřeným a zdravým bydlením. Stavba je přesto mimořádně úsporná, dosahuje energetické náročnosti budovy kategorie A, nejedná se však o nízkoenergetický standard. Neměli jsme větší ambice, nechtěli jsme dům „nakazit“ a čistý vzduch přiváděný do domu „špinit“ v potrubí. Domníváme se, že „výpočtové“ energetické úspory jsou často v rozporu s „ideálním životním prostředím“ a Dům v úžině je toho příkladem.
A čím se tedy dům vytápí a větrá? Odtahy vzduchu zajišťují hybridní ventilátory poháněné větrem, přívody větrací štěrbiny ve vazbě na fasády a roční období. Teplo pak tepelné čerpadlo země – voda. Záložním zdrojem a pro vytvoření nálady poslouží krb na dřevo.
Michal Procházka
foto Filip Šlapal


Nejnovější komentáře