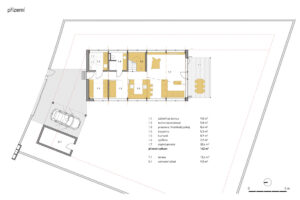
Lokalita Červený kopec v Trutnově patří mezi rozvojová území města pro výstavbu rodinných domů. Jedním z nich je atypická dřevostavba, jejíž návrh byl inspirován nepravidelným tvarem parcely a nutností vypořádat se s prostorovými regulativy. Architektonický návrhPozemek je rohový, ohraničený vozovkou z jedné a chodníky pro pěší z druhé a třetí […]
Technologie
Rekonstrukce historického objektu s použitím lokálně podepřených předpjatých stropních desek a skrytých hlavic
Při rekonstrukci areálu radnice ve Vyškově bylo rozhodnuto zásadně přestavět stávající zchátralý řadový objekt (obr. 1). Nová dispozice objektu postavila statiky mimo jiné také před úkol zajistit protlačení sloupů deskou u komplikovaně tvarovaného schodiště, kdy byly z těchto důvodů použity skryté manžetové ocelové hlavice. Zlepšení únosnosti a průhybů stropní konzolové […]
Dlouhodobé testy trvanlivosti ochranných technologií v prostředí ČOV
Od roku 1991 prováděla firma Sika v objektu čističky odpadních vod ve švýcarském Altenrheinu testování chování a změn různých ochranných technologií aplikovaných v reálných podmínkách. In-situ měření bylo prováděno v periodách 7,5, 10 a 17 let a za tu dobu byly sledovány různé parametry. Závěry ukazují na překvapivě nízkou (do […]
Starý most cez Dunaj v Bratislave
Starý most cez Dunaj v Bratislave už mnoho rokov neplnil v plnom rozsahu svoju funkciu. Od roku 2004 sa vo viacerých „vlnách“ pripravuje projektová dokumentácia na jeho obnovu. Príspevok dokumentuje „históriu“ projektovej prípravy tejto stavby, vývoj názorov na koncepciu konštrukčného riešenia mosta aj zdôvodnenie výsledného riešenia. Stručná história projektu Starého […]
Inovace procesu výroby fasádních systémů ETICS
Inovací procesu rozumíme zavádění nových nebo významně zlepšených způsobů výroby a dodávek. Inovace by měla vycházet z potřeby zvyšování efektivnosti a jakosti výrobního procesu, především u činností, které jsou zdrojem mnoha poruch, zejména vlivem špatného technologického provádění. Cílem procesní inovace ale může být i snížení jednotkových nákladů produkce nebo zvýšení kvality produktu. Inovací fasádních systémů […]
Keramobetonový strop bez nadbetonávky
Pro rozšíření možností při volbě konstrukce stropu především pro rodinné domky a rekonstrukce přichází firma Wienerberger s novou variantou keramobetonového stropu bez nadbetonávky. Nejedná se zcela o nové konstrukční řešení – běžně se již několik desetiletí používá např. v SRN (obr. 1). Pro ČR byl vyvinut tento strop jako jednodušší varianta stávajícího keramobetonového stropu […]
Masivní stropy Ytong Ekonom a střechy Ytong Komfort
Na jaře roku 2013 uvedla společnost Xella CZ na trh nové, pro potřeby zákazníka optimalizované a zjednodušené konstrukce pro stropy a střechy. Zejména stropy Ytong Ekonom se na trhu velmi dobře etablovaly. U šikmých střech však přetrvává „tradiční“ pohled a zákazníci dávají přednost dřevěnému krovu. Důvodů je několik. Nejsilnějšími jsou asi nedostatek osvěty […]
Realizace lité podlahy snadno a rychle
Krásu podlahy obvykle posuzujeme jen podle položené krytiny, kterou ve výsledku vidíme. Aby však byla dokonalá i tato vrchní nášlapná vrstva, je třeba vybrat i kvalitní základ pro její pokládku. Perfektně rovných podlahových ploch s vynikající pevností lze během pár hodin dosáhnout technologií litých podlah. Ty jsou v současné době jedním z nejpoužívanějších řešení podlahových […]
Je možné provádět připojovací spáru oken a dveří jenom jednosložkovou polyuretanovou pěnou?
Ve své praxi soudního znalce nebo TDI se setkávám často s poruchami funkce oken, rosením, zamrzáním a u dřevěných oken i s poruchami laku. Jestliže je výrobek z tepelně-technického hlediska zabudován v geometricky správné poloze a plní požadavky na vlastní tepelnou izolaci, bývá příčinou těchto defektů nesprávné provedení připojovací spáry. Z tohoto důvodu přikládám ověření správné konstrukce připojovací […]
Lepení a spárování keramických obkladů a dlažeb
Keramický obklad představuje hodnotnou a trvanlivou úpravu stěn i podlah. Při jeho výrobě se využívá jedna z nejstarších stavebních hmot na světě – hlína. Od prvních hliněných tabulek k dnešním obkladům a dlažbám však vývoj urazil velmi dlouhou cestu. Stále vyšší kvalita obkladů a dlažeb vyžaduje i odpovídající zdokonalování lepicích […]












Nejnovější komentáře