Dům stojí nad Herolticemi u Tišnova, díky své poloze má výhledy do širokého okolí. Jeho horizontální hmota je částečně zapuštěná do svahu, doplňují ji rozsáhlé terasy. Zadání bylo prosté – rodinné bydlení, kde propojení s přírodou tvoří hlavní dekoraci a určuje atmosféru. Ovlivnilo výběr pozemku i přístup k řešení stavby. Pro každou místnost byl komponován jedinečný výhled, který architektura pouze rámuje. Nikdy nekončící, dynamická proměna přírody dům naplňuje. Pohledové betony se zde uplatňují na fasádě suterénu, a především v interiérech.
„Dům je výsledkem téměř ideální souhry s klientem,“ říká architekt Martin Klimecký a dodává: „Celý proces, od formulace zadání, přes výběr pozemku, projektování i vlastní realizaci, byl řešen s náležitou pečlivostí všech zúčastněných stran, bez zbytečného spěchu, s důrazem na promyšlenost každého kroku. Jedině tak bylo možné jít v mnoha ohledech až na hranici možného…“
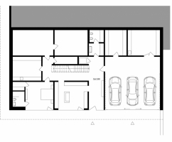
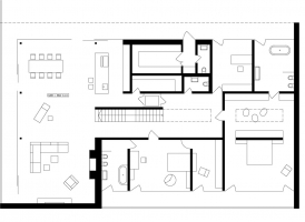
Stavba je umístěna ve spodní části pozemku. Veškeré zázemí včetně garáže a apartmá pro hosty se nachází v suterénu, v přízemí je byt s přímou vazbou na terasu. Většina pozemku byla ponechána ve své přirozené svažitosti. Sadové úpravy navazují na přírodní charakter lokality, většina plochy poměrně rozlehlého pozemku je upravena jako pobytová louka.


Architektonické řešení
Hmotu objektu tvoří plochý hranol, v suterénu zapuštěný do svahu. Okna obytné části jsou vsazena za 1,5 m hlubokými lodžiemi, které dodávají interiéru intimitu a zároveň umožňují přímý výstup na zahradu ze všech obytných místností.
Dům má železobetonovou nosnou konstrukci kombinovanou s cihelným nosným a výplňovým zdivem. V hlavním obytném prostoru konstrukci doplňují ocelové sloupky. Stavba je řešena jako jeden dilatační celek s nosnou konstrukcí uvnitř, pod zateplením. Nosná konstrukce je přiznaná a spoluvytváří interiér.


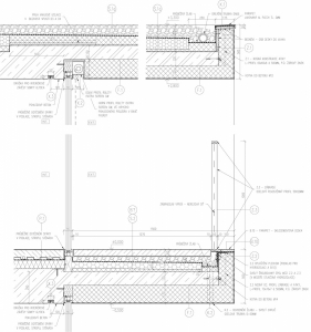
Fasáda byla řešena kombinací kontaktního zateplení s hladkou broušenou omítkou a sendviče s povrchem pohledové železobetonové moniérky. Prosklené výplně otvorů jsou bezrámové, v kombinaci fixních, otvíravých a posuvných polí. Vždy na celou výšku místnosti, bez parapetu a nadpraží. Střecha je plochá, s povrchem kameniva v kombinaci s extenzivní vegetací.
V interiéru se na stropech a schodišti uplatňuje pohledový železobeton. Většina stěn má hladkou sádrovou omítku, na podlahách jsou ručně hlazené cementové stěrky. Povrchy v koupelnách byly obloženy skleněnou mozaikou. Interiérové dveře jsou provedeny na celou výšku místnosti a se skrytou zárubní. Obdobným způsobem jsou řešeny i dveře vestavných skříní. Povrch dveří i skříní tvoří dubová dýha, kuchyňská linka je bíle lakovaná.
Primárním zdrojem energie pro topení a chlazení je tepelné čerpadlo země-voda. Energii získává z trojice vrtů hlubokých 130 metrů. Vytápění domu zajišťuje podlahové topení, chlazení je řešeno aktivací betonového jádra umístěnou v železobetonové stropní desce nad nejvyšším podlažím. Dům byl navržen jako inteligentní: elektronický systém řídí veškeré technologie a umožňuje jejich ovládání i na dálku.


Konstrukce a stavba
Základy tvoří základové pasy a základová deska, pod základy se nachází rozvody ZTI. Půdorysné rozměry domu jsou 26,2 x 17,7 m, stěny jsou zděné tloušťky 200 a 300 mm, část stěn je ze železobetonu tloušťky 150 mm, 200 mm, 250 mm a 300 mm. Zděné stěny jsou s železobetonovými konstrukcemi propojeny pomocí ocelových kotev, výztuží nebo systémovými ocelovými prvky. Konstrukce horní stavby jsou odizolovány od zemní vlhkosti hydroizolací z asfaltových pásů. Byla vytažena na vnější povrch obvodových konstrukcí stavby tak, aby končila alespoň 300 mm nad terénem. Součástí opatření proti vodě a zemní vlhkosti je obvodová drenáž u paty zdiva a drenáž pod terasou.


U domu se nachází opěrná stěna o délce téměř 35 metrů, vyložení její konzoly činí 1,50 m. V nejvyšším místě je stěna vysoká 3,75 m, v nejnižším 1,75 m. Stěna je rozdělaná na pět dilatačních úseků délky 7,50 m. Dilatace nezasahuje do základu, dilatační spára je vyplněna trvale pružným vodonepropustným tmelem. Viditelné plochy stěny byly realizovány v pohledovém betonu. Rubová strana stěny je opatřena hydroizolačním souvrstvím a spádovanou drenáží.
Schodiště je železobetonové monolitické, do pohledové stěny bylo ukotveno lepenou výztuží na chemické kotvy. Pro bezbariérové propojení obou podlaží slouží malý osobní výtah.


Ve stropě nad 1. NP je instalováno chlazení systémem aktivace betonového jádra.
Tepelná izolace střechy z PIR pěny je spádována pomocí klínů z EPS v základním spádu 1%. Střešní krytina z TPO/FPO fólie je přitížena kamenivem, resp. skladbou extenzivní zelené střechy. Parozábrana je z asfaltových pásů. Střecha tvořící podlahu lodžií má obdobnou skladbu, její povrch tvoří betonové desky.
Všechny podlahy jsou těžké plovoucí. Většina z nich byla realizována včetně teplovodního podlahového topení. Jako podlahová krytina byla zvolena epoxicementová stěrka, v technických prostorách je hlazený beton se vsypem. V nášlapné vrstvě jsou podlahy od stěn oddilatovány tmelenou spárou.
Fasádu v přízemí tvoří kontaktní zateplovací systém s povrchem hlazené omítky, v suterénu sendvičová konstrukce s výplní tepelné izolace a povrchem monolitický pohledový beton (moniérka). V oblasti soklu zateplovací systém doplňuje hydroizolační lepidlo a hydroizolační nátěr. Jako izolace byla do výšky 30 cm nad terén použita perimetrická soklová deska.


Okna jsou pevná, otvíravá i posuvná se zasklením izolačními skly. Skla jsou na exponovaných světových stranách selektivní (propouštějí omezené množství tepelné energie a zároveň maximum světlené energie). Rámy oken a dveří jsou hliníkové s přerušeným tepelným mostem, některé detaily fixních výplní byly řešeny jako strukturální s tmelenou spárou. Součinitel prostupu tepla všech oken max. Uw=0,8 W/m2K. Ve stropě nad 1. NP se nachází dva světlíky lemované železobetonovými atikami, zasklení řešeno fixními výplněmi se strukturálním tmelením spár.


Pohledové betony
„Zvolili jsme nejpřísnější třídu pohledovosti PBS, pro otisk bednění jsem předepsal na sraz kladené velkoformátové překližky. Bylo tedy nutné pečlivě volit systém bednění. Připravili jsme podrobné výkresy ke všem plochám pohledového betonu, kde kromě vlastního bednění zahrnující spárořez překližek a rozmístění spínacích tyčí byly také přesně zaneseny všechny prvky instalací, jako jsou vypínače nebo čidla,“ upřesňuje architekt Klimecký a dodává: „U některých obvodových stěn byla provedena fasádní moniérka tloušťky 150 mm. Postupovali jsme tak, že se nejprve vybudovaly nosné stěny a teprve poté moniérky. Před jejich realizací se na stěny aplikovala svislá hydroizolace a tepelná izolace, provedly se také zabudované instalace jako například svislá dešťová kanalizace. Moniérky bylo nutné realizovat ještě před betonáží stropu, který se nachází nad nimi. Stropy totiž mají velké konzoly a později by již nešlo provést betonáž a hutnění moniérek. V kvalitě pohledového betonu je také část interiérových stěn. Specialitou je schodišťová stěna, kterou jsme se rozhodli betonovat v jednom taktu, tedy na výšku šest metrů, abychom nemuseli v její ploše provádět žádnou vodorovnou pracovní spáru. Tyto spáry bývají často místem defektů.“




Stropy tvoří monolitické železobetonové oboustranně pnuté desky, prakticky všechny jsou pohledové. Výzvou bylo provedení atypického umístění stropních svítidel, která jsou nejen kompletně zalitá v betonu, ale navíc nemají žádný rámeček, takže „odlitý“ otvor v betonové desce je přímo reflektorem svítidla.



Ocelové sloupky mají skryté ocelové hlavice, v jejich okolí bylo třeba klást zvláštní důraz na důsledné zvibrování betonu.
„Díky mimořádnému nasazení pana stavbyvedoucího se betony podařilo realizovat bez větších defektů. Jediným větším problémem bylo, že se ve stropech nad 1. NP výrazněji prokreslily vláknobetonové distančníky pod výztuž. Dílem to zřejmě způsobila betonáž v zimních měsících, dále také velké množství výztuže a instalace zabudované ve stopě. V rámci retuší betonů se nám ale podařilo tento nepříjemný efekt úspěšně potlačit,“ uzavírá Martin Klimecký.
-vis-
Foto: MgA. Lenka Mitrenga





