Nová administrativní budova společnosti Geioindustrie se stala srdcem průmyslového areálu ve Velkém Oseku. Původní prostory společnosti již kapacitně nevyhovovaly a jejich případná rekonstrukce by byla natolik náročná, že přednost dostal návrh novostavby. Architekt Radovan Vacík ho využil nejen jako reakci na potřeby společnosti, ale také jako urbanistické řešení celého areálu. Aktuální sídlo firmy jej opticky uzavírá a dotváří tak nádvoří snadno čitelné i pro návštěvníka.



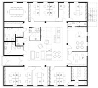
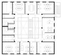
Na první pohled jednoduchá čtvercová stavba obložená černým plechem uvnitř překvapí vzdušností a množstvím světla. Je to výsledek umístění kanceláří do prstence po obvodu pláště. „Mým cílem bylo vyhnout se klasickým chodbám, a naopak dát komunikačním prostorám další funkci,“ říká autor návrhu. Vytvořil proto atrium otevřené do patra. V přízemí je v něm recepce, kuchyňka a neformální posezení. Nahoru stoupá monolitické schodiště, které jako další části interiéru přiznává stavební zaměření společnosti.



Sídlo si společnost Geoindustrie stavěla sama bez generálního dodavatele. Základy vznikly koncem roku 2019 a stavba byla zkolaudována v březnu 2021. Od Velikonoc téhož roku se plně využívá.



Betonové stavitelství
Objekt je založen na železobetonových pilotách, což je doména Geoindustrie po desítky
let. Beton najdeme i na schodišti, stěnách a podlahách. Také jako konstrukční systém byl zvolen prefabrikovaný betonový skelet se systémem sloupů, průvlaků a ztužidel. Stropy jsou z předpjatých železobetonových panelů, na střeše doplněné o tepelnou izolaci z minerální vlny, na kterou se pokládala hydroizolace.




Čisté a rovnoměrné prosvětlení
Jedním z cílů návrhu bylo vytvořit prostory, které budou schopny reflektovat případný růst firmy či změnu požadavků na uspořádání kanceláří. Potenciální posouvání příček a změnu dispozice umožňuje právě prefabrikovaný skelet a do něj pravidelně umístěná okna. Přestože jsou štíhlá, není uvnitř budovy nouze o denní světlo.
Ve snaze prosvětlit atrium navrhl architekt Radovan Vacík šedové světlíky orientované na východ. Díky své orientaci přinášejí stabilní světlo, které ještě změkčuje barisolový podhled. Ten funguje nejen jako difuzor světla, ale také zakrývá ocelové nosné prvky světlíků. Díky tomu strop působí čistě a osvětlení je rovnoměrné.
-vis-
Foto: Alex Shoots Buildings



Investor a generální dodavatel: Geoindustrie s.r.o.
Autor: Radovan Vacík
Projekt: SATER – PROJEKT s.r.o.
Další dodavatelé: prefabrikované výrobky A-Z PREZIP a.s.; fasáda WUMEX, spol. s r.o.








