
Základní urbanistickou osnovu bytových domů architekt Pavel Jura založil v racionálním ortogonálním řádu, dále ji modifikoval posunem a pootočením staveb. Optimalizoval tak odstupy mezi domy i výhledy na Pálavu. Důležitá pro něj byla i svébytná a přívětivá stavební struktura, která obyvatelům nového areálu v Pasohlávkách nabídne prostředí s jasnou identitou.
Urbanistické řešení vycházelo z analýz typologie a území, zhodnocuje kontext místa. „Jeho strukturu jsme založili na samostatných domech menšího měřítka, které umožní využití různými věkovými kategoriemi a současně poskytnou určitou míru intimity a individuality bydlení,“ uvádí architekt Pavel Jura. Bodovou urbanistickou strukturu autoři doplnili otočením jednotlivých objektů, které odkazuje k výrazné kůlové stavbě z doby bronzové a současně definuje různé perspektivy objemů staveb v průhledech. Dopravní řešení založili na páteřní komunikaci v kolmé orientaci k veřejnému prostoru a navazujícímu systému pěších tras.

Architektonické řešení
Projekt se připravoval s důrazem na ekonomii a racionalitu řešení. bytové domy jsou navrženy tak, aby jejich výstavba byla pokud možno ekonomicky úsporná. Architekt se přitom soustředil na jejich formu, která přispívá k identifikaci obyvatel s „novou adresou“.
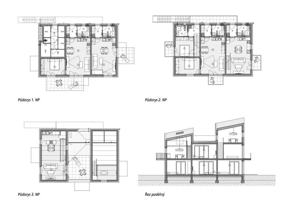
Domy jsou tedy prostorově úsporné a kostrukčně jednoduché, ze standardních materiálů, díky některým detailům je každý z nich jedinečný. Urbanistické řešení bylo založeno na racionální skladbě příbuzných objektů podél páteřní komunikace. Detailním osazením (otočením) a různou orientací střech je pak založena identita každého domu i různorodost stavební struktury, přestože stavby mají stejné dispoziční a konstrukční řešení.
„Základním prvkem ekonomie výstavby je konstrukční řešení, založené na třech shodných traktech stěnového systému s obvyklými rozpony stropních konstrukcí. Efekt tohoto řešení byl ještě posílen opakovanou realizací typického domu. Úsporný koncept spočívá v malé energetické náročnosti staveb, které mají kompaktní objem s optimálním poměrem A/V i doporučené hodnoty součinitele ‚U‘ pro obvodové pláště. K celkové úspornosti přispívá i utilitární řešení společných prostor domů – omezili jsme je na venkovní schodiště a krátkou pavlač,“ dodává Pavel Jura. Stavebně konstrukční řešení využilo jednoduchých a osvědčených technologií – příčných nosných a obvodových stěn z keramických tvárnic, akustických zdí z vápenopískových cihel. Vodorovné konstrukce tvoří monolitické železobetonové desky s vyložením balkonů na systémových prvcích s přerušením tepelného mostu. V převýšených bytech je vložena dřevoocelová konstrukce visuté galerie. střešní plášť hlavních střech byl navržen jako větraná skladba dřevěného krovu s vloženou minerální izolací.

Materiálové a barevné řešení staveb je střídmé, různorodost celku je založena již v urbanistickém a objemovém řešení. Domy mají bílou omítku, doplněnou tmavě šedým odstínem oken a zámečnických výrobků. Dispoziční řešení bylo založeno na třech půdorysných modulech, které jsou v různých podlažích využity různými kategoriemi bytů – od 1 + kk v úpravě pro imobilní až po mezonetový byt 2 + kk s terasou a výhledem na Pálavu.

K celkové úspornosti přispívá i utilitární výraz společných prostor domů
TZB
Pro vytápění obytných místností slouží tepelné čerpadlo vzduch/vzduch (multisplit systém), které zajišťuje zdroj tepla pro vytápění i přípravu TUV, současně umožňuje i dochlazování bytů v létě. Systém tvoří venkovní kondenzační jednotka a vnitřní nástěnné jednotky, které jsou na venkovní jednotku napojeny potrubím s tepelnou izolací a komunikačním kabelem. Venkovní jednotky jsou umístěny v nice ve fasádě s orientací mimo předzahrádky bytů.
Jako doplňkový zdroj tepla slouží podlahové elektrické vytápění. Topné kabely se v každé místnosti ovládají samostatně termostatem.

domu i různorodost stavební struktury, přestože mají stejné dispoziční
a konstrukční řešení
Urbanismus podle koncepce římských táborů
Pasohlávky leží na dohled od Pavlova, horních a Dolních Věstonic. Není tedy divu, že se při záchranném archeologickém průzkumu našly sloupové jámy a hroby z doby stěhování národů a doby bronzové, výrazná liniová stavba o rozměrech 50 × 7 m a u kopce hradisko římský tábor. Samotná vesnice však má tradiční urbanistickou strukturu moravských obcí.
Když tedy autor bytových domů hledal optimální podobu areálu, určitou inspirací pro něj byl právě nedaleký římský tábor: „Při návrhu zástavby mimo stávající stavební strukturu obce (tzv. na zelené louce) nelze využít vazby na původní strukturu a navrhovat její plynulý rozvoj novými stavbami. Při absenci existujících pravidel je tak nutné založit pravidla nová, definovat novou vlastní identitu, založit tábor. Nová pravidla pak musí mít jasnou geometrii i vztah k historickým vrstvám místa a společnosti,“ upřesňuje architekt Jura.

-vis-
Foto: Jiří Ernest
podrimskymvrchem.cz
Publikováno v časopise Materiály pro stavbu 3/2024


Nejnovější komentáře