
Nový hangár pro staré letiště
Hangár na letišti ve Zbraslavicích autoři navrhli jako zelený ostrov, který okolní přírodě neubírá sílu, energii ani vodu. Solární panely o výkonu 10 kWhp s přehledem pokryjí potřebu haly po celý rok, pro období bez slunečního svitu se přebytky ukládají do baterií. Masivní stálezelené stěny stíní a zlepšují mikroklima. Dešťová voda z retenčních nádrží se využívá pro splachování WC, pro zálivku zelených stěn a okolní vzrostlé zeleně. Přepad vícekomorové čističky odpadních vod je sveden do polderu. Na sever orientovaný střešní světlík v létě negeneruje tepelné zisky, naopak slouží k větrání haly. V zimě může sklad promrznout, malé zázemí vytopí elektrické konvektory.


K jihu stoupající louka a za ní les, výhled na Zbraslavice s věží kostela. Takto by mohla znít definice místa pro novostavbu hangáru u zbraslavického letiště. Středočeská, poeticky se vlnící krajina a otázka: Jak do ní s péčí a láskou umístit stavbu, v hřebeni vysokou 9 m?
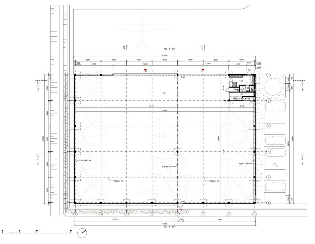
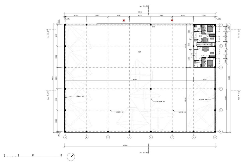
„Halu jsme chtěli umístit tak, aby krajina netrpěla. V pohledu od vesnice ji zakrývá kopec, od luk, polí a lesa ji stíní dvě zelené stěny. Krajinné výhledy zůstaly zachovány. Při návrhu umístění, hmoty i dispozic hangáru jsme sledovali čtyři základní principy. Nejdůležitější pro nás bylo krajinářské hledisko, které ovlivnilo způsob, jak objekt usadíme do terénu, jak vytvoříme orientaci střešních rovin a jejich sklon. Druhý princip spočíval v jednoduchosti a jednotnosti materiálů fasády a střechy, třetí v dispozičním řešení, které muselo zohlednit logistiku letadel a omezení jejich případného poškození při manipulaci. Čtvrtým byly statika konstrukce, ekonomické hledisko výstavby a estetika svislých částí i nosné střešní konstrukce,“ uvádí architekt Radek Vaňáč a dodává: „Pro návrh byly určující sklon terénu – na pozemku dlouhém 42 m to byly asi 2 m, dále také půdorysný ‚startovní bod‘ v podobě rohu stávající výrobní haly. Mezi starou a novou halou jsme ponechali vzdálenost 17 m, hangár jsme usadili prakticky na polovinu výšky klesání. Na jižní straně tak vznikl dvoustupňový zářez, na severní násyp, který jsme vyrovnali do ztracena. Střešní roviny vycházejí z mírného sedlového tvaru původních budov. Přetažením jižní roviny o půl modulu nad severní vznikl svislý severní světlík.“

Nosný systém z ocelových sloupů a profilů
Požadavky na manipulační prostor vyčistily půdorys rastru 5 × 7 čtverců (o stranách 6 × 6 m) takovým způsobem, že na něm zbyl jen jeden sloup. Další sloupy po obvodě objektu jsou v rozích zavětrované diagonálami. Sloup tvoří dvě šroubované pozinkované C profily (2 × 36/360/100 × 4 mm).
Sloupy nesou dvě osnovy 24 a 18 m dlouhých nosníků, obě se potkávají asymetricky nad
osou „E“. V jejím směru je pnut nejvyšší a nejvíce zatížený nosník celé konstrukce, který podepírá jeden sloup (podepřen je asymetricky ve 3/5 svého rozpětí). Pultové nosníky jsou po obvodu zavětrovány.
Celý nosný systém ocelových sloupů a profilů je založen na základových patkách. Materiály fasády a střechy jsou jednoduché a jednotné – vše je oblečeno do jednoho typu trapézového plechu s jedním způsobem zpracování. K prosvětlení autoři navrhli laminátové translucentní svislé plochy s profilací shodnou s plechem. Ve střešní rovině není ani jedno místo s perforací pláště či světlíkem.


Hospodaření s energiemi
„Považovali jsme za důležité, abychom koncept energeticky soběstačného ostrova dotáhli do úspěšného a funkčního stavu. Zdrojem energie pro výrobnu elektřiny je sluneční záření, které se ve 22 fotovoltaických panelech přeměňuje na stejnosměrný elektrický proud. V invertorech DC/AC je stejnosměrný elektrický proud přeměněn na třífázový střídavý proud o kmitočtu 50 Hz,
3 × 400 V. Střídavý proud se pak přes rozvaděč FVR distribuuje do všech tří fází elektroinstalace spotřeby. Přebytky vyrobené energie jsou akumulovány do baterií,“ upřesňuje Lukáš Bartheldi. Dodává: „Elektrická energie byla napojena na blízké odběrné místo; pevná přípojka je však pouze záložním zdrojem – pro svícení a malý ohřev vody se využívá energie z FVE uskladněná v bateriích. V zimním
období zázemí ohřívají zářiče a elektrická tělesa. Samotný hangár není vytápěn, ale jako záložní zdroj tu jsou umístěny pohyblivé zářiče pro lokální ohřev z baterií. Větrání v letních měsících zajišťuje několik manuálních klapek a větracích otvorů v blízkosti hřebene a na chladnějších stranách haly.“


Objekt je napojen na vlastní vrt pitné vody se zásobníkem studené a elektrickým ohřevem teplé vody. Přípojka kanalizace byla ukončena vícekomorovým septikem s přepadem pročištěné vody skrze zemní filtr do vsaku. Do oboru energetiky autoři projektu zahrnuli zelené bariéry proti přehřívání na jihozápadě a jihovýchodě, retenci vody ze zpevněných ploch v poldru a výsadbu vzrostlé listnaté zeleně. Parkovací plochy pro automobily byly dlážděny zatravňovacími prvky.
Fotovoltaická výrobna elektřiny se skládá z těchto částí:
– fotovoltaické panely,
– upevňovací komponenty panelů namontované na střešní konstrukci,
– podpěrná konstrukce pro panely na rovné střeše,
– síťový invertor INV1,
– hybridní invertor INV2,
– smart meter,
– sada akumulátorů včetně BMS,
– rozvaděče RDC a FVR,
– pomocné ochranné pospojování POP,
– DC a AC kabelová vedení,
– obvody nouzového vypnutí panelů.
Základní údaje
Místo: Zbraslavice, Středočeský kraj
Autoři: Studio Raketoplán – Radek Vaňáč, Pavel Nalezený; spoluautoři Lukáš Bartheldi, Tomáš Hucek, Adéla Krídlová
Spolupráce: LLENTAB (statika); Iveta Dobřecká, Adam Bubla
Investor: Gramex
Dodavatel: LLENTAB, ATOS Ledeč nad Sázavou
Plocha pozemku: 11 618 m2
Zastavěná plocha: 1290 m2
Hrubá podlažní plocha: 1410 m2
Užitná plocha: 1350 m2
Obestavěný prostor: 8575 m3
-vis-
Foto: Petr Polák Studio

Publikováno v časopise Materiály pro stavbu č. 1/2025.


Nejnovější komentáře